Kompaktowa nowoczesna stodoła
Prezentujemy kolejny nasz projekt w stylu nowoczesnej stodoły. Jest to kompaktowy projekt domu o powierzchni użytkowej 46,50 m², który jest zgrabny, funkcjonalny i ekonomiczny w użytkowaniu.
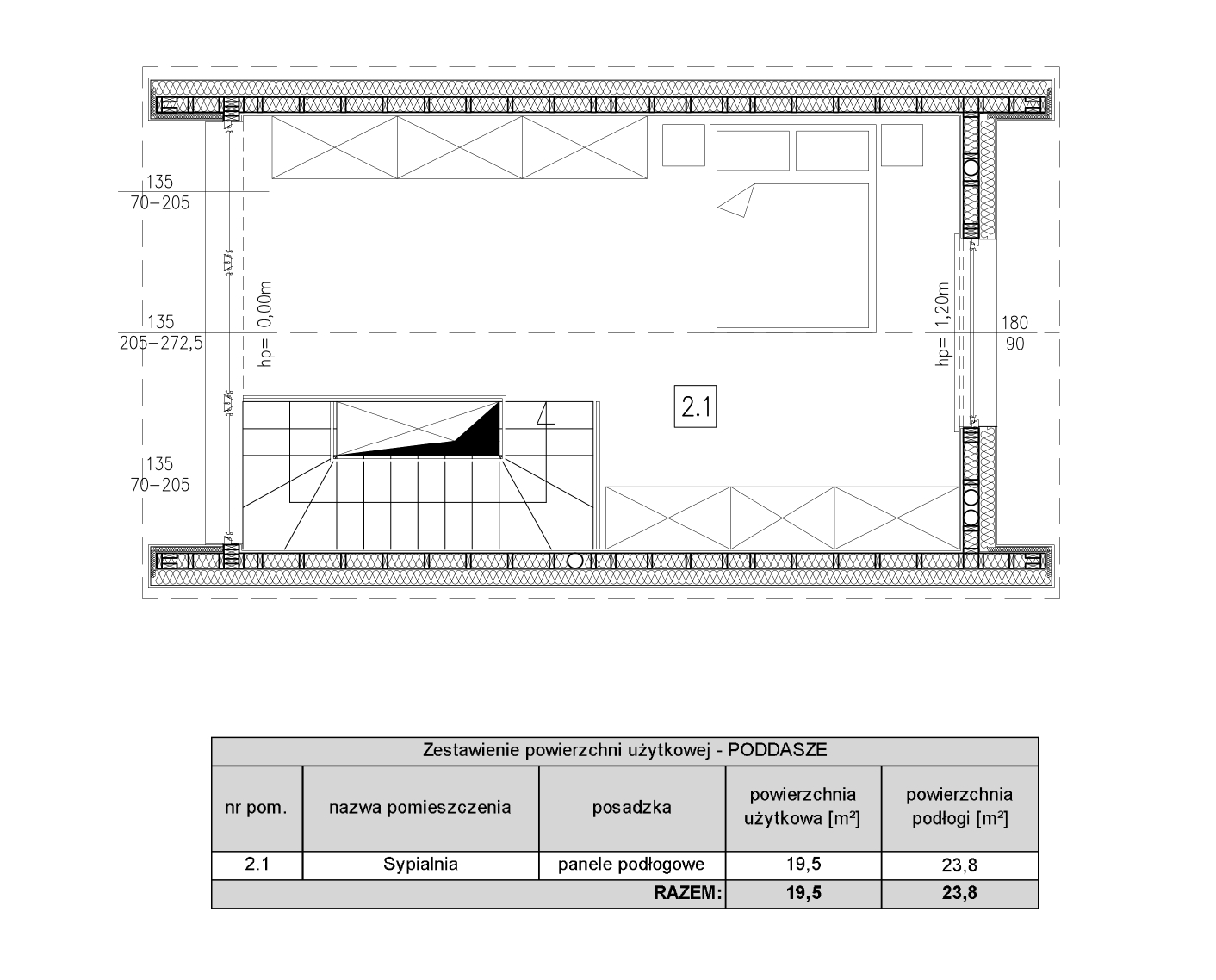
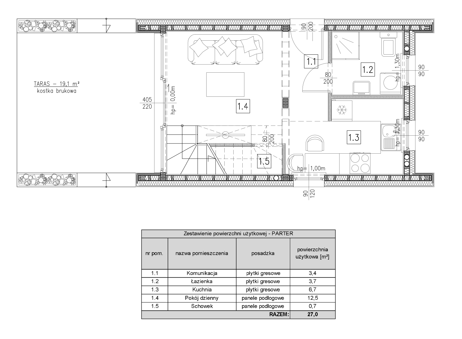
Na parterze znajdują się najważniejsze pomieszczenia dzienne, takie jak salon, kuchnia oraz łazienka, które zostały zaprojektowane z myślą o wygodzie i stylu życia mieszkańców. Na poddaszu znajduje się przestronna sypialnia, która stanowi prywatną strefę odpoczynku. Dzięki zastosowaniu dużych okien dachowych, wnętrze jest dobrze doświetlone, a widok na otaczającą przyrodę dodaje uroku temu pomieszczeniu.
Zaletami tego projektu są:
- Zgrabność i funkcjonalność: Mimo niewielkiej powierzchni użytkowej, dom jest zaprojektowany w sposób maksymalnie wykorzystujący dostępną przestrzeń.
- Ekonomiczność: Utrzymanie domu jest stosunkowo tanie, dzięki zastosowaniu nowoczesnych technologii i materiałów budowlanych.
- Nowoczesny design: Połączenie elementów tradycyjnej stodoły z nowoczesnymi rozwiązaniami zapewnia estetyczny wygląd i wyjątkowy charakter budynku.
Podsumowując, ten ekonomiczny dom w stylu nowoczesnej stodoły to doskonały wybór dla osób ceniących sobie unikalny design, funkcjonalność oraz ekonomiczność użytkowania.
