Nowoczesna stodoła w minimalistycznym wydaniu
MDDOM 72 to projekt domu jednorodzinnego inspirowany popularnym stylem nowoczesnej stodoły. Prosta bryła, dwuspadowy dach i naturalna, drewniana elewacja nadają budynkowi ponadczasowy charakter, który świetnie wpisuje się zarówno w krajobraz wiejski, jak i podmiejski. To idealne rozwiązanie dla osób poszukujących harmonii pomiędzy tradycją a nowoczesnością.
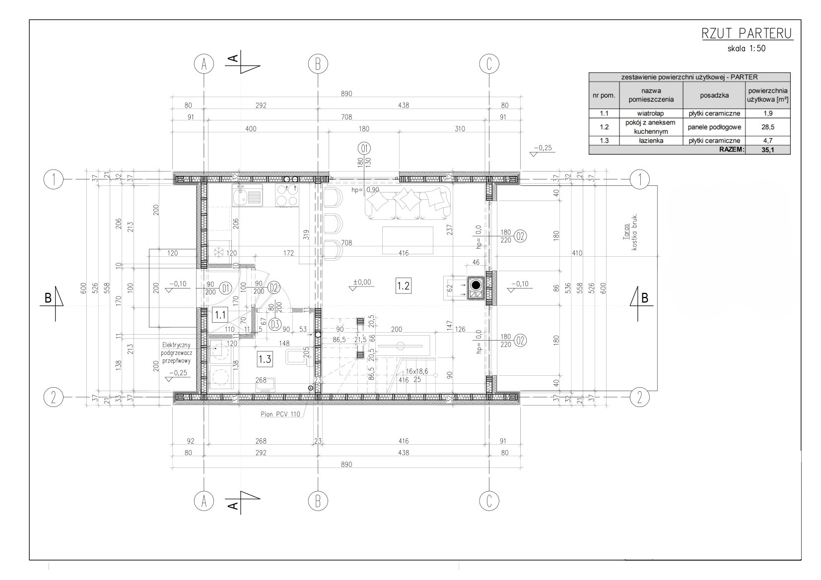
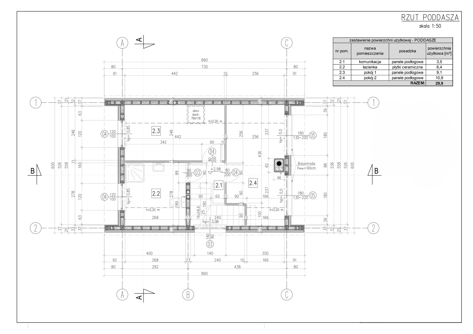
Funkcjonalny układ dla małej rodziny
Projekt przewiduje wyraźny podział przestrzeni na dwie strefy:
- Parter pełni funkcję dzienną – znajduje się tu przestronny salon z aneksem kuchennym, łazienka oraz praktyczny wiatrołap.
- Poddasze to strefa prywatna, w której zaplanowano dwa pokoje i dodatkową łazienkę.
Dzięki takiemu rozkładowi dom zapewnia komfort zarówno codziennego życia, jak i wypoczynku, stając się wygodną przestrzenią dla pary lub małej rodziny.
Atuty projektu MDDOM 72
- Nowoczesny design inspirowany tradycyjną stodołą – prostota i minimalizm w estetyce.
- Przemyślany układ funkcjonalny – wygodne oddzielenie strefy dziennej i nocnej.
- Duże przeszklenia – naturalne doświetlenie wnętrz oraz bliskość natury.
- Możliwość indywidualnej aranżacji – wnętrze można dopasować do własnych potrzeb.
- Energooszczędność – zwarta bryła sprzyja redukcji kosztów ogrzewania.
Dom dla ludzi ceniących prostotę i naturę
MDDOM 72 to nie tylko atrakcyjna architektura, ale też praktyczne rozwiązanie dla osób, które marzą o spokojnym życiu w otoczeniu przyrody. Połączenie minimalistycznej formy z funkcjonalnym wnętrzem sprawia, że projekt ten staje się doskonałą propozycją dla miłośników prostoty, komfortu i nowoczesnego designu.
