Komfortowy dom w konstrukcji szkieletowej
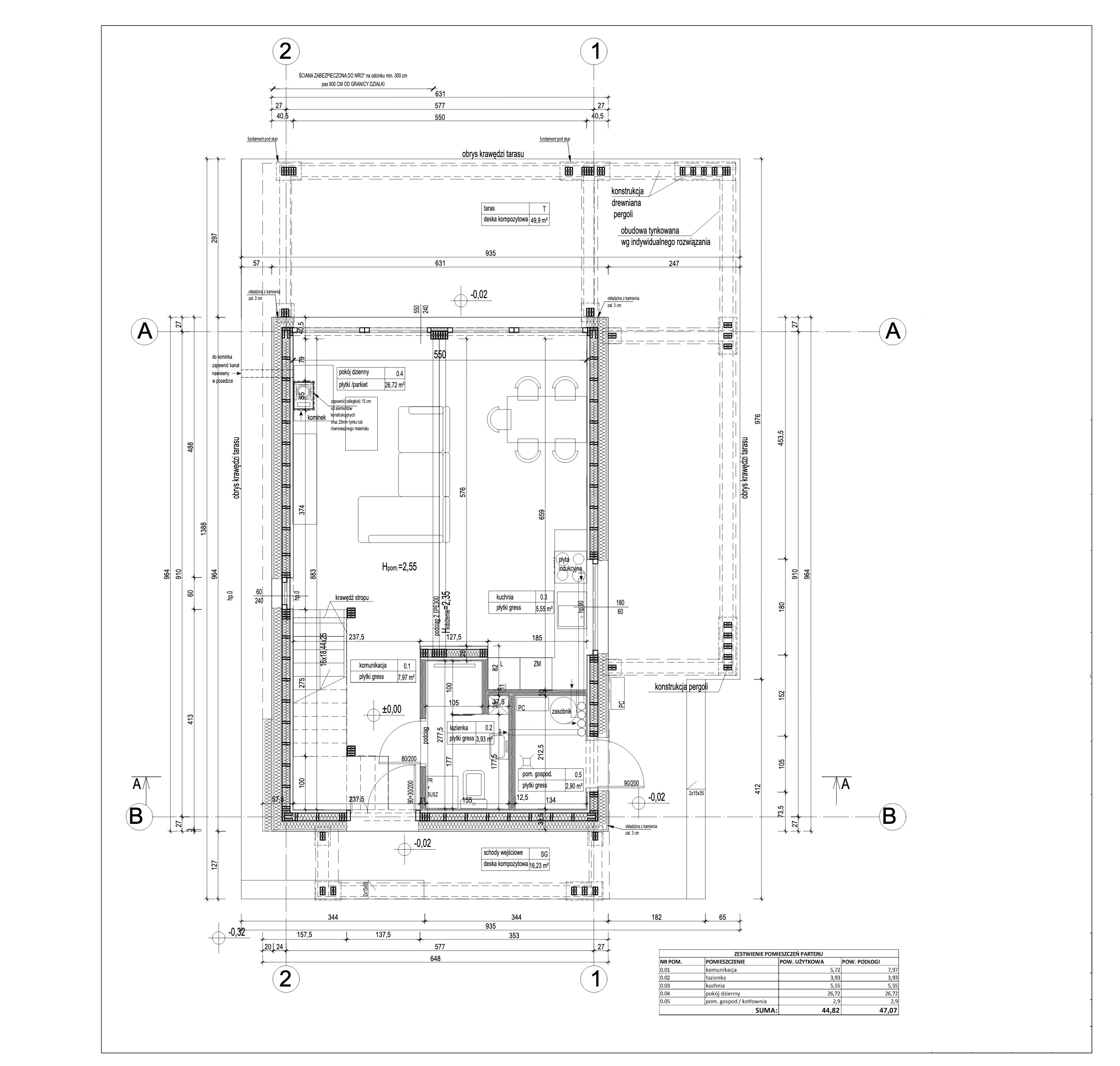
Przedstawiamy nowoczesną stodołę MDDOM 89 – projekt łączący nowoczesną architekturę, energooszczędność i wygodę codziennego życia. To kompaktowy, a jednocześnie przestronny dom szkieletowy o powierzchni użytkowej 76,96 m² (pow. po podłodze 89,04 m²), idealny dla osób poszukujących komfortu w estetycznej i ekologicznej formie.
Na parterze zaplanowano przestronny pokój dzienny z dużymi przeszkleniami, które podkreślają charakter energooszczędnej stodoły. Kuchnia, łazienka oraz praktyczne pomieszczenie gospodarcze zapewniają pełną funkcjonalność i komfort użytkowania.
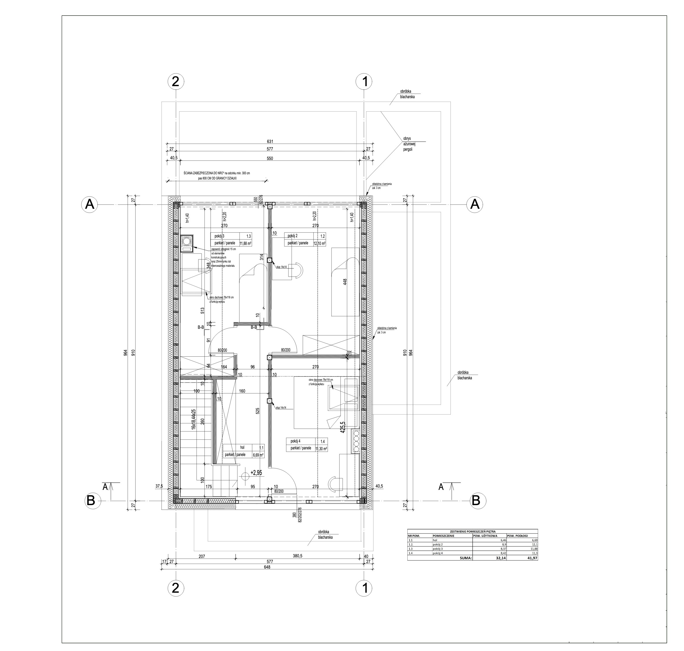
Poddasze stanowi prywatną strefę domu – trzy przytulne pokoje można zaaranżować jako sypialnie, pokój dziecięcy lub domowe biuro. Dzięki przemyślanemu układowi, projekt pozwala w pełni wykorzystać każdy metr kwadratowy przestrzeni.
Konstrukcja oparta na drewnie sprawia, że MDDOM 89 wpisuje się w trend domów drewnianych, oferując jednocześnie trwałość, naturalny mikroklimat i niskie koszty eksploatacji. Technologia szkieletowa to gwarancja, że budowa przebiega wyjątkowo sprawnie – to szybka budowa, dzięki której możesz cieszyć się swoim domem znacznie wcześniej niż przy tradycyjnych metodach.
MDDOM 89 to przykład tego, jak domy szkieletowe mogą łączyć nowoczesną architekturę, estetykę nowoczesnej stodoły i ekologiczne rozwiązania w jednym projekcie. To propozycja dla tych, którzy szukają stylowego, funkcjonalnego i energooszczędnego domu na lata.
