Fot. Kurt Kuball | Arch. SHARE Architects

Kompaktowy wakacyjnydomek nad Dunajem

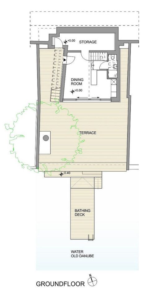
Ten niewielki wakacyjny domek to prawdziwa nowoczesna stodoła w centrum Wiednia, położona zaledwie 60 metrów od Starego Dunaju. Dom usytuowano na niewielkiej działce poniżej poziomu ulicy, dzięki czemu zachowano prywatność i spokojną atmosferę, pomimo bliskości miejskiej zabudowy. Prosta, kompaktowa bryła idealnie wpisuje się w miejskie otoczenie, a niska linia dachu – maksymalnie dwa metry nad chodnikiem – pozwala mieszkańcom cieszyć się widokiem na wodę, nie zakłócając panoramy okolicy.

Fot. Kurt Kuball | Arch. SHARE Architects

Wnętrze nowoczesnej stodoły wyróżnia się jasnością i lekkością. Dominuje biel, która w połączeniu z dużymi przeszkleniami i odbiciami światła od wody tworzy efekt przestronności. Projekt inspirowany luksusowymi jachtami łączy elegancję z funkcjonalnością: drewniane wykończenia, stalowe elementy i błyszczące powierzchnie wprowadzają wrażenie luksusu w niewielkiej przestrzeni. Duże okna zapewniają dostęp do naturalnego światła i łączą wnętrze z otaczającym krajobrazem.

Fot. Kurt Kuball | Arch. SHARE Architects

Dom o powierzchni 45 m² został zaprojektowany tak, aby maksymalnie wykorzystać przestrzeń. Na parterze znajduje się kompaktowa kuchnia z wbudowanym stołem, a pod schodami umieszczono niewielką łazienkę. Antresola pełni funkcję miejsca do spania i jest zawieszona pod dachem, co pozwala uniknąć wsporników i kolumn w części dziennej. Tak przemyślana organizacja wnętrza sprawia, że nowoczesna stodoła w centrum Wiednia łączy komfort całorocznego mieszkania z wyjątkowym wakacyjnym klimatem.