Arch. Atelier Fasea

Kompaktowa architekturaz ekologicznym sercem

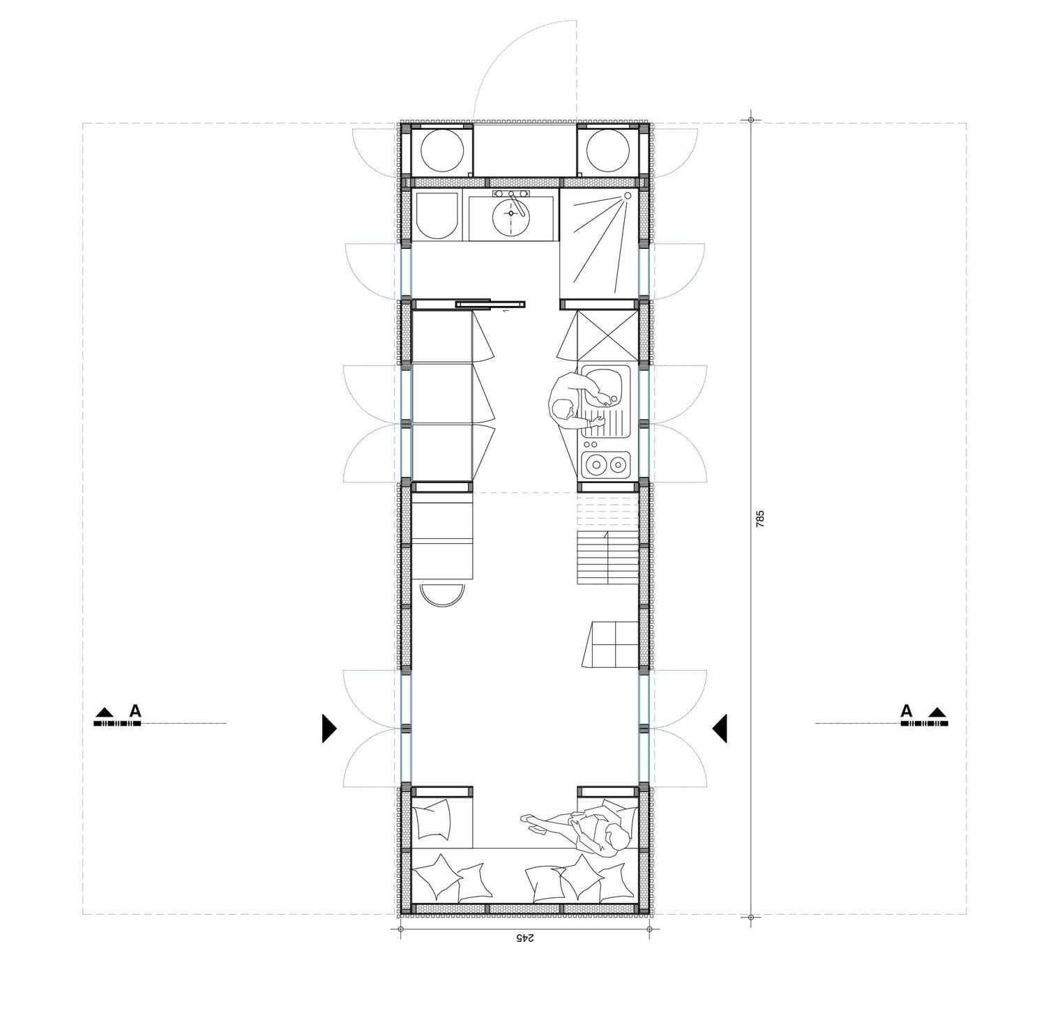
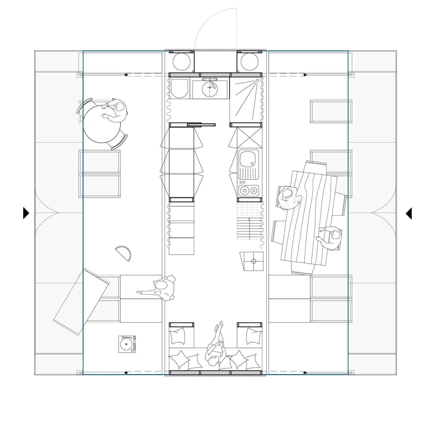
Ten samowystarczalny mini dom o powierzchni 17 m², zaprojektowany przez pracownię Atelier Fasea, to przykład nowoczesnej, zrównoważonej architektury, która łączy mobilność, ekologię i innowacyjność. Wielokrotnie nagradzany projekt wykorzystuje formę litery A (A-Shape), nawiązującą do estetyki, jaką reprezentuje nowoczesna stodoła – prostą, funkcjonalną i pełną światła. Budynek może się składać i rozkładać w zależności od pogody, a dzięki umieszczeniu na przyczepie, łatwo go przemieścić w dowolne miejsce. Wyposażony jest w piec na drewno, panele słoneczne, system odzysku wody deszczowej, rekuperację i butle gazowe, co czyni go w pełni energooszczędnym i niezależnym.

Arch. Atelier Fasea

Latem mini dom otwiera się na otoczenie – zmotoryzowany system cylindrów rozkłada zadaszenie, zapewniając cień i naturalną wentylację. Zimą natomiast zapewnia ciepło i komfort przy minimalnym zużyciu energii. Prosty plan budynku obejmuje wszystkie niezbędne funkcje – strefę dzienną, kuchnię i miejsce do spania – tworząc przytulne siedlisko dla miłośników życia w duchu minimalizmu. Ten projekt to doskonały przykład, jak nowoczesna stodoła w wersji kompaktowej może stać się ekologicznym domem przyszłości, łączącym funkcjonalność z poszanowaniem natury.