Fot. Joshua McHugh | Arch. Robert Young Architects

Przekształconybungalow z lat 80.

W swoim poprzednim życiu ten dom uchodził za „współczesny”, ale było to w latach 1980-tych. Od tego czasu jednak wiele się zmieniło, a jego „współczesność” trudno było już dostrzec.

Fot. Joshua McHugh | Arch. Robert Young Architects

Architekci z firmy Robert Young Architects wykorzystali więc to, co wciąż było dobre – jego konstrukcję i układ w stylu trzech stodół. Recykling materiałów pozwolił na zachowanie dawnego ducha domu. Zamiast wymazywać budynek z powierzchni ziemi, nadali mu zupełnie nowy charakter. Po gruntownej modernizacji wygląda jakby powstał od zera.

Fot. Joshua McHugh | Arch. Robert Young Architects

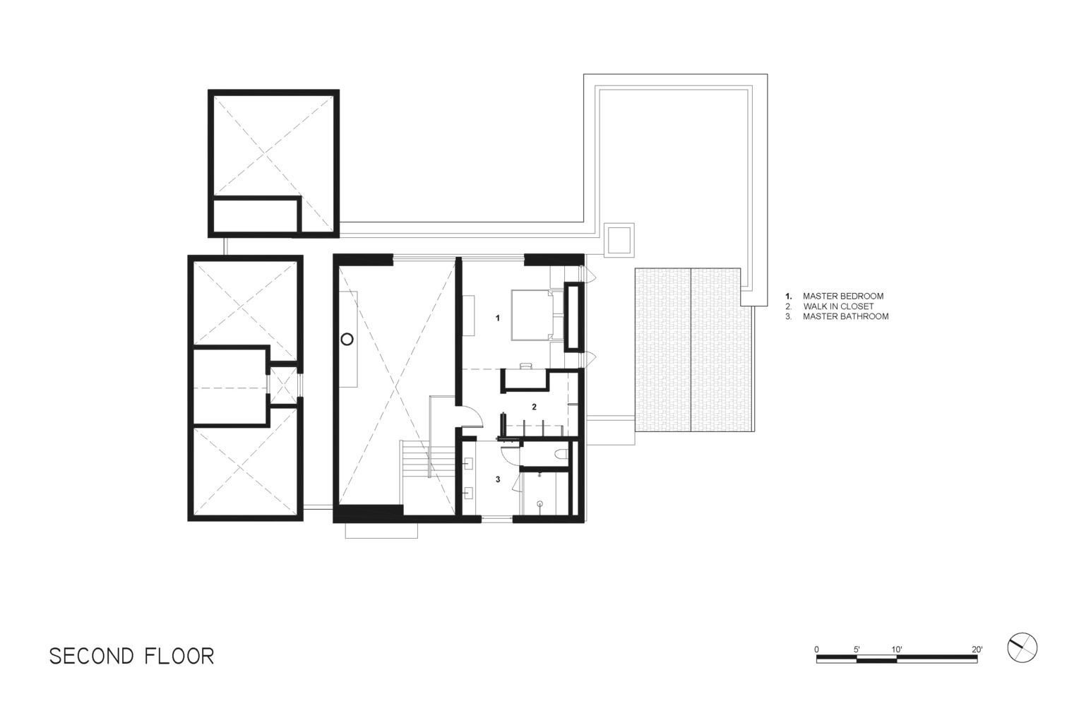
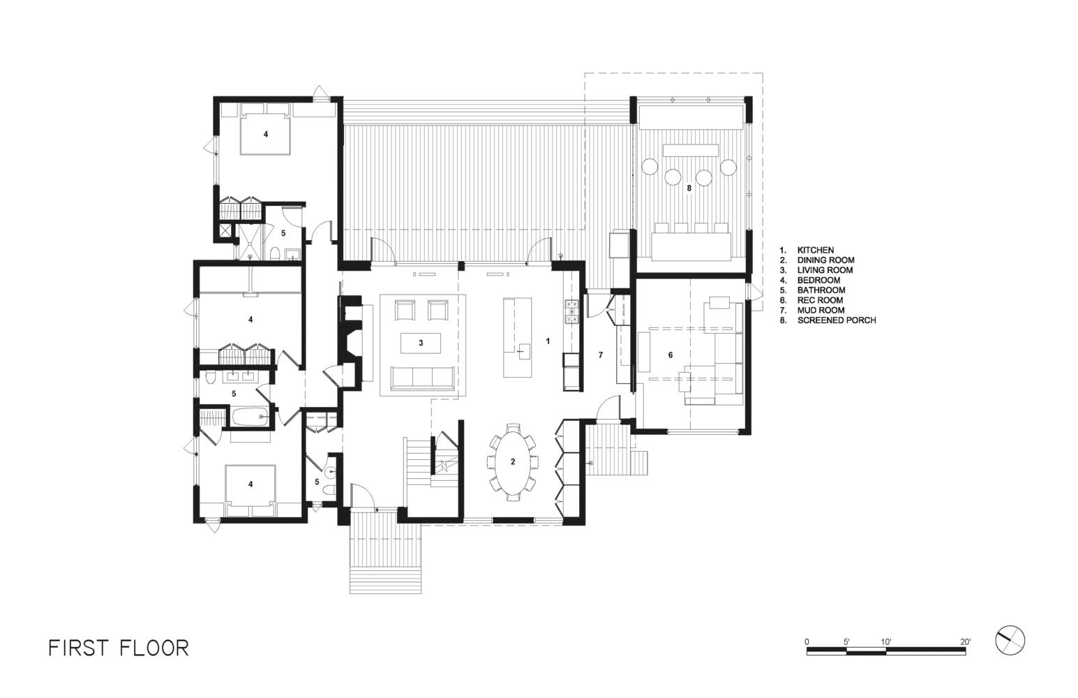
Całkowita powierzchnia domu to 332 m2. W głównym domu architekci na nowo opracowali każdy detal. Sypialnię główną, która znajduje się na piętrze, zamieniono miejscem z łazienką główną, przesuwając sypialnię na tył nieruchomości, dzięki czemu właściciele cieszą się większą prywatnością. Przestrzeń na dole została znacząco otwarta. Usunięto dziwnie zakrzywiony balkon wewnętrzny, by stworzyć przestronny salon o podwójnej wysokości. Jest on również zwrócony w stronę podwórza, na którym pojawił się nowy taras z lekko osłoniętą werandą, zupełnie nowy basen i mały domek przy basenie.

Fot. Joshua McHugh | Arch. Robert Young Architects

Cały projekt tworzy płynne połączenia między przestrzeniami wewnętrznymi i zewnętrznymi, które idealnie nadają się zarówno do wypoczynku, jak i rozrywki. We wnętrzach pojawiają się jasne podłogi z bielonego dębu oraz malowane na biało drewniane listwy, które wprowadzają lekkie, plażowe wibracje, podkreślone ciemnym betonem, brązem oraz elementami z drewna orzechowego.W dawnym budynku okna stanowiły dziwaczny układ nieskoordynowanych kształtów, więc w nowym projekcie architekci zwrócili na nie dużą uwagę, wykorzystując je w taki sposób, by stworzyć nowoczesny, otwarty wygląd domu, ale nie eksponując go nadmiernie. Z tyłu domu pojawiają się duże kwadratowe tafle szkła, które tworzą czystą estetykę od zewnątrz, a wnętrze otwierają na wspaniałe widoki i światło. Od frontu jednak okna zostały zaplanowane tak, by zapewniały odpowiednią prywatność.

Fot. Joshua McHugh | Arch. Robert Young Architects

Od zewnątrz architekci podkreślili w tym projekcie proste, ikoniczne wręcz kształty trzech konstrukcji nawiązujących do dawnych stodół, stosując na  łączących je elementach barwione na czarno drewno cedrowe. Czarny kolor kontrastuje i „chowa się w cień” przy naturalnej, cedrowej elewacji, która z czasem nabierze srebrzystych odcieni.

Fot. Joshua McHugh | Arch. Robert Young Architects

W łączniku między główną częścią domu a pokojem rodzinnym został zmieniony rozkład, by stworzyć tam boczne wejście i przedpokój, który łączy się również z tylną częścią budynku. W ten sposób zwiększono praktyczność tej przestrzeni domu, który ostatecznie zyskał rzeczywiście „współczesny” styl.