Fot. Ed Lederman | Arch. TA Dumbleton Architect

Weekendowy domw Hamptons

Studio architektoniczne TA Dumbleton Architect z Dublinu zaczerpnęło inspirację do tego projektu z dwóch rozbieżnych typologii – starego domu na farmie i miejskiego loftu. W efekcie udało się stworzyć piękny, weekendowy dom na nowojorskiej Long Island. Dom gościnny znajduje się w niewielkiej osadzie Bridgehampton w Hamptons. Budynek zlokalizowano w narożnej części dużej działki z ogrodem, basenem, zewnętrznym prysznicem i miejscem na grilla.

Fot. Ed Lederman | Arch. TA Dumbleton Architect

Przy projekcie i budowie domku dla gości – co zajęło w sumie osiem miesięcy – architekci kierowali się zarówno zabudową wiejską, jak i miejską. „Pozostałości starego domu wiejskiego o prostych kształtach i powielających się otwarciach udało się połączyć z otwartą przestrzenią typową dla nowojorskiego loftu” mówi architekt.

Fot. Ed Lederman | Arch. TA Dumbleton Architect

Prostokątny dom o dwóch poziomach ma betonowe ściany pokryte białym tynkiem. Stalowe ramy okien i drzwi nadają całemu budynkowi wyjątkowy charakter. Wielopoziomowy dach dwuspadowy przykryto cedrowym gontem, w którym ciągłość przerywa seria prostokątnych okien dachowych.  Przeszklona ściana północna zapewnia wyjątkowe widoki na ogród, wpuszczając jednocześnie do wnętrza ogromną ilość światła. „Dom tworzy wiele połączeń ze swym najbliższym otoczeniem. Ogromne okno o podwójnej wysokości jeszcze bardziej potęguje powiązanie wnętrza z odległą przestrzenią zewnętrzną”.

Fot. Ed Lederman | Arch. TA Dumbleton Architect

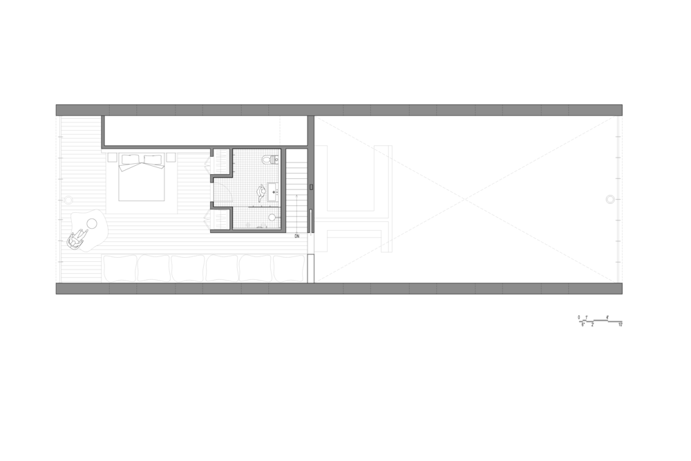
Cały dom ma powierzchnię 279 m2 i mieści kuchnię o podwójnej wysokości, przestrzeń dzienną oraz sypialnię na parterze. Na strychu urządzonym w stylu loftu znajduje się druga sypialnia. W całości obito ją drewnem w ciepłym kolorze, odzyskanym po rozbiórce magazynu w Brooklynie. Drewno z odzysku wykorzystano także do stworzenia szafek w kuchni.

Fot. Ed Lederman | Arch. TA Dumbleton Architect

Wnętrze całego domu jest przestronne i wypełnione naturalnym światłem. Studio wprowadziło do wnętrza jasne, betonowe podłogi oraz kominki z czarnymi, metalowymi koninami. Dom umeblowany jest w stylu współczesnym, a wzrok przyciąga geometryczny mały stolik oraz czarna lampa podłogowa, która przypomina swym wyglądem klatkę dla ptaków.