Fot. Koen Broos | Arch. VIVA Architecture

Interpretacjatradycyjnej zabudowy wiejskiej

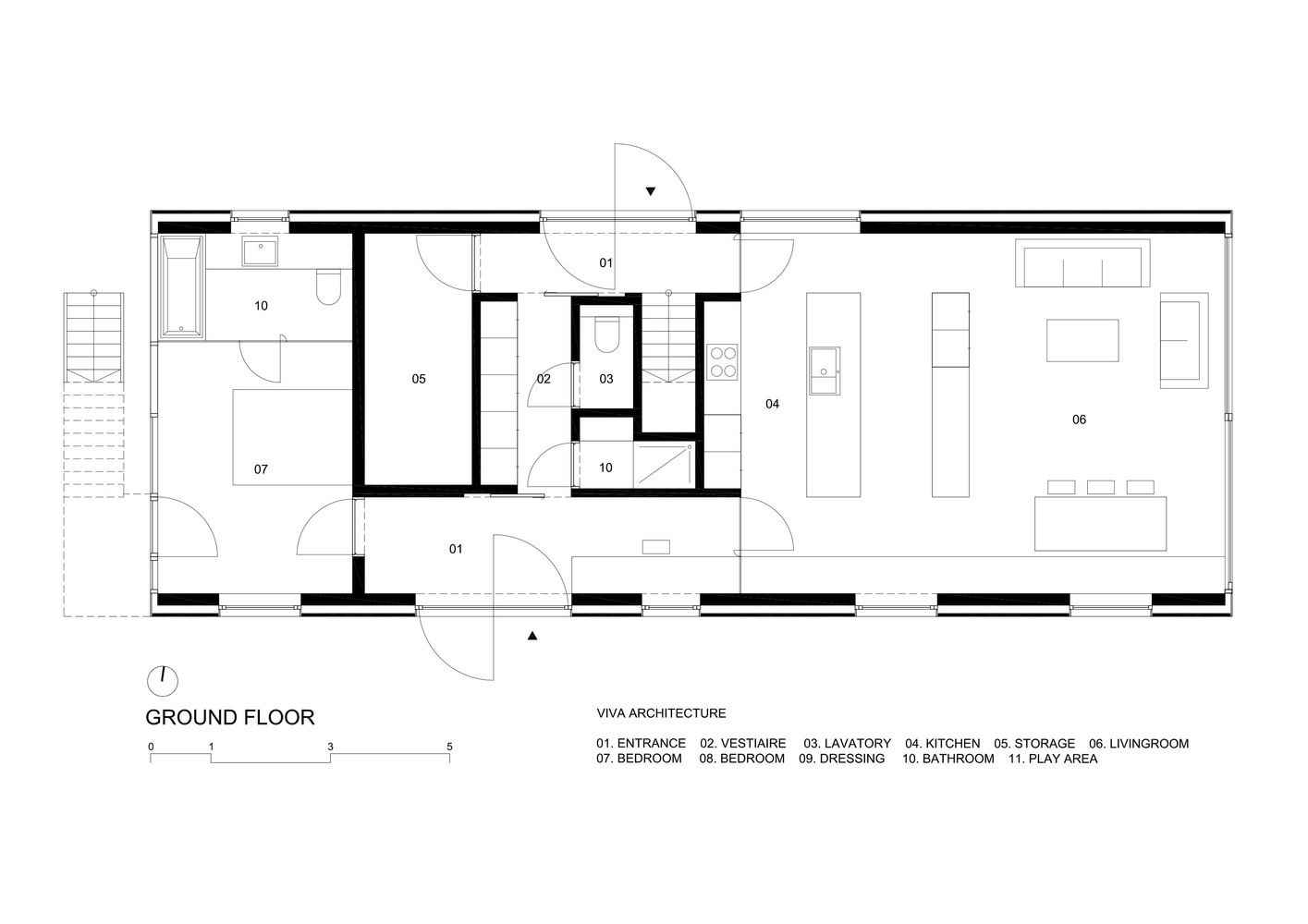
W rolniczym regionie Holandii rozebrano duży budynek z końca XIX wieku, by zastąpić go jego współczesną interpretacją. Po analizach okazało się, że stworzenie nowego domu będzie tańsze i pozwoli dostosować konstrukcję do funkcjonującej tu farmy jeleni. Nowa bryła powstała jako dom z CLT, czyli konstrukcja z litego drewna, zapewniająca szybkość realizacji i wysoką energooszczędność. Właściciel marzył o dużych oknach, które otworzą dom na okoliczną przyrodę i pozwolą mu obserwować zwierzęta – dlatego architekci zaprojektowali długie, podłużne przestrzenie, tworzące sekwencyjny układ wnętrza, charakterystyczny również dla koncepcji nowoczesna stodoła.

Fot. Koen Broos | Arch. VIVA Architecture

Projekt nawiązuje do lokalnej tradycji, ale wprowadza także nowoczesną interpretację klasycznych form. Gliniane dachówki przechodzą płynnie z dachu na elewację, przerywaną jedynie oknami w trzech rozmiarach. Ściany szczytowe wykonano z połączenia szkła i paneli aluminiowych, co dodaje lekkości i współczesnego charakteru. Dom o powierzchni 250 m² został zrealizowany w ograniczonym budżecie 325 tys. euro, obejmującym również wykończenie kuchni, łazienek oraz wykonanie mebli na wymiar. Pozostawienie drewnianej konstrukcji CLT nieosłoniętej znacząco obniżyło koszty, jednocześnie tworząc spójną, ciepłą estetykę wnętrza.

Fot. Koen Broos | Arch. VIVA Architecture

Modułowe meble oraz wszystkie stałe zabudowy powstały z tego samego materiału co konstrukcja domu, dzięki czemu całość sprawia wrażenie przestrzeni niemal w całości wykonanej z drewna. Czarno-białe detale dopełniają minimalistyczną kompozycję, podkreślając surową prostotę życia na farmie. Jasne, przestronne pomieszczenia otwierają się na krajobraz i diametralnie różnią się od dawnych, ciemnych zakamarków tradycyjnych gospodarstw. To projekt, który idealnie łączy nowoczesne budownictwo z duchem holenderskiej wsi.