Arch. Adam Krzysztofiak
  • Architekt

    Adam Krzysztofiak

Samowystarczalny domz dachem solarnym

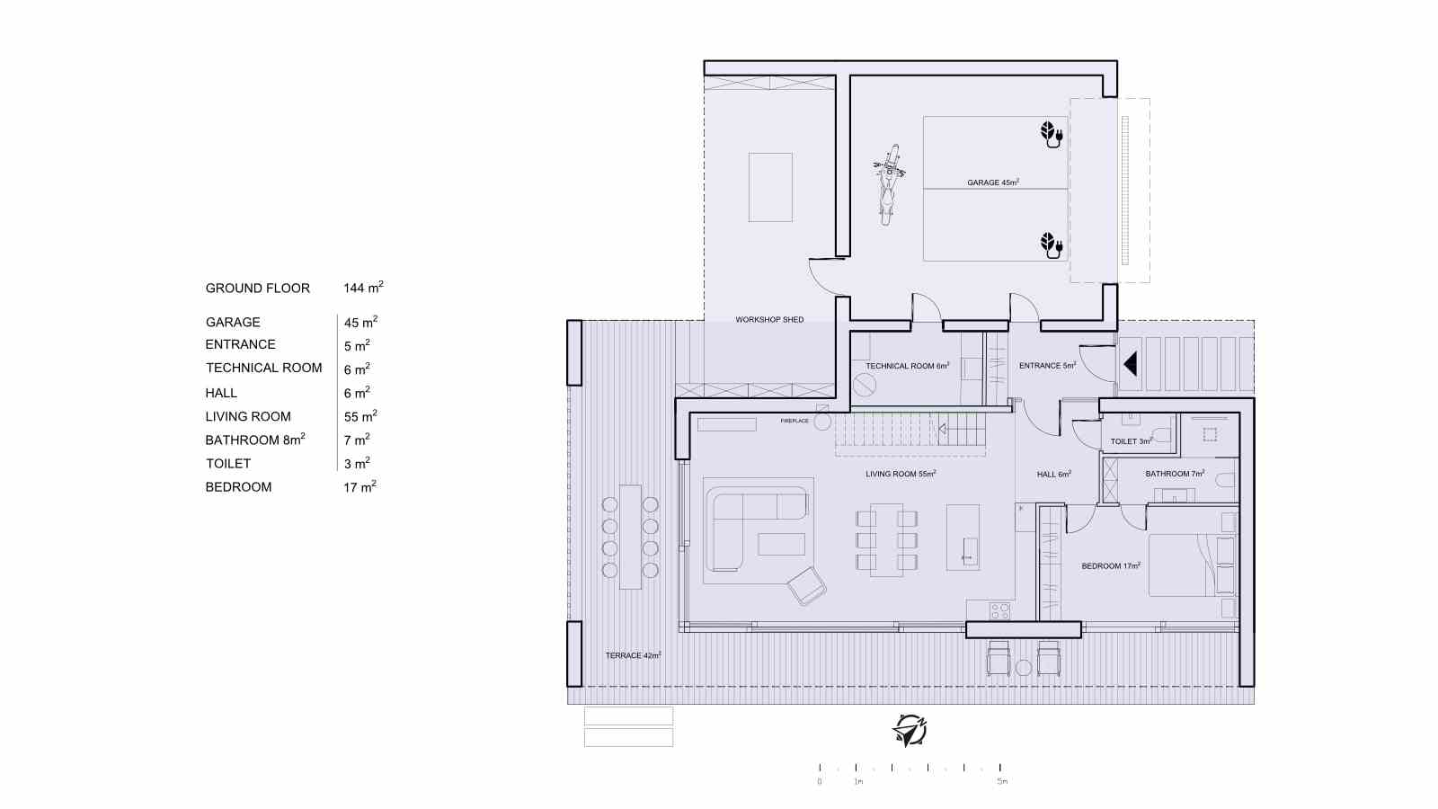
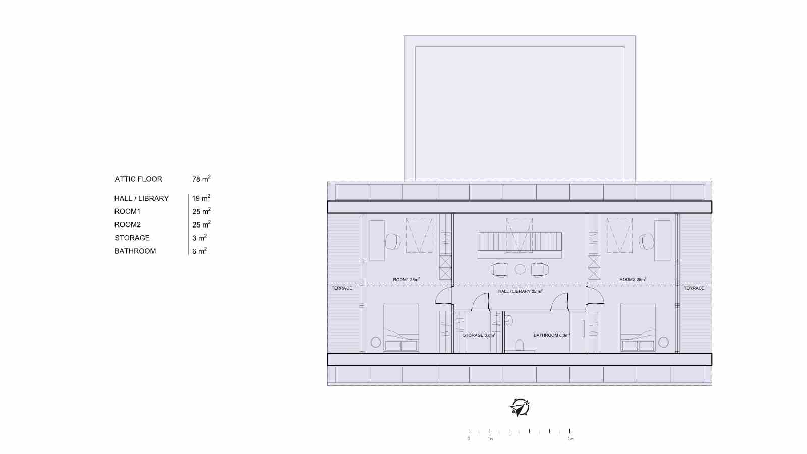
W urokliwym krajobrazie pogranicza polsko-czeskiego powstał projekt New Country House – nowoczesny, energooszczędny dom zaprojektowany przez architekta Adama Krzysztofiaka. Ten ekologiczny budynek o formie przypominającej nowoczesną stodołę łączy minimalistyczną estetykę z zaawansowaną technologią. Wykorzystano tu innowacyjny dach solarny SunRoof, który nie tylko chroni i izoluje budynek, ale również produkuje energię elektryczną. Dom został zaprojektowany z myślą o czteroosobowej rodzinie – z przestronną częścią dzienną, otwartą na taras i naturę, oraz wygodną strefą prywatną na poddaszu.

Arch. Adam Krzysztofiak

Minimalistyczna bryła z dwuspadowym dachem i płaskim garażem tworzy nowoczesną i spójną kompozycję architektoniczną. Dach SunRoof, wykonany z monokrystalicznego szkła hartowanego w technologii glass-glass, zapewnia najwyższą wydajność energetyczną z 1 m² powierzchni. Dom wyposażono w pompę ciepła, system rekuperacji, klimatyzację oraz stanowiska do ładowania dwóch samochodów elektrycznych – wszystko zasilane zieloną energią. Tego typu nowoczesna stodoła pozwala na pełną samowystarczalność energetyczną bez rezygnacji z komfortu czy estetyki.

Arch. Adam Krzysztofiak

Dodatkowo budynek zintegrowano z systemem smart home, który automatyzuje zarządzanie oświetleniem, temperaturą, zużyciem energii oraz ładowaniem aut elektrycznych. Technologia SunRoof współpracuje z inteligentnym systemem, optymalizując zużycie energii i zwiększając efektywność całego domu. Projekt New Country House, zgłoszony do międzynarodowego konkursu „Design Przyszłości – Najlepszy Projekt SunRoof 2021”, stanowi wzorcowy przykład zrównoważonego budownictwa nowej generacji. Łączy w sobie piękno prostoty, technologiczną innowacyjność i silny związek z naturą – tak, jak powinna wyglądać współczesna nowoczesna stodoła przyszłości.