Fot. Nick Dearden | Arch. 31/44 Architects

Przekształcony dom rodzinnyz basenem i strefą SPA

Norfolk BARN to przestronny dom rodzinny z czterema sypialniami, który przeszedł przekształcenie ze starej stodoły rolniczej. Dom wyróżnia się spokojną, powściągliwą powierzchnią zewnętrzną oraz dramaticzną objętością wnętrza, które łączy funkcjonalność z nowoczesnym designem. Zlokalizowany na rozległej powierzchni 450 m², projekt łączy tradycyjny charakter stodoły z komfortem współczesnego domu rodzinnego.

Fot. Nick Dearden | Arch. 31/44 Architects

Z zewnątrz, dom prezentuje skromną fasadę, na której brak widocznego wejścia. Zagłębione wejście, ukryte w cieniu, oraz prosty pionowy wzór metalowych i drewnianych żaluzji tworzą spójną estetykę, która otula cały budynek i załamuje się na tylnej elewacji. Centralnym punktem projektu jest 15-metrowy kryty basen, który biegnie wzdłuż całej przestrzeni domu, dostępny bezpośrednio z głównych pomieszczeń socjalnych. Rekreacja, relaks i zabawa to serce tego domu.

Fot. Nick Dearden | Arch. 31/44 Architects

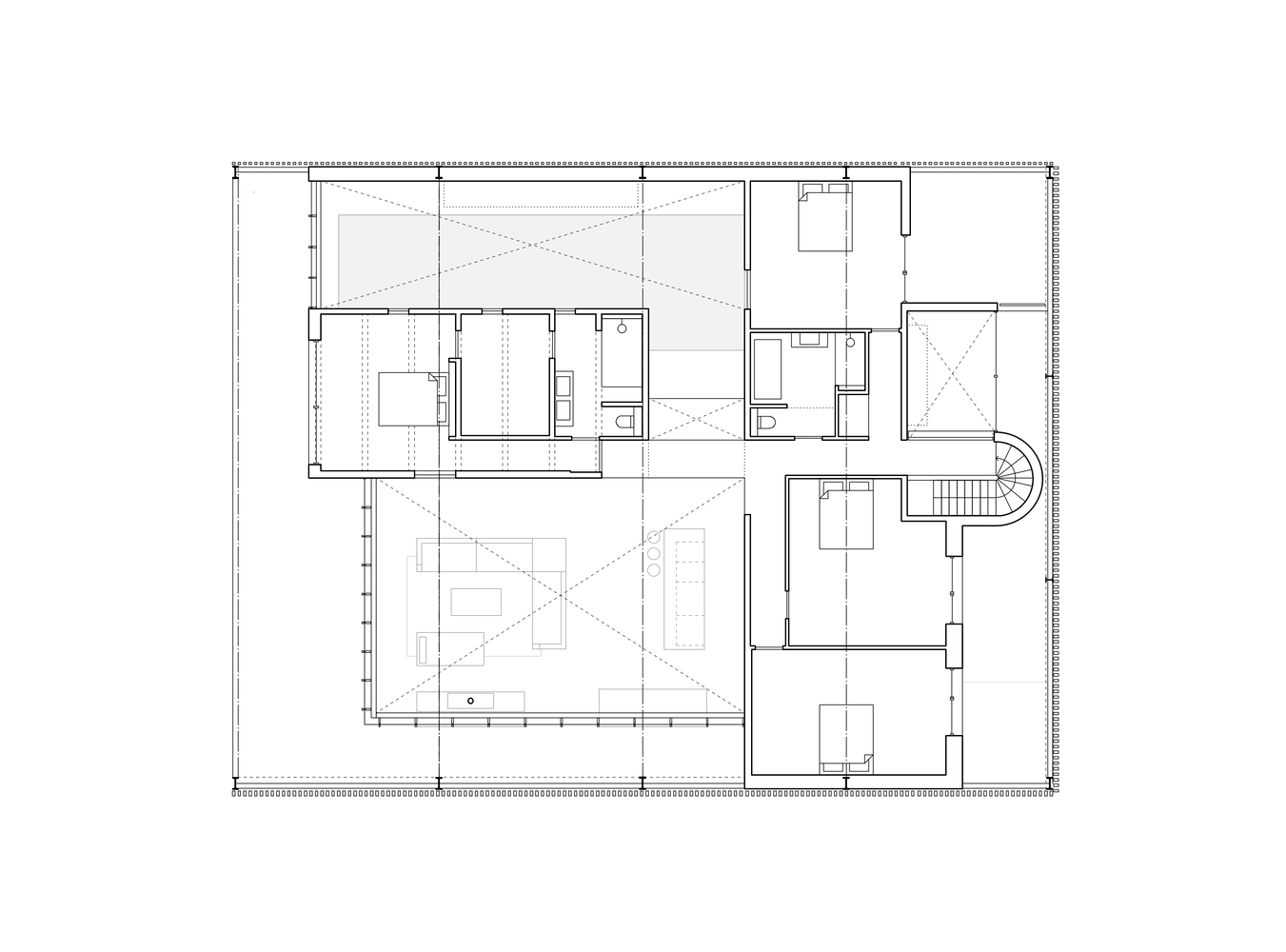
We wnętrzu właściciel pragnął zachować surowy charakter oryginalnej stodoły, łącząc czyste struktury architektoniczne z inspiracjami zaczerpniętymi z roślinnych form i tradycyjnych budynków rolniczych. Strefy dzienne – salon, kuchnia oraz jadalnia – jak również kryty basen i strefa SPA to przestrzenie o podwójnej wysokości, otoczone naturalnymi materiałami. Dodatkowo, sąsiednia konstrukcja przebiega przez całą szerokość budynku, tworząc intymne przestrzenie dla rodzinnych potrzeb, w tym sypialnie chłopców na górnym piętrze oraz sypialnię gościnną z prywatnym tarasem.

Fot. Nick Dearden | Arch. 31/44 Architects

W projekcie architektonicznym zachowano pamięć o budynku jako przestrzeni rolniczej, jednocześnie dostosowując ją do współczesnych potrzeb domowego komfortu. Skala wyposażenia i materiały zostały starannie dobrane przez klienta, aby harmonizować z wielkimi przestrzeniami i podkreślić życie rodzinne w nowoczesnej odsłonie stodoły.