Fot. Federica Carlet | Arch. Archi-Tectonics

Nowoczesna stodołaz mosiężnymi detalami

Archi-Tectonics zrealizowało spektakularną renowację istniejącej rezydencji, łącząc klasyczne cechy architektoniczne z nowoczesnymi rozwiązaniami. W projekcie nie tylko odnowiono wnętrza, ale również dodano rzeźbiarskie ogrodzenia harmonijnie wpisujące się w pagórkowaty krajobraz całej posesji.

Fot. Federica Carlet | Arch. Archi-Tectonics

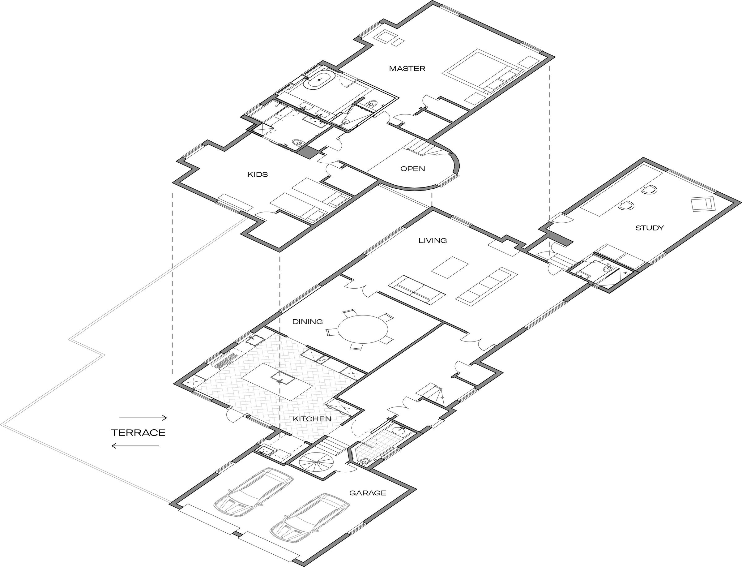
Wnętrze domu zostało całkowicie przeprojektowane. Szczególny nacisk położono na kuchnię z jadalnią oraz łazienki, które przekształcono w przestrzenie relaksu, pełne naturalnych materiałów, światła i neutralnych kolorów. Na tle eleganckiego kamienia pojawiają się mosiężne oprawy oświetleniowe, mosiężne włączniki światła oraz meble na zamówienie, które spajają klasyczny charakter domu z nowoczesnym, miejskim stylem życia. Inspiracją dla przebudowy była idea, by stworzyć miejsce o charakterze nowoczesnej stodoły – przestronnej, funkcjonalnej i jednocześnie wrażliwej na kontekst krajobrazowy. Architekci zachowali równowagę między elegancją i prostotą, dając domowi nowe życie bez zatracenia jego tożsamości.

Fot. Federica Carlet | Arch. Archi-Tectonics

Krajobrazowe pagórki otaczające dom wymagały niezwykłej interwencji projektowej. Klient, znany ze swojej kreatywności, oczekiwał czegoś więcej niż tradycyjnego ogrodzenia wokół basenu i oczka wodnego.

Fot. Federica Carlet | Arch. Archi-Tectonics

Zespół Archi-Tectonics zaproponował drewniane rzeźbiarskie ogrodzenia, które nie tylko harmonizują z otoczeniem, ale także nie zasłaniają panoramicznych widoków. Ukształtowane zgodnie z linią terenu, tworzą naturalny rytm i wizualną lekkość. Drewniane elementy wznoszą się i opadają razem z pagórkami, tworząc płynne przejścia między architekturą a naturą. Otaczają dom, ogród, staw i basen, integrując przestrzenie bez zakłócania widoków.