Fot. Edith Verhoeven | Arch. Maas Architecten
  • Architekt

    Maas Architecten
  • Fotograf

    Edith Verhoeven
  • Lokalizacja

    Berlicum, Holandia

Połączenietradycji i innowacji

Spod krytego strzechą, dwuspadowego dachu wysuwa się szklany element, który na pierwszy rzut oka przypomina swym wyglądem tradycyjną szklarnię. W tym przypadku stanowi on jednak nowoczesną część willi. Architekci zaprojektowali ten dom z myślą o konkretnym miejscu, które wyłania się z wiejskiego krajobrazu na skraju miasta Berlicum w holenderskiej prowincji North Brabant. Projekt miał połączyć regionalne formy z nowoczesnymi detalami.

Fot. Edith Verhoeven | Arch. Maas Architecten

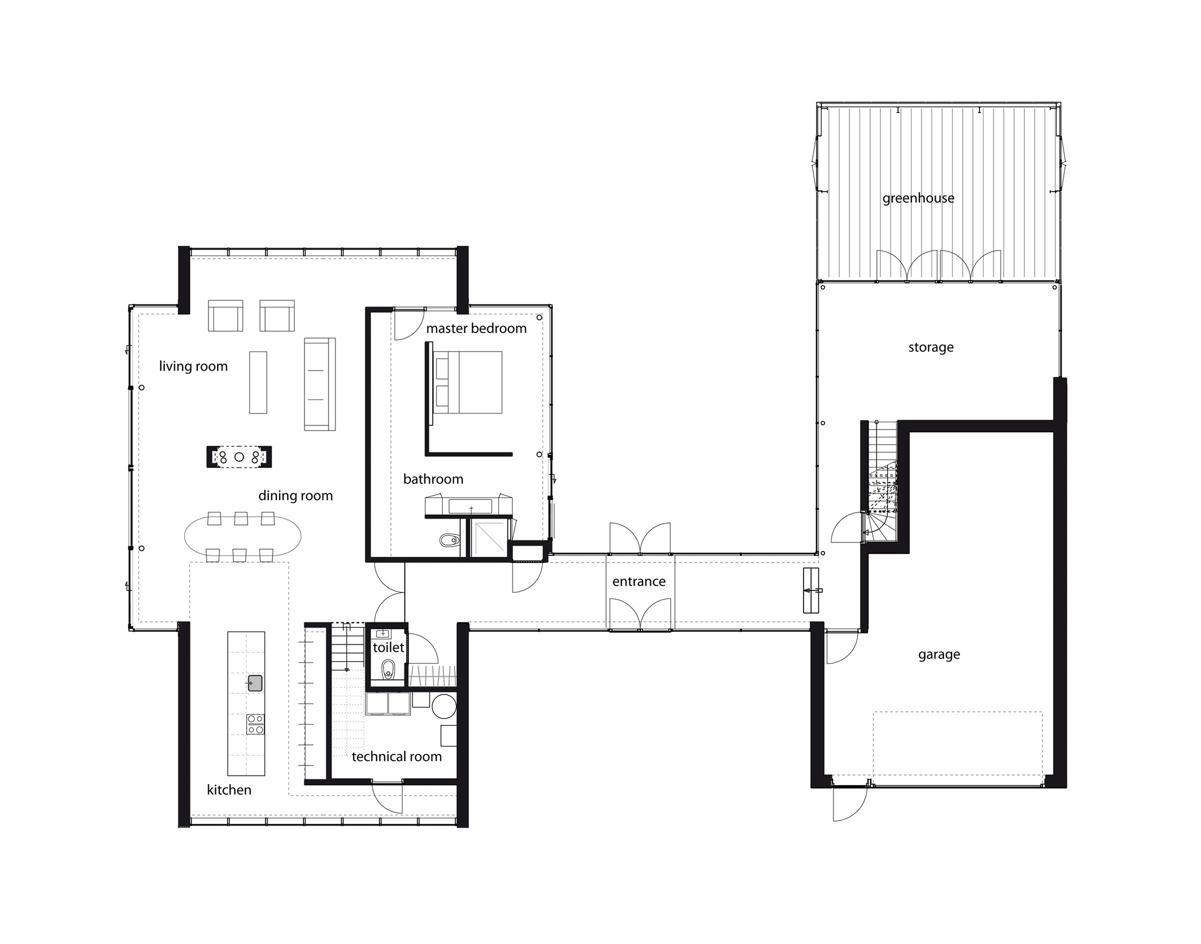
Budynek ma kształt litery H i dwa kontrastujące ze sobą skrzydła. Jedno z nich ma ciemną, drewnianą elewację. Drugie zespolono z konstrukcją z dużymi przeszkleniami. Lukę między skrzydłami wypełnia centralny, przeszklony korytarz, w którym znajduje się również wejście do domu. Element znajdujący się po prawej stronie od wejścia mieści garaż i przestrzenie użytkowe. To właśnie tą część połączono ze „szklarnią”, która wysuwa się spod dachu krytego strzechą. Przeszklony dach, który zachowuje ten sam kształt co główna część pokrycia, wpuszcza do wnętrza mnóstwo dziennego światła, a przestrzeń, która się pod nim kryje ma być wykorzystywana jako studio.

Fot. Edith Verhoeven | Arch. Maas Architecten

Po stronie przeciwnej znajduje się drugie skrzydło, w którym urządzono główne przestrzenie dzienne. Po bokach otoczono je w pełni przeszklonymi ścianami. Na granicy działki od frontu rośnie rząd drzew, które zapewniają wnętrzom niezbędną w tej sytuacji prywatność, chroniąc mieszkańców przed wzrokiem osób jeżdżących po pobliskiej drodze. Duże przeszklenia otwierają wnętrza, a szczególnie salon, jadalnię i studio na otaczające dom krajobrazy. „Kształt litery H tworzy prywatne przestrzenie zewnętrzne, w których można usiąść, by podziwiać zachód słońca”  mówią architekci. „Dom zapewnia prywatność pomimo sporej ilości przeszkleń.”

Fot. Edith Verhoeven | Arch. Maas Architecten

Kuchnia, spiżarnia i toaleta znajdują się w drewnianym elemencie obok salonu. Sypialnia główna wychodzi na osłonięty dziedziniec stworzony w części centralnej. Dziedziniec jest też świetnym miejscem do zorganizowania kolacji na świeżym powietrzu. Połączono je z basenem oraz tarasem, dzięki wprowadzeniu mostka, który biegnie nad urządzonym w tym miejscu stawem.