Arch. Demo Architects

Energooszczędny dom z dusząi metalową elewacją

Olive House to wyjątkowy, wielokrotnie nagradzany projekt studia Demo Architects, którego autorem jest architekt Alessandro Ronfini. Bryła budynku została otulona metalową elewacją, a drewniane akcenty niczym rzeźbienia przełamują jej surowość, tworząc efekt „ugryzienia bobra” lub rozłupanej geody. Ta artystyczna koncepcja widoczna jest szczególnie na południowej elewacji, gdzie drewno kontrastuje z czernią metalu, wprowadzając naturalne ciepło do minimalistycznej formy. Olive House zachwyca swoją prostotą, ale i wyrafinowaniem – to dom, w którym forma i funkcja przenikają się w harmonijny sposób, przypominając architekturę, jaką często przybiera nowoczesna stodoła.

Arch. Demo Architects

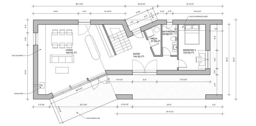
Z zewnątrz budynek przypomina monolit, natomiast wnętrze zaskakuje jasnością, naturalnym światłem i ciepłymi barwami. Duże przeszklenia zapewniają kontakt z naturą, a kolorystyczne akcenty – błękit kuchni, żółć i róż łazienki – ożywiają przestrzeń, podkreślając nowoczesny charakter domu. Całość dopełniają designerskie lampy, które nadają wnętrzom unikalnego stylu. Olive House został zaprojektowany w hrabstwie Ulster, w stanie Nowy Jork, jako dom jednorodzinny o wysokiej efektywności energetycznej. Zastosowane prefabrykowane panele pokryte materiałem galvalume – mieszanką cynku, aluminium i silikonu – gwarantują trwałość oraz ochronę przed korozją, wpisując się w ideę zrównoważonego budownictwa.

Arch. Demo Architects

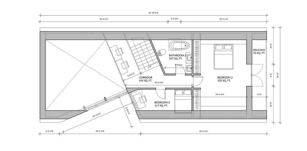
Projekt Olive House łączy w sobie dbałość o estetykę i troskę o środowisko. Budynek został zaprojektowany jako dom pasywny z certyfikatem PHIUS+, co oznacza, że zużywa nawet 80% mniej energii niż standardowe domy w regionie. Odpowiednio ukształtowana bryła i przemyślane przeszklenia pozwalają na maksymalne wykorzystanie światła dziennego oraz naturalną regulację temperatury. Elewacja południowa otwiera się na staw po wschodniej stronie działki, tworząc zadaszony taras – naturalne przedłużenie strefy dziennej. To przykład, jak nowoczesna stodoła może łączyć design, ekologię i komfort życia w jednym harmonijnym projekcie.