Fot. Nicole Franzen | Arch. Studio Bartolotta LLC, Jesse Parris-Lamb

Luksusowy domz widokiem na wodę

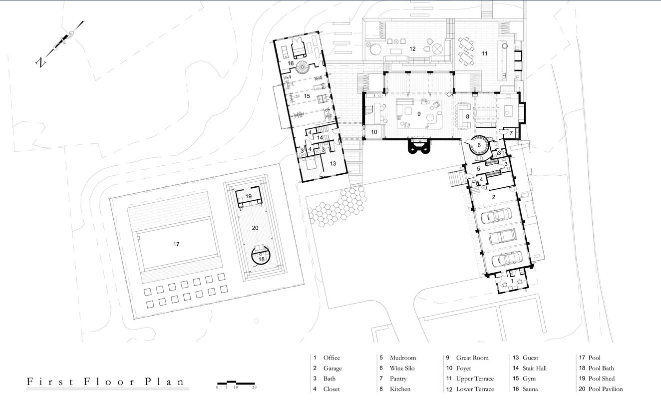
Położony na rozległej działce na malowniczej Wyspie Canfield, Osprey Barns to wyjątkowa nowoczesna stodoła mieszkalna, która łączy surową estetykę industrialnych przestrzeni z komfortem i funkcjonalnością współczesnego domu rodzinnego. Na pierwszy rzut oka przypomina kompleks przemysłowy, jednak dzięki dużej ilości naturalnego światła, panoramicznym oknom oraz niezrównanym widokom na wodę, staje się przytulną oazą spokoju.

Fot. Nicole Franzen | Arch. Studio Bartolotta LLC, Jesse Parris-Lamb

Ten luksusowy dom o powierzchni ponad 1160 m² zawiera aż siedem sypialni i osiem łazienek, co czyni go idealnym miejscem do wypoczynku i spotkań towarzyskich. Został zaprojektowany jako przestrzeń rekreacyjna dla dyrektora finansowego i jego czwórki dzieci – z myślą o rodzinie, przyjaciołach i relaksie.

Fot. Nicole Franzen | Arch. Studio Bartolotta LLC, Jesse Parris-Lamb

Proces projektowy trwał ponad pięć lat i był efektem ścisłej współpracy właściciela z architektem Andrew Bartolottą. Początkowo miała to być nowoczesna willa, jednak z czasem projekt ewoluował – stając się połączeniem domu plażowego w stylu industrialnym z elementami nawiązującymi do angielskich fabryk z XIX wieku. Efekt? Spektakularna, a zarazem skomplikowana konstrukcja, będąca ukłonem w stronę postindustrialnej estetyki.

Fot. Nicole Franzen | Arch. Studio Bartolotta LLC, Jesse Parris-Lamb

Za wystrój wnętrz odpowiadało studio Jesse Parris-Lamb, które miało za zadanie stworzyć atmosferę ciepła, komfortu i nadmorskiej swobody. Dzięki zastosowaniu ziemistych, neutralnych kolorów, naturalnych tkanin oraz drewna, wnętrza zyskały przytulność kontrastującą z ciemną, surową elewacją.

Fot. Nicole Franzen | Arch. Studio Bartolotta LLC, Jesse Parris-Lamb

Ogromne okna, które niczym ramy eksponują widoki zmieniających się pór roku, tworzą wrażenie życia w galerii sztuki. Całość dopełniają kontrasty materiałów – od betonu, przez stal, aż po drewno i len – które razem tworzą spójną, wielowymiarową przestrzeń.