Fot. The Morrisons | Arch. Jesse Garlick
  • Architekt

    Jesse Garlick
  • Fotograf

    The Morrisons
  • Lokalizacja

    Oroville, Waszyngton, Stany Zjednoczone

Idea życia off-gridi osobista historia inwestorów

Ten prefabrykowany domek wakacyjny stanął w odosobnionym, malowniczym miejscu we wschodniej części stanu Waszyngton i nie wymaga podłączenia do sieci elektrycznej ani wodociągowej. Projekt powstał z myślą o pełnej samowystarczalności oraz bliskim kontakcie z naturą, oferując mieszkańcom ciszę, prywatność i poczucie izolacji. Minimalistyczna forma budynku, jego prosta bryła oraz wykorzystanie naturalnych materiałów sprawiają, że dom wpisuje się w krajobraz i nawiązuje do współczesnych trendów, które często porównywane są do estetyki, jaką reprezentuje nowoczesna stodoła, choć w surowym, północnoamerykańskim wydaniu.

Fot. The Morrisons | Arch. Jesse Garlick

Autorem projektu jest architekt Jesse Garlick z Vancouver, który wraz z żoną Susan Elliott postanowił stworzyć dom wakacyjny umożliwiający prawdziwy odpoczynek z dala od cywilizacji. Doświadczenia z dzieciństwa, spędzanego na żaglach, nauczyły go samowystarczalności i miłości do przyrody, co stało się fundamentem tej realizacji. Po latach życia w niewielkim mieszkaniu w Vancouver, z widokiem na ruchliwe skrzyżowanie, para zdecydowała się na radykalną zmianę stylu życia. Projekt rozpoczęty w 2011 roku zbiegł się z otwarciem pracowni Platform Architecture + Design, zakończeniem kariery tanecznej Elliott oraz adopcją ich syna Teo – wszystko to wpłynęło na filozofię domu jako miejsca regeneracji i „ładowania życiowych baterii”.

Fot. The Morrisons | Arch. Jesse Garlick

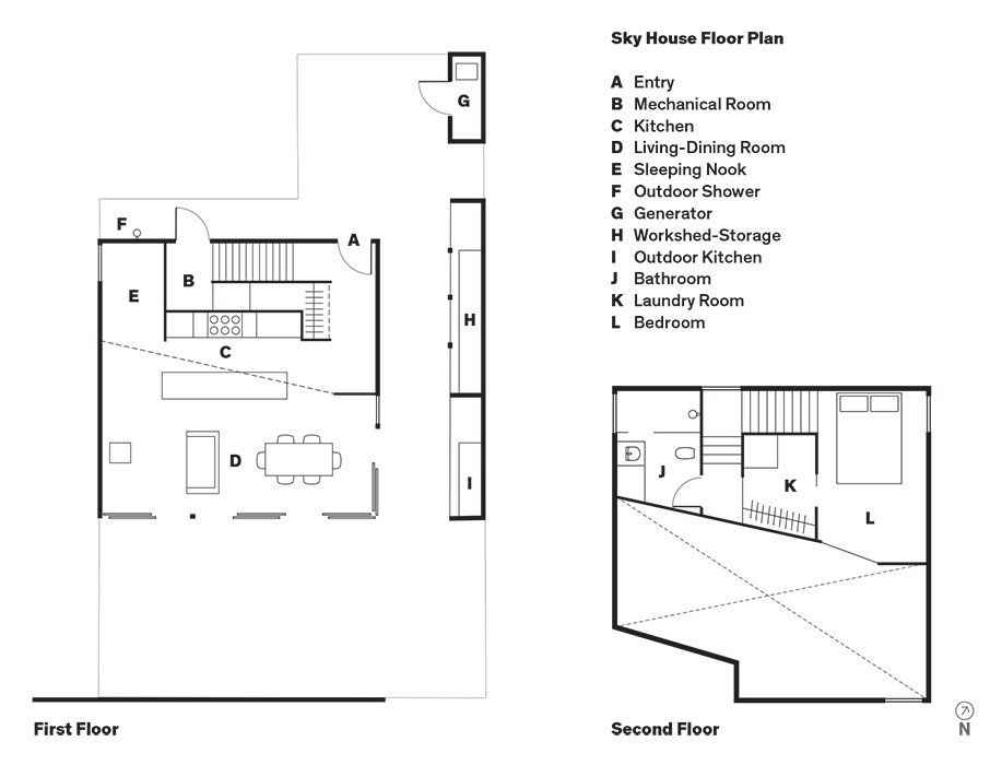
Działka położona w pobliżu miasteczka Oroville w stanie Waszyngton zadecydowała o wyborze technologii prefabrykowanej. Dwupoziomowy dom o powierzchni około 76 m² został wykonany poza placem budowy z drewnianych paneli konstrukcyjnych oraz surowej stali, a następnie przetransportowany i zmontowany na miejscu w zaledwie trzy dni. Choć transport wąską, górską drogą okazał się wyzwaniem, dzięki wsparciu lokalnej społeczności oraz czteroosobowego zespołu montażowego konstrukcja szybko stanęła. Końcowe prace trwały trzy miesiące, a bezpośrednie zaangażowanie Garlicka na każdym etapie realizacji zapewniło sprawne połączenie prefabrykacji z rzemieślniczą precyzją, niezbędną w warunkach off-grid.