Fot. Magdalena Tracz | Arch. Anna i Jakob Busch, Monika Binkowska, Barbara i Andrzej Adamczyk
  • Architekt

    Anna i Jakob Busch
    Monika Binkowska
    Barbara i Andrzej Adamczyk
  • Fotograf

    Magdalena Tracz
  • Lokalizacja

    St. Georgen im Attergau, Austria

Minimalistyczny domekmarzeń za 35 000 USD

Projekt Datscha to niezwykła realizacja marzeń pary przyjaciół i rodziny, którzy wspólnie stworzyli domek na kółkach o powierzchni 18 metrów kwadratowych. Anna i Jakob Busch, minimalista i poszukiwacz przygód, postanowili zbudować swój mobilny dom za 35 000 dolarów. Przez długi czas marzyli o stworzeniu małego, przenośnego domu, który idealnie pasowałby do ich charakterów. „Chcieliśmy czegoś małego, prostego i kompaktowego, co pozwoli nam żyć blisko natury” — mówi Anna. Projekt Datscha stał się dla nich nie tylko realizacją marzenia, ale także sposobem na życie w zgodzie z naturą i minimalizmem.

Fot. Magdalena Tracz | Arch. Anna i Jakob Busch, Monika Binkowska, Barbara i Andrzej Adamczyk

W realizację Projektu Datscha zaangażowali się nie tylko Anna i Jakob, ale także bliscy. Przyjaciele Anny — architekci Monika Binkowska oraz Barbara i Andrzej Adamczyk — pomogli zaprojektować mały dom na kółkach, a ojciec Anny był obecny na budowie przez całe trzy miesiące. „Nasz projekt zajął więcej czasu, niż się spodziewaliśmy. Zamiast trzech miesięcy, prace trwały prawie rok” — mówi Anna. Para, która tymczasowo mieszkała w Krakowie, regularnie dojeżdżała na budowę, aby dokończyć prace. W sumie projekt trwał 10 miesięcy, a koszt budowy wyniósł 35 000 dolarów.

Fot. Magdalena Tracz | Arch. Anna i Jakob Busch, Monika Binkowska, Barbara i Andrzej Adamczyk

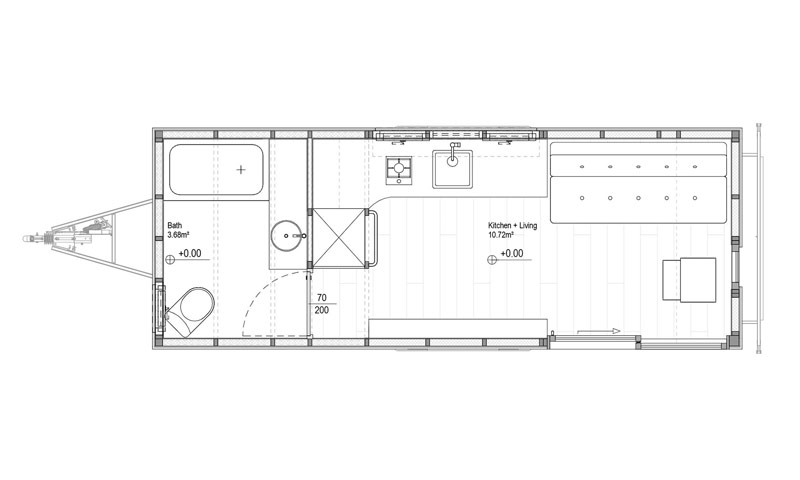
Datscha, czyli stodoła na kółkach, jest pokryta metalowym dachem z rąbkiem stojącym i jasnym świerkiem, co sprawia, że domek jest lekki i łatwy do transportu. „Najważniejsze dla nas było, aby domek był możliwie jak najlżejszy, z masą nieprzekraczającą 5 ton” — wyjaśnia Anna. Zewnętrzna strona budynku została pomalowana na półprzezroczysty biały kolor, aby nadać mu wygląd surowego drewna. Wewnątrz znajdują się drewniane panele na podłodze oraz sufit ze świerku, a ściany z sklejki z naturalnym usłojeniem nadają pomieszczeniom subtelny, ekologiczny charakter. W kuchni kuzyn Anny, Marek, stworzył funkcjonalny stół jadalny z drewna bukowego, który chowa się w szafkach, a po drugiej stronie znajduje się blat z drewna bukowego z żywymi krawędziami. Żeliwna drabina, zaprojektowana przez matkę Anny, prowadzi na poddasze sypialne, gdzie znajduje się świetlik dachowy, przez który można podziwiać gwiazdy bez opuszczania łóżka. Datscha, jako mobilny domek na kółkach, stał się synonimem ekologicznego minimalizmu i nowoczesnego stylu życia w zgodzie z naturą.