Fot. Avdeenko Ivan | Arch. Lytvyn Marharyta
  • Architekt

    Lytvyn Marharyta
  • Fotograf

    Avdeenko Ivan
  • Lokalizacja

    Kijów, Ukraina

Minimalizm, przestrzeńi więź między domami

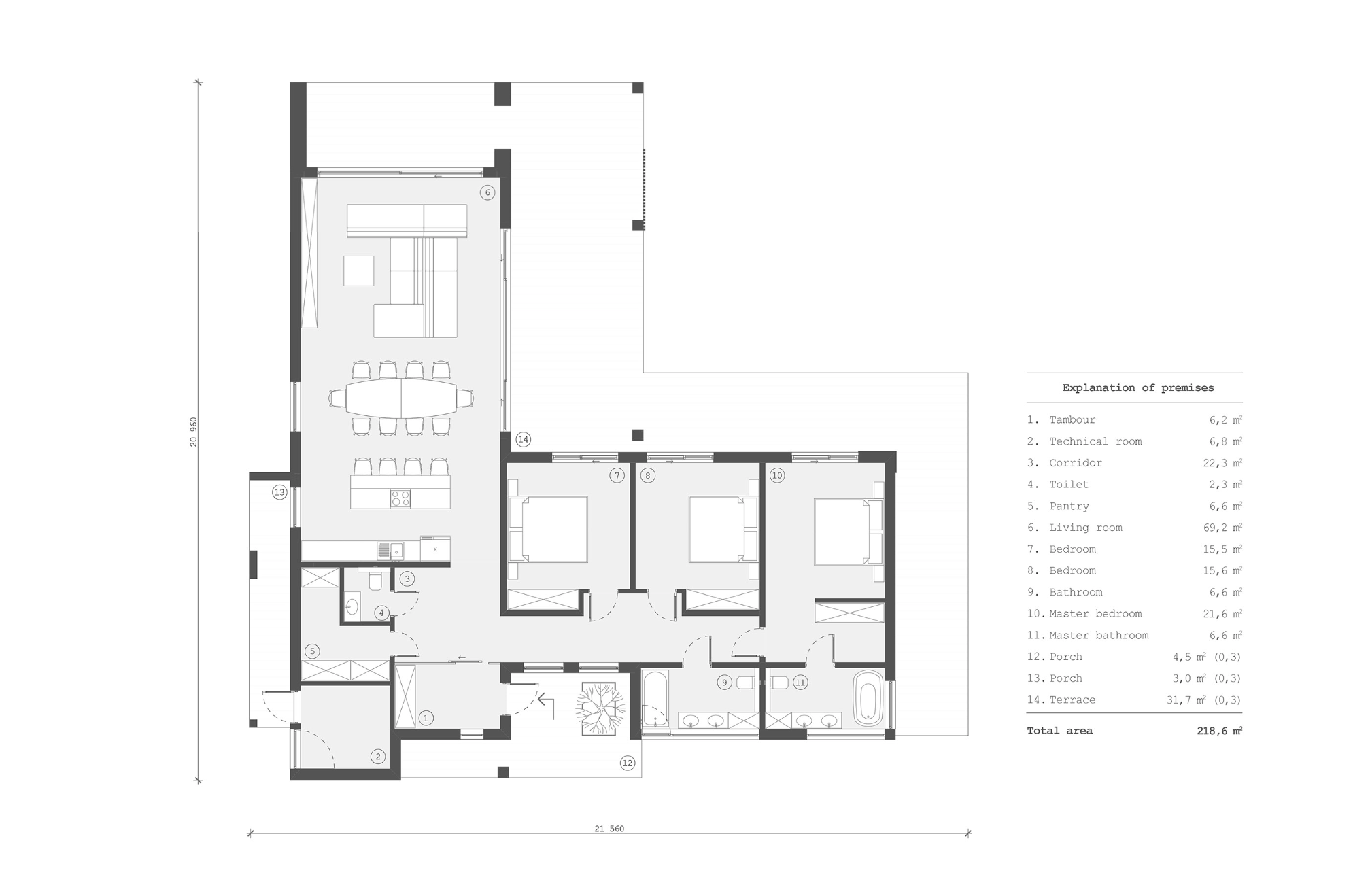
Projekt DM to indywidualna realizacja dwóch domów jednorodzinnych, zaprojektowanych z myślą o dwóch braciach, którzy chcieli stworzyć wspólne, ale niezależne miejsce do wypoczynku. Położone w spokojnym otoczeniu, budynki łączą nowoczesną stylistykę stodoły z ciepłem naturalnych materiałów i świadomym podejściem do podziału przestrzeni. Całość zajmuje 218,6 m² i stanowi przykład architektury, która zachowując prostą formę, oferuje maksimum komfortu.

Fot. Avdeenko Ivan | Arch. Lytvyn Marharyta

Trzy funkcjonalne strefy

Każdy z domów został podzielony na trzy główne bloki funkcjonalne. Pierwszy z nich to część wejściowa z zapleczem technicznym i pomieszczeniami gospodarczymi. Drugi, centralny blok, tworzy serce domu – otwarta przestrzeń salonu i kuchni o powierzchni aż 69 m², wypełniona naturalnym światłem dzięki dużym przeszkleniom i wysokim sufitom. To miejsce zaprojektowane z myślą o wspólnym czasie – z kominkiem, miękkimi sofami i widokiem na otaczający krajobraz. Trzeci blok to strefa prywatna z dwiema sypialniami dziecięcymi po 15,5 m² każda oraz master bedroom o powierzchni 21,6 m², z osobną łazienką i spokojną atmosferą sprzyjającą wyciszeniu.

Taras jako przedłużenie wnętrza

Domy zostały zaprojektowane z myślą o płynnym przejściu między wnętrzem a zewnętrzem. Wokół każdego budynku biegnie taras o powierzchni aż 105 m², który dzięki swojej różnorodnej formie – częściowo zadaszonej, częściowo osłoniętej baldachimem, a miejscami zupełnie otwartej – zapewnia komfort użytkowania niezależnie od pogody. To przestrzeń do biesiadowania, relaksu i spotkań rodzinnych.

Fot. Avdeenko Ivan | Arch. Lytvyn Marharyta

Lekkie wiązary i świetlista przestrzeń

Jednym z kluczowych elementów konstrukcyjnych są specjalnie zaprojektowane, drewniane wiązary, które nie tylko dodają charakteru wnętrzu, ale przede wszystkim pozwalają zachować jego lekkość i otwartość. Dzięki nim przestrzeń zyskuje na wysokości i oddechu, a światło naturalne swobodnie rozlewa się po całym wnętrzu.

Naturalne materiały i gra faktur

Elewacja domów to harmonijne połączenie modrzewiowego drewna i blachy, które tworzą elegancką i nowoczesną kompozycję. Aby wzbogacić wizualnie strukturę elewacji, zastosowano zestawienie gładkich desek i pionowych listew, co dodaje fasadzie dynamiki i głębi. Materiały te nie tylko świetnie się komponują, ale również starzeją się z godnością, wpisując dom w otoczenie z biegiem lat.

Projekt DM to przykład przemyślanej architektury, która łączy nowoczesność z naturą, tworząc przestrzeń idealną do odpoczynku, życia rodzinnego i budowania relacji – zarówno z bliskimi, jak i z otoczeniem.