Fot. Pavel Plánička | Arch. 3+1 architekti
  • Architekt

    3+1 architekti
  • Fotograf

    Pavel Plánička
  • Lokalizacja

    Maxičky, Czechy

Połączenie tradycjiz nowoczesnością

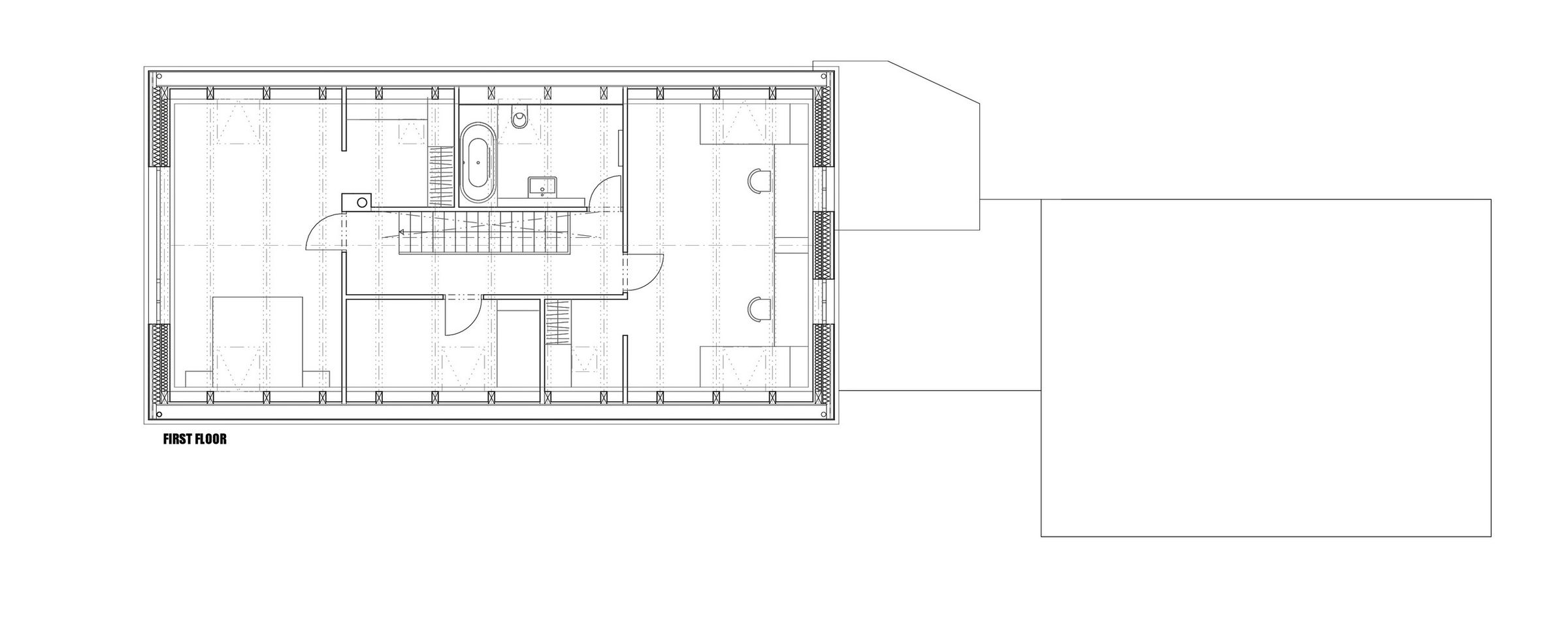
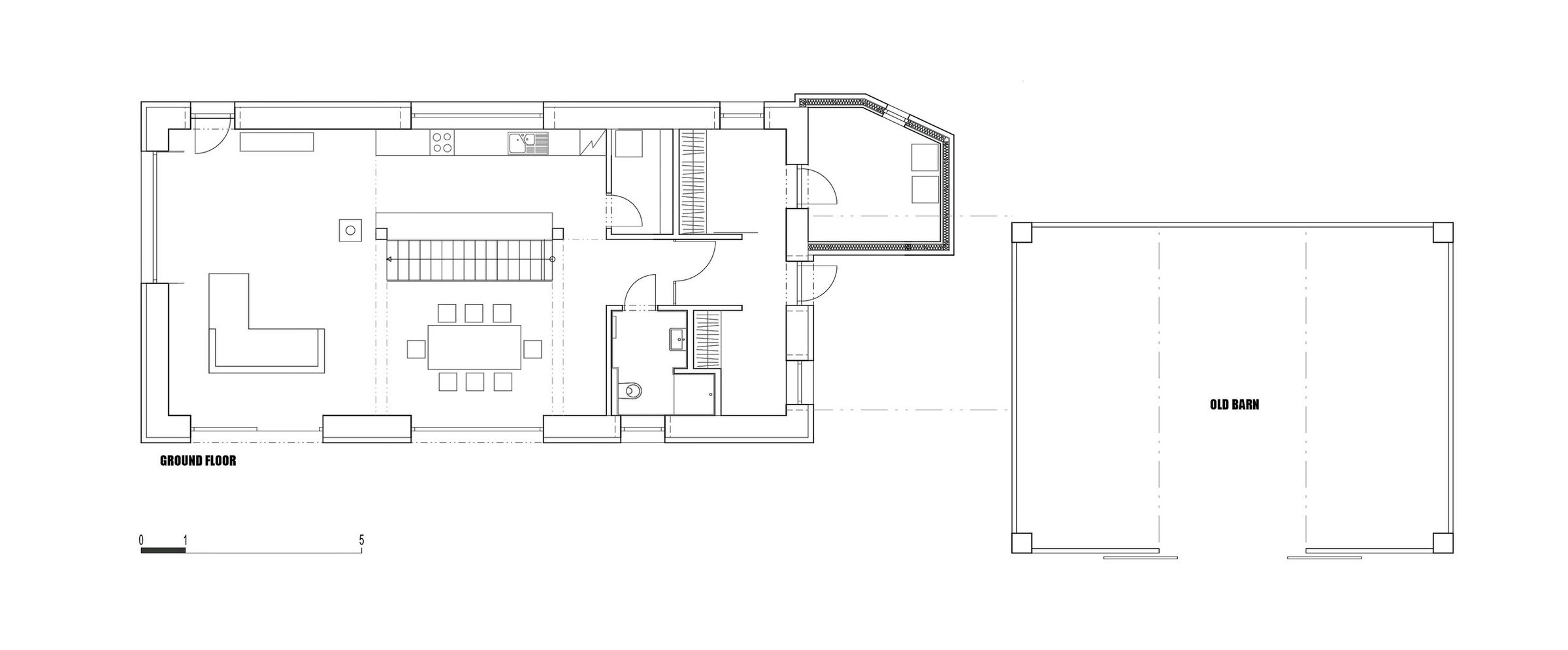
Pierwotny dom, pełen magii i historycznego charakteru, nie nadawał się do tradycyjnej rekonstrukcji. W związku z tym zaprojektowano nowoczesny budynek, który szanuje historyczny układ starej STODOŁY. Wykorzystano nowoczesne materiały budowlane, które umożliwiły stworzenie przestronnych pomieszczeń o dużej kubaturze, otwartej przestrzeni oraz funkcjonalności, nie zapominając jednak o zachowaniu pierwotnych proporcji.

Fot. Pavel Plánička | Arch. 3+1 architekti

Stare ściany z piaskowca zostały zastąpione współczesnymi materiałami, tworząc nowoczesne wnętrza, które łączą estetykę z komfortem. Małe pomieszczenia między nimi zostały zastąpione większymi, co poprawiło funkcjonalność domu. Wiele oryginalnych motywów, takich jak detale architektoniczne, zostało ponownie wykorzystanych, z subtelnymi zmianami, które nadały im nowoczesny charakter.

Fot. Pavel Plánička | Arch. 3+1 architekti

Dach, łączący nowy dom ze stodołą, stworzył nową, bliższą relację między obiema strukturami. To rozwiązanie umożliwiło przesunięcie głównego wejścia z boku na front budynku, wprowadzając nową jakość do architektury. Projekt domu, mimo że jest nowoczesny, z pewnością można określić mianem „remontu” – świadoma kontynuacja tradycji i designu stanowi podstawę całej koncepcji.