Fot. Tom Blachford | Arch. MELANIE BEYNON AD

Rozbudowa z charakteremi dbałością o detal

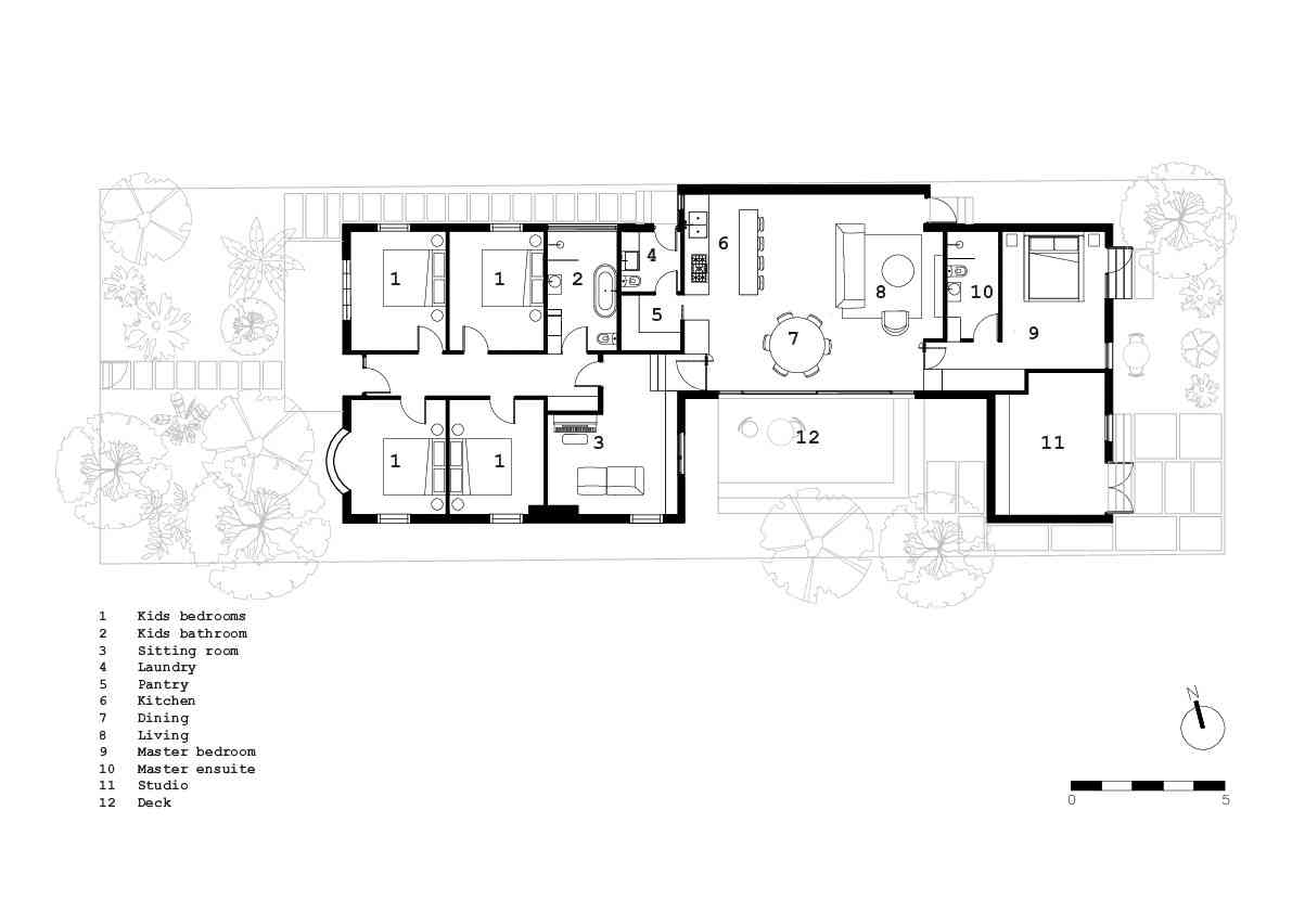
Northcote Residence to nowoczesna reinterpretacja klasycznego domu w stylu edwardiańskim, zlokalizowanego w Melbourne w Australii. Projekt autorstwa Melanie Beynon Architecture & Design (MBAD) powstał w 2020 roku i obejmuje 250 m² powierzchni mieszkalnej. Architekci stworzyli rozbudowę i renowację istniejącego budynku dla młodej, sześcioosobowej rodziny, dbając o najwyższy poziom rzemiosła, detal i jakość materiałów. W efekcie powstał ciepły, rodzinny dom, który łączy przeszłość z teraźniejszością – klasyczną architekturę z nowoczesnymi rozwiązaniami przestrzennymi.

Fot. Tom Blachford | Arch. MELANIE BEYNON AD

Nowa część domu została zaprojektowana jako nowoczesna stodoła, w której wyodrębniono dwie strefy: prywatną dla dorosłych i bardziej otwartą dla dzieci. Serce domu stanowi centralna strefa dzienna z dużym salonem, umieszczonym w dobudowanej części. Wnętrze wyróżnia się dębowymi panelami z drewna tasmańskiego, skośnym sufitem oraz ścianami z odzyskanej cegły. Architekci zastosowali również ręcznie robione płytki Anchor Ceramic, co dodaje wnętrzu unikalnego charakteru. Dzięki dużym, przesuwnym drzwiom wnętrze jest naturalnie doświetlone i płynnie przechodzi w przestrzeń zewnętrzną.

Fot. Tom Blachford | Arch. MELANIE BEYNON AD

Taras, znajdujący się na podwyższeniu, stanowi przedłużenie przestrzeni dziennej i jest idealny do spędzania czasu z rodziną na świeżym powietrzu. Z zewnątrz bryła nowej przybudówki prezentuje się surowo, ale elegancko – ściany pokryto gontem cedrowym i panelami, które z czasem nabiorą szlachetnego, srebrzystego koloru. Ostra linia dachu, charakterystyczna dla formy, jaką przybiera nowoczesna stodoła, tworzy silną sylwetkę, a naturalne materiały harmonijnie wpisują się w otoczenie. Northcote Residence to przykład przemyślanej architektury rodzinnej, która łączy funkcjonalność z estetyką i trwałością.