Fot. Mario Wibowo | Arch. PSA Studio
  • Architekt

    PSA Studio
  • Fotograf

    Mario Wibowo
  • Lokalizacja

    Dżakarta, Indonezja

Prywatność iświatło

Dom stoi w gęsto zaludnionej okolicy Dżakarty, gdzie wymogi związane z prywatnością i bezpieczeństwem stały się głównym priorytetem dla wielu mieszkańców. Takie założenia przełożyły się na mocno zamkniętą fasadę budynku. Nie stała się ona zbyt masywna dzięki zastosowaniu drewnianych listew. Listwy osłaniające zaprojektowano tak, by mieszkańcy domu widzieli co dzieje się na zewnątrz, blokując jednak widok z zewnątrz do środka. W ten sposób ukryto też różne funkcje pomieszczeń, zachowując prywatność mieszkańców domu, a to wszystko przy celebracji minimalizmu.

Fot. Mario Wibowo | Arch. PSA Studio

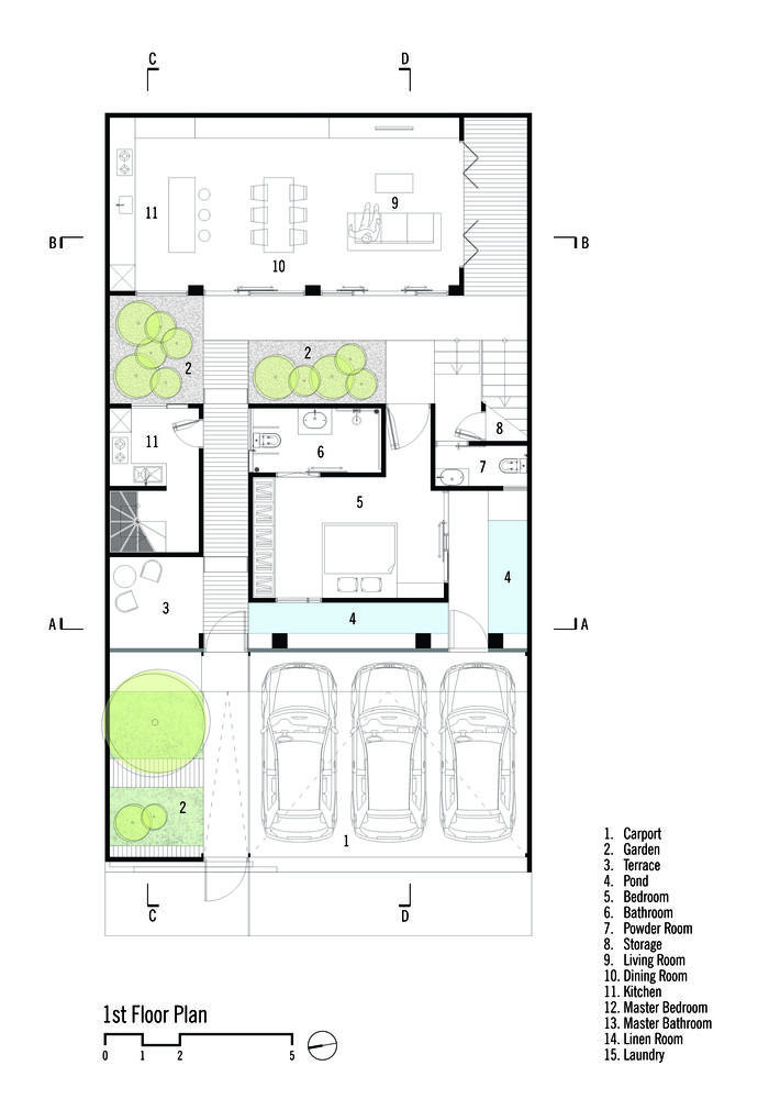
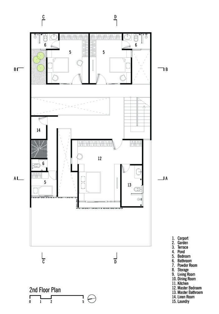
Aspekt bezpieczeństwa był też wzięty pod uwagę podczas projektowania rozkładu domu. Choć większość domów mieszkalnych jest zwykle otwarta na okolicę, dom o nazwie „Rumah Beton” otwiera się od środka. Zamknięta fasada kieruje uwagę na wnętrze, a budynek podzielono na kilka sekcji. Ten podział ma związek z konkretnymi strefami domu, dzięki czemu podziały nie zaburzają przestrzeni. Zastosowane rozwiązania projektowe tworzą ciekawe doświadczenia przestrzenne i nadają wnętrzu poczucie dynamiki. Wprowadzenie tzw. suchych ogrodów pomiędzy poszczególnymi sekcjami sprawia, że mieszkańcy mają poczucie większej otwartości na otoczenie.

Fot. Mario Wibowo | Arch. PSA Studio

Drewniane listwy na fasadzie, podzielone sekcje domu oraz suche ogrody zapewniają dobrą cyrkulację powietrza i wprowadzają do wnętrza więcej naturalnego światła. Odpowiednie połączenie masywności z transparentnością materiałów zwiększa dostęp światła dziennego do zamkniętych przestrzeni.