Fot. Ilya Ivanov | Arch. Le Atelier

Architektura inspirowanachaosem przedmieść

Dom powstał w rosyjskim miasteczku oddalonym około 150 km od Moskwy, gdzie mieszka blisko 30 tysięcy osób, a lokalna zabudowa cechuje się skrajną różnorodnością. Brak planów zagospodarowania i zasad budowlanych sprawia, że na jednej ulicy spotykają się prowizoryczne domy z prostych materiałów oraz masywne, ceglane rezydencje z lat 90. Architektura rozwija się tu spontanicznie, często bez udziału projektantów. W takich realiach przyszło pracować architektom z pracowni Le Atelier, którzy zamiast porządkować przestrzeń, postanowili twórczo wykorzystać lokalny chaos i różnorodność, tworząc dom nawiązujący do otoczenia – nieco jak nowoczesna stodoła w surowym, postsowieckim kontekście.

Fot. Ilya Ivanov | Arch. Le Atelier

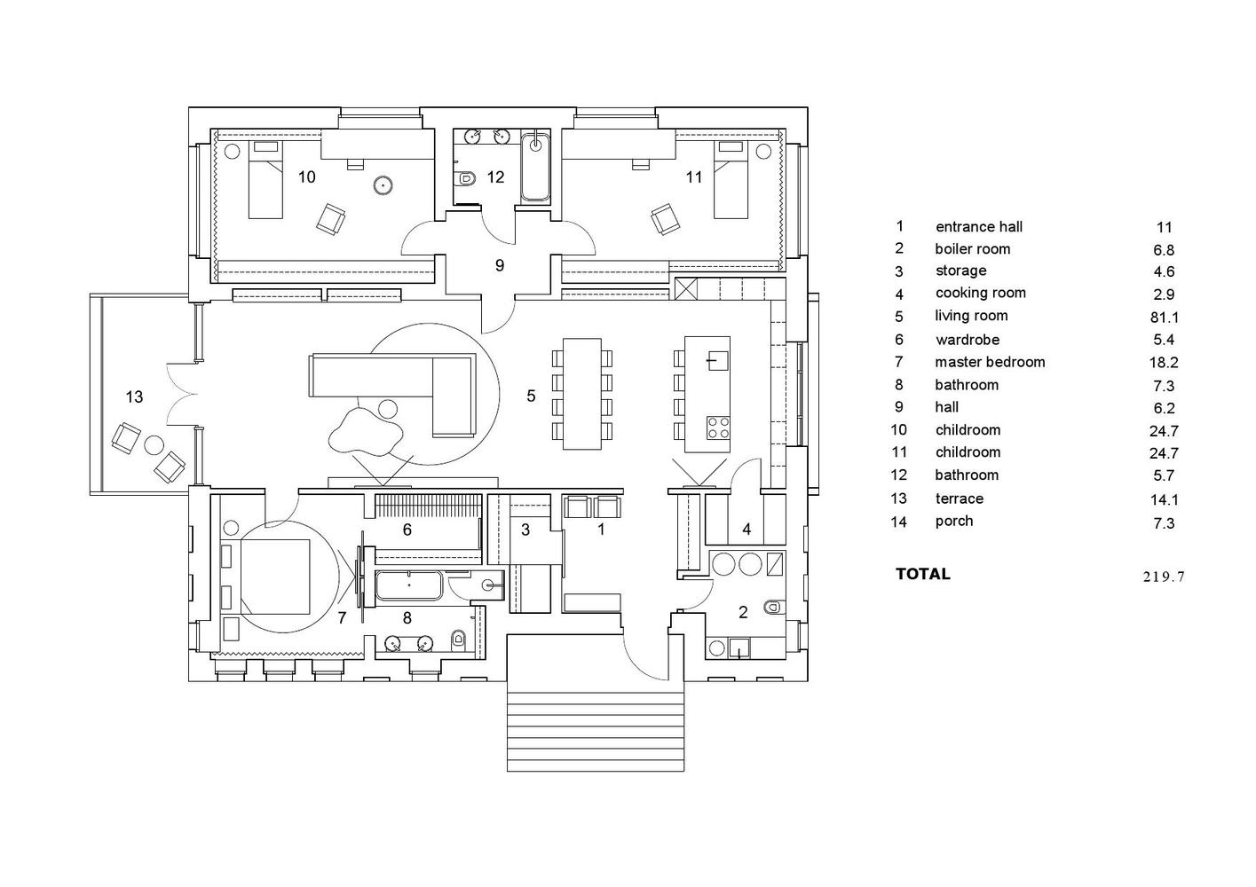
Inwestor wcześniej samodzielnie zbudował prosty, jednopiętrowy budynek z podpiwniczeniem, a dopiero później zaprosił architektów do dalszego projektowania. Le Atelier zaproponowali podział domu na trzy wyraźne części: centralną strefę dzienną z wysokim salonem, część wejściową z sypialnią główną, hallem i pomieszczeniami użytkowymi oraz skrzydło cofnięte w głąb działki, w którym znajdują się pokoje dzieci. Salon o wysokości niemal dwóch kondygnacji stał się sercem domu i przestrzenią o najsilniejszym wyrazie architektonicznym.

Fot. Ilya Ivanov | Arch. Le Atelier

Materiały elewacyjne dobrano tak, aby odzwierciedlały charakter miejsca i lokalne techniki budowlane. Architekci zastosowali dwa rodzaje cegły: OLFRY 1807 antik NF oraz szarą cegłę FELDHAUS K764N. Szara cegła została celowo inaczej ułożona w niszach okiennych, tworząc efekt lekko „zrujnowanej” struktury, nawiązującej do opuszczonych budynków i architektury przemysłowej w okolicy. Dzięki temu dom nie udaje idealnego obiektu, lecz staje się spójną częścią swojego niejednoznacznego, dynamicznego otoczenia.