Fot. Jennie Webb | Arch. MawsonKerr Architects

Wiejski domw stylu stodoły

Shawm House to dom w rustykalnym stylu, który otrzymał wiele nagród i uznany został za niezwykle unikatowy projekt. Stoi on na pięknej, ale odsłoniętej działce w West Woodburn w Wielkiej Brytanii i uchodzi za doskonały przykład wiejskiej architektury mieszkalnej, w którym nie brakuje innowacji. Dom został zaprojektowany dla pary emerytów, Anne i Tony’ego Penderów, i jest efektem współpracy między Danem Kerrem z firmy MawsonKerr Architects i ich synem, Richardem Penderem. Choć początkowo plany były inne, to dom został wybudowany właśnie przez syna właścicieli, który nigdy wcześniej nie angażował się w projekty budowlane na taką skalę.

Fot. Rob Rhodes | Arch. MawsonKerr Architects

Ze względu na miejsce i zabytkowe otoczenie lokalne władze pozwoliły na budowę wyłącznie dlatego, że wykonana praca została uznana za „projekt o wyjątkowo wysokiej jakości”. Dom ma nową, drewnianą konstrukcję, która łączy się z małym, stojącym tu wcześniej kamiennym obejściem. Te elementy są „zakotwiczone” w starym, zabytkowym, kamiennym murze, który działa też jako osłona przed wiatrem i stanowi oś między nowymi zabudowaniami.

Fot. Jennie Webb | Arch. MawsonKerr Architects

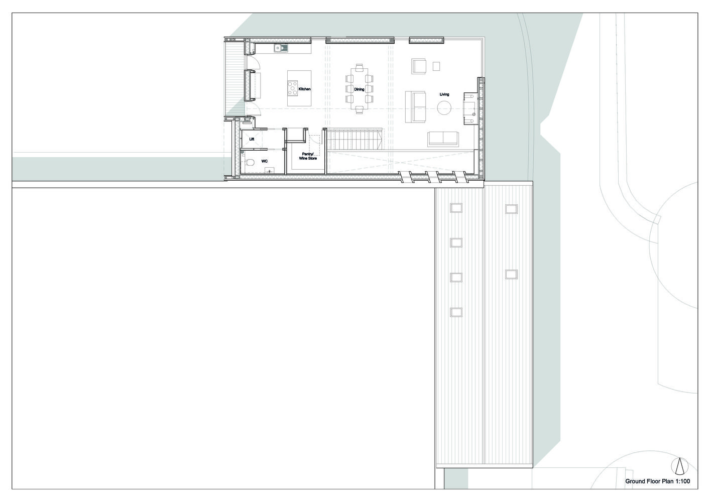
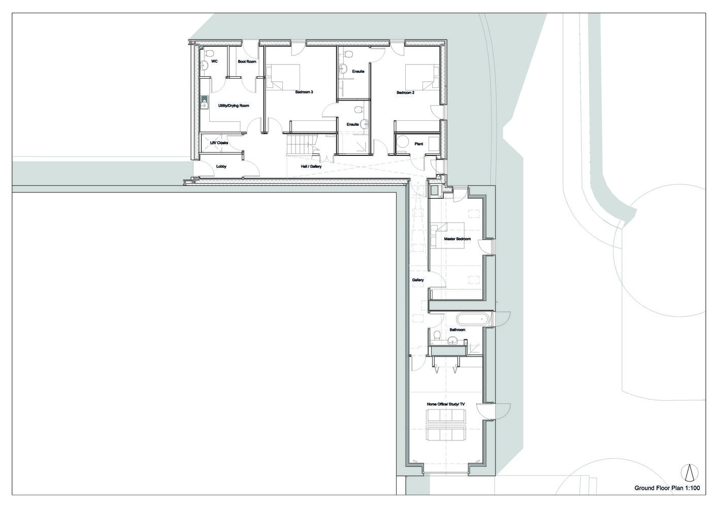
Projekt nawiązuje do prostej formy stodoły i opiera się na lokalnych materiałach. Jego istotną cechą są przeszklenia, które prezentują wybrane widoki wiejskiej okolicy. Dom wydaje się być zawinięty w gruby „koc” z drewna modrzewiowego, ponieważ elewacja przechodzi ze ścian również na dach. Wewnątrz architekt sprytnie wykorzystał światło i kontrast, łącząc ciepłe tekstury drewna z czystymi, białymi ścianami, co w efekcie stworzyło niezwykle ciepłe i przyjemne wnętrze, w którym starsi właściciele mogą spokojnie wypoczywać.

Fot. Jennie Webb | Arch. MawsonKerr Architects

Richard, który pracował na miejscu, stworzył całą drewnianą konstrukcję w starej szopie, która stoi na działce. W całym projekcie wykorzystano materiały pozyskiwane wyłącznie lokalnie. Drewno pochodziło z drzew, które zostały wykarczowane przez wiatr lub złamały się z innych powodów.

Fot. Jennie Webb | Arch. MawsonKerr Architects

Architekt Dan Kerr wprowadził do projektu zasady domu pasywnego, tzw. Passivhaus. Oznacza to, że dom został zaprojektowany zgodnie z najwyższymi standardami związanymi z wydajnością energetyczną. Całość ma doskonałą izolację, wszystkie przeszklenia mają trzy szyby, a konstrukcja jest niezwykle szczelna. Dom ma też system odzyskiwania ciepła i odpowiednią wentylację oraz panele słoneczne i kocioł na biomasę. Ogromną uwagę zwrócono na wszystkie łączenia, by uniknąć powstania jakichkolwiek szczelin i mostków cieplnych. Dom ma też system odzyskiwania wody deszczowej.

Fot. Jennie Webb | Arch. MawsonKerr Architects

Choć początkowo pojawiały się liczne obawy co do pracy nad projektem syna właścicieli, który wcześniej nigdy nie angażował się w tak skomplikowane projekty, pomysł ten okazał się być jedną z przyczyn sukcesu. Pozwoliło to na bliską współpracę na każdym etapie projektanta i wykonawcy, a relacje układały się tak profesjonalnie, że duet zaczyna już pracę nad kolejnym zleceniem.