Arch. Mathieu Noël
  • Architekt

    Mathieu Noël
  • Lokalizacja

    Francja

Dom wiejski w sercu natury– funkcjonalność i komfort

W 2009 roku Simon skontaktował się z architektem Mathieu Noëlem, aby podzielić się swoim projektem budowlanym, rozpoczynając wyjątkową przygodę w tworzeniu komfortowego domu wsiowego. Jako nauczyciel i bibliofil, wrażliwy na estetykę i piękno przedmiotów, Simon chciał, aby jego dom był funkcjonalny, wygodny i pozwalał wyeksponować książki, obrazy oraz pamiątki z podróży. Projekt zakładał dużą przestrzeń i prostotę użytkowania – nowoczesna stodoła idealnie odpowiadała tym potrzebom, łącząc tradycyjną formę z nowoczesnym, łatwym w utrzymaniu wnętrzem.

Arch. Mathieu Noël

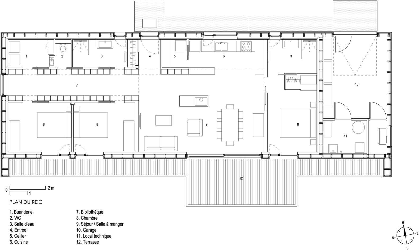
Dom zlokalizowano w malowniczym wiejskim otoczeniu, tuż przy pastwisku z widokiem na sad i kościół w tle. Nowoczesna stodoła została zaprojektowana z myślą o naturalnym świetle i efektywnej organizacji przestrzeni – południowa fasada ze szklanym tarasem umożliwia maksymalne nasłonecznienie zimą, a taras osłonięty nawisem dachu powiększa przestrzeń użytkową. Podział budynku obejmuje trzy strefy: część mieszkalną i pokoje od południa oraz łazienkę, WC i strefę techniczną od północy. Długi regał na książki pełni funkcję zarówno dekoracyjną, jak i organizacyjną, integrując wszystkie strefy domu w spójną całość.

Arch. Mathieu Noël

Wnętrze domu harmonijnie łączy prostotę z funkcjonalnością. Salon, jadalnia i kuchnia tworzą przestrzeń centralną, w której piec na drewno zapewnia komfort cieplny w sezonie zimowym, uzupełniony przez ogrzewanie podłogowe z pompą ciepła. Nowoczesna stodoła zachowuje spójność stylistyczną zarówno wewnątrz, jak i na zewnątrz, oferując przestrzeń wyciszoną, prostą i przyjazną mieszkańcom. Dzięki przemyślanej organizacji i zastosowaniu naturalnych materiałów, dom jest miejscem relaksu i codziennego komfortu, idealnie wpisując się w otoczenie wsi.