Fot. João Morgado | Arch. FAT - Future Architecture Thinking

Wyjątkowy hotel w Portugaliiw harmonii z otoczeniem

Sobreiras – Alentejo Country Hotel to wyjątkowy obiekt zlokalizowany na działce o powierzchni 25 hektarów w Serra de Grândola w Portugalii. Położony na wysokości 200 m n.p.m., hotel otoczony jest dębami, drzewkami oliwnymi oraz endogeniczną roślinnością. Łagodne wzgórza i otwarty krajobraz oferują widoki aż po odległy horyzont. Znajdując się zaledwie godzinę drogi od Lizbony, hotel łączy kontekst wiejskiego otoczenia z nowoczesnym podejściem do projektowania, przypominając nowoczesną stodołę, która celebruje naturę i regionalną kulturę. Projekt został stworzony przez architekta Miguela Correię i jego zespół FAT (Future Architecture Thinking).

Fot. João Morgado | Arch. FAT - Future Architecture Thinking

Głównym celem projektu było zachowanie i wzmocnienie fizycznych oraz morfologicznych cech tego miejsca. Architekci inspirowali się bogactwem krajobrazów Alentejo, tworząc przestrzenie, które harmonijnie współgrają z otoczeniem. Hotel przypomina nowoczesną stodołę, gdzie prostota, elegancja i kontakt z naturą zapewniają komfort oraz ciszę w unikalnym, nowoczesnym wnętrzu.

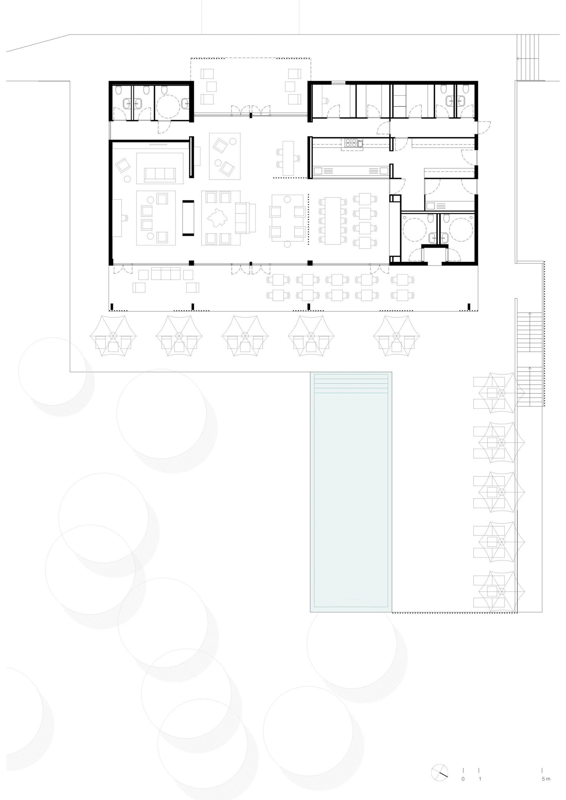
Hotel składa się z ośmiu modułów, osadzonych na podniesionej konstrukcji, co minimalizuje wpływ fundamentów na środowisko. Największy moduł mieści wejście główne, recepcję oraz strefy publiczne, podczas gdy pozostałe obejmują pomieszczenia techniczne i 22 pokoje oraz 2 apartamenty. Każdy pokój zaprojektowano tak, aby zapewnić prywatność i komfort, umożliwiając gościom pełne korzystanie z uroków okolicy. Budynki nawiązują do tradycyjnych domów Alentejo, ale z nowoczesnym akcentem typowym dla koncepcji nowoczesnej stodoły. Zewnętrzne drewniane słupy współgrają z krajobrazem, kontrastując z geometryczną prostotą białych ścian. Okna i drzwi tarasowe skierowane są na wschód, co chroni wnętrza przed nadmiernym nasłonecznieniem od zachodu.

Fot. João Morgado | Arch. FAT - Future Architecture Thinking

Projekt kładzie duży nacisk na zrównoważony rozwój. Budynki wyposażono w zaawansowane systemy izolacji termicznej i dźwiękowej oraz naturalny system wentylacji, który poprawia komfort termiczny. Dodatkowo zastosowano panele słoneczne do podgrzewania wody i systemy zbierania deszczówki, wykorzystywanej do nawadniania. Aby ograniczyć zużycie wody, wszystkie krany i prysznice wyposażono w reduktory przepływu, a ogólnodostępne krany mają czasomierze. Tereny zielone zaprojektowano z minimalnym zapotrzebowaniem na nawadnianie, pozostawiając znaczną część obszaru w jego naturalnym stanie, przypominającym „montado” – sezonowe górskie łąki charakterystyczne dla Alentejo.

Fot. João Morgado | Arch. FAT - Future Architecture Thinking

Elementy zewnętrzne budynków wykonano z naturalnych materiałów, takich jak drewno i żwir, które integrują się z otaczającym krajobrazem. Ścieżki prowadzące do pokoi ilustrują zmienność krajobrazu, podkreślając sezonowy charakter Alentejo.

Sobreiras – Alentejo Country Hotel to miejsce, które łączy regionalną tradycję z nowoczesnym designem. Nowoczesna stodoła, jaką tworzy ten projekt, celebruje naturę, kulturę i harmonię z otoczeniem, oferując gościom wyjątkowe doświadczenie wypoczynku i relaksu w sercu Alentejo.