Fot. Markus Linderoth | Arch. Johan Sundberg Arkitektur

Dom z drewnianą elewacją wsercu skandynawskiej przyrody

Sommarhus Sandby to wyjątkowa posiadłość, położona w malowniczym sosnowym lesie w pobliżu piaszczystej plaży, która stanowi idealne miejsce wypoczynku i relaksu. Otoczenie lasu zapewnia spokój, chroni przed wiatrami skandynawskich pól, a także oferuje naturalny cień w gorące dni letnie. Z kolei morze, wciąż obecne w tle, dodaje swojego niepowtarzalnego charakteru – zmieniająca się „partytura” fal jest jak naturalna melodia, która towarzyszy mieszkańcom w każdym momencie dnia. Szeroka, biała plaża zaprasza do rekreacji, kąpieli słonecznych i spacerów.

Fot. Markus Linderoth | Arch. Johan Sundberg Arkitektur

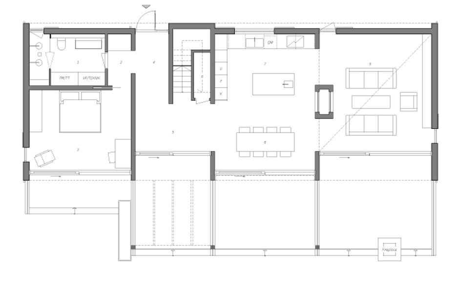
Dom o powierzchni 167 m² został zaprojektowany z myślą o rodzinie z dwójką dzieci, stanowiąc przestrzeń na lato, w której każdy znajdzie swoje miejsce. Dwupoziomowy układ zapewnia komfort i funkcjonalność. Na górnym poziomie znajdują się dwa pokoje dziecięce, które mogą zostać łatwo przekształcone w trzy, oraz wspólna przestrzeń i łazienka. Wszystkie pomieszczenia posiadają świetliki, które wprowadzają do wnętrza naturalne światło, a duże przeszklenia umożliwiają podziwianie otaczającej przyrody. Na parterze zlokalizowane są główna sypialnia, przestronna kuchnia z jadalnią, a także salon, który można otworzyć na drewniany taras i ogród za pomocą dużych przesuwnych drzwi. Dom łączy w sobie komfort nowoczesnego życia z estetyką zgodną z naturą i tradycją.

Fot. Markus Linderoth | Arch. Johan Sundberg Arkitektur

Elewacje domu zostały wykończone panelem stojącym o niestandardowym profilu, który – podobnie jak drewniany taras i pergola – wykonany jest z modrzewia syberyjskiego. Drewno zostało zabezpieczone uszczelniaczem na bazie silikonu, co zwiększa jego trwałość, odporność na warunki atmosferyczne i zmiany temperatury. Z kolei dach domu pokryty jest panelem zakładkowym, również z modrzewia syberyjskiego, z zastosowaniem uszczelniacza silikonowego.

Fot. Markus Linderoth | Arch. Johan Sundberg Arkitektur

Z zewnątrz, Sommarhus Sandby nawiązuje do tradycyjnych, wiejskich domów skandynawskich, ale jego forma i detale podkreślają nowoczesne podejście do architektury. Drewniane elewacje i dach nadają mu charakterystyczną „stodołową” estetykę, jednocześnie łącząc ją z nowoczesnymi rozwiązaniami projektowymi. Ten współczesny dom z elementami tradycji skandynawskiej nie tylko wpisuje się w naturalne otoczenie, ale także zapewnia komfort i funkcjonalność, które odpowiadają na współczesne potrzeby użytkowników.