Fot. Dianna Snape | Arch. Myers Ellyett Architects

Dom z dziedzińcemidealny dla rodziny

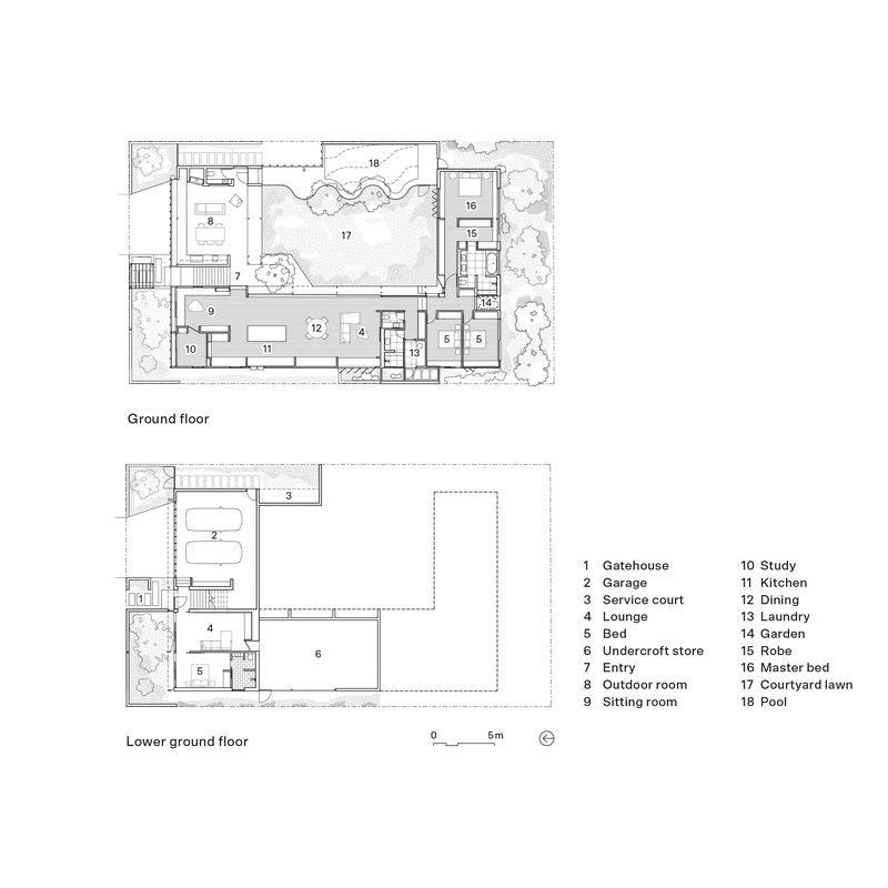
W sercu Paddington – zielonego przedmieścia Brisbane – zabytkowy dom z 1911 roku przeszedł wyjątkową metamorfozę. Architekci Myers Ellyett przekształcili drewnianą chatę w nowoczesną stodołę z dziedzińcem, która łączy tradycję z nowoczesnością, odpowiadając na potrzeby współczesnej rodziny i subtropikalny klimat.

Fot. Dianna Snape | Arch. Myers Ellyett Architects

Oryginalne elementy – drewniane deski VJ i stiukowa elewacja – zostały odrestaurowane, a nowy układ wnętrza wyznacza wyraźny podział na część dzienną i sypialnianą. Dodano dwa nowoczesne pawilony, tworząc dom w kształcie litery U, skoncentrowany wokół zielonego dziedzińca – centrum życia rodzinnego i naturalnej wentylacji.

Fot. Dianna Snape | Arch. Myers Ellyett Architects

Dzięki adaptacji pochyłego terenu (nachylenie 1:8), parterowy układ zyskał dodatkową przestrzeń – garaż i pokój gościnny wkomponowano w niższy poziom, co sprzyja życiu wielopokoleniowemu. Współpraca z architektem krajobrazu pozwoliła zintegrować dom z otoczeniem: każda sypialnia i łazienka wychodzi na prywatny ogród. Evelyn to nowoczesny, klimatyczny dom z duszą, który daje schronienie, sprzyja relacjom i otwiera się na naturę.