Arch. Golub Architects

Geometryczny dom jednorodzinnyz panoramicznymi widokami

Strut House to wyjątkowy dom jednorodzinny o powierzchni 297 m², zaprojektowany przez Golub Architects dla młodej, kreatywnej rodziny mieszkającej kilka kilometrów od Kijowa. Budynek powstał na prostokątnej działce o powierzchni 1500 m², usytuowanej na wzgórzu z widokami na dwie doliny, gdzie można obserwować zarówno wschody, jak i zachody słońca. Architektura domu opiera się na świadomej grze geometrią – parter zaprojektowano zgodnie z ortogonalnym układem działki, natomiast piętro zostało obrócone o 45 stopni, co pozwoliło maksymalnie otworzyć wnętrza na krajobraz i nadało bryle dynamiczny, rzeźbiarski charakter, kojarzący się z estetyką, jaką reprezentuje nowoczesna stodoła.

Arch. Golub Architects

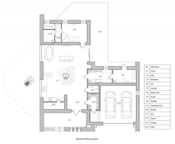
Strefa zewnętrzna została zaplanowana jako integralna część projektu domu. Przestrzeń przed wejściem pełni funkcję podjazdu i boiska do koszykówki, a od strony ogrodu powstało patio o powierzchni 38 m², połączone z trawnikiem, strefą grillową, placem zabaw i sadem. Wnętrze parteru tworzy otwarta przestrzeń dzienna typu studio o powierzchni ponad 69 m², doświetlona oknami dachowymi od strony południowo-wschodniej. Zastosowane szklane panele pozwalają regulować barwę światła dziennego, a centralnie usytuowany kominek Piazzetta, zintegrowany z kolumną i klatką schodową, organizuje całą przestrzeń. Na tym poziomie zaprojektowano także sypialnię gościnną, garderobę, pralnię, pomieszczenia techniczne, spiżarnię oraz garaż na dwa samochody.

Arch. Golub Architects

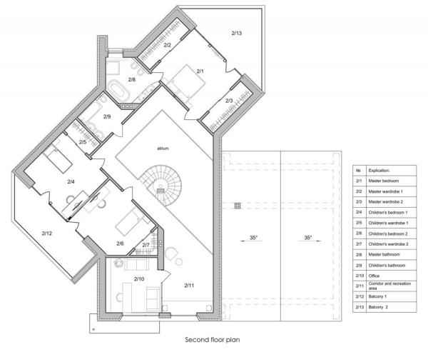
Piętro pełni funkcję strefy prywatnej i zostało zaplanowane z myślą o codziennym komforcie mieszkańców oraz pracy zdalnej. Znajduje się tu sypialnia główna z panoramicznym widokiem na ogród, dwie sypialnie dzieci, garderoby i dwie łazienki, a także domowe biuro ze strefą relaksu i dużymi przeszkleniami. Konstrukcja domu opiera się na żelbecie, cegle i betonie komórkowym na parterze oraz stalowych kolumnach na piętrze, co pozwoliło uniknąć wewnętrznych ścian nośnych i zachować maksymalną elastyczność układu. Mimo złożonych rozwiązań technicznych, Strut House oferuje poczucie swobody, bliskości natury i wyjątkowy komfort życia w nowoczesnym domu z widokiem na krajobraz.