Fot. Nick Guttridge | Arch. Nash Baker Architects

Renowacja 400-letniej jakobińskiejfarmy w Suffolk

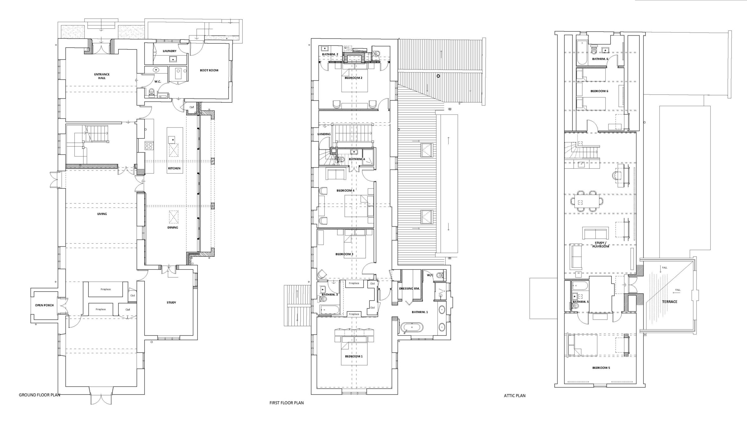
Po trzech latach mieszkania w 400-letniej jakobińskiej farmie w Suffolk, współdyrektor Nash Baker Architects i jego partnerka postanowili rozpocząć renowację zabytkowego domu. Dopiero wtedy, po spędzeniu czasu na dokładnym poznaniu struktury budynku, poczuli, że mają pełną wiedzę o jego potrzebach. Długi okres adaptacji okazał się bardzo wartościowy – pozwolił na naprawę wiktoriańskich budynków gospodarczych oraz wprowadzenie innowacyjnych rozwiązań konserwatorskich w głównym gospodarstwie.

Fot. Nick Guttridge | Arch. Nash Baker Architects

Podczas otwierania budynku odkryto poważne problemy z drewnem – dwie trzecie 400-letnich płyt ściennych zostały zniszczone przez czas, a belki stropowe uległy poważnej mokrej zgniliźnie. Dodatkowo okazało się, że puste przestrzenie pod podłogą były wypełnione ziemią, co wymagało wprowadzenia szerokiego programu napraw konstrukcyjnych. W miarę postępu prac zyskano głębsze zrozumienie struktury budynku, co doprowadziło do zmian w projekcie architektonicznym i układzie parteru.

Fot. Nick Guttridge | Arch. Nash Baker Architects

W ramach renowacji postanowiono zachować pralnię, kotłownię, zaplecze i inne pomieszczenia w pierwotnych lokalizacjach, zamiast przenosić je do starej kuchni. Takie rozwiązanie pozwoliło na uproszczenie projektu nowej kuchni z jadalnią, która stała się nowoczesną trzynawową przestrzenią przypominającą tradycyjną oranżerię. Nowoczesne rozwiązania obejmowały także dużą przeszkloną ścianę, która łączyła przestrzeń wewnętrzną z ogrodem.

Fot. Nick Guttridge | Arch. Nash Baker Architects

Podłogi zostały zaprojektowane zgodnie z hierarchią materiałów – w budynku gospodarczym oraz na werandzie zastosowano naturalny kamień, natomiast w nowej kuchni z jadalnią wybrano ciemny wapień z osadzonymi skamielinami. W pozostałych częściach domu, zarówno na parterze, jak i piętrze, zastosowano szerokie dębowe deski podłogowe, które podkreślają naturalny charakter nowoczesnej stodoły.

Fot. Nick Guttridge | Arch. Nash Baker Architects

Badania ujawniły rozległe uszkodzenia oryginalnych płyt ściennych, a także konieczność gruntownej naprawy stolarki i konstrukcji dachu. W ramach remontu dachu usunięto profilowane dachówki betonowe i zastąpiono je tradycyjną dachówką z regeneratu. Proces napraw trwał kilka miesięcy, ale przywrócono zabytkową stolarkę oraz usunięto nowoczesne ścianki działowe i podwieszane sufity, co pozwoliło na odtworzenie przestronności i czytelności architektonicznej pierwotnego apartamentu na poddaszu.