Fot. Aistė Rakauskaitė | Arch. LUNAARCH

Dom podążającyza słońcem

Sun Path House to projekt domu, który pozwala mieszkańcom żyć w naturalnym rytmie słońca. Zlokalizowany w malowniczej, zabytkowej miejscowości Kiernów na Wileńszczyźnie na Litwie, dom harmonijnie wpisuje się w otaczającą przyrodę. Kiernów, wpisany na listę Światowego Dziedzictwa UNESCO, to region pełen historii, starych lasów i pagórkowatych terenów, które przyciągają osoby szukające wytchnienia od miejskiego zgiełku. Działka, na której powstał ten nowoczesny dom, graniczy z prawym brzegiem rzeki i zwrócona jest ku majestatycznemu sosnowemu lasowi. Architekci z pracowni LUNAARCH stanęli przed wyzwaniem stworzenia idealnej przestrzeni wypoczynkowej dla czteroosobowej rodziny, która planuje tu spędzać weekendy i wakacje. Ich celem było połączenie nowoczesnej architektury z historycznym krajobrazem.

Fot. Aistė Rakauskaitė | Arch. LUNAARCH

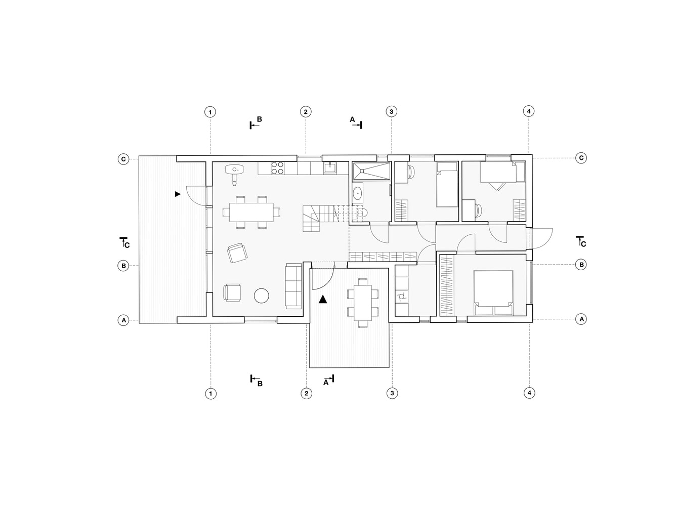
Z uwagi na ścisłe regulacje budowlane, projekt musiał spełniać określone wymagania dotyczące konstrukcji, wysokości oraz kąta nachylenia dachu. Jednak kluczowym aspektem było harmonijne wkomponowanie budynku w naturalne otoczenie. Architekci szczegółowo przeanalizowali ścieżkę słońca, by maksymalnie wykorzystać światło dzienne i stworzyć optymalne warunki do życia. Dom o powierzchni 145 m² usytuowano na szczycie wzgórza, co pozwoliło otworzyć wnętrze na panoramiczne widoki lasu. Cała działka została funkcjonalnie podzielona na strefy. Od strony zachodniej powstała przestrzeń rekreacyjna, natomiast od wschodu zlokalizowano prywatną szklarnię oraz ogród warzywny, wpisujące się w ideę ekologicznego życia.

Fot. Aistė Rakauskaitė | Arch. LUNAARCH

Duże przeszklenia sprawiają, że granica między wnętrzem a otoczeniem niemal zanika. Dom otwiera się na krajobraz poprzez trzy tarasy, które umożliwiają mieszkańcom podążanie za słońcem przez cały dzień. Poranna kawa na wschodnim tarasie, relaks w południowym słońcu i wieczorny odpoczynek na zachodnim tarasie z widokiem na las – to naturalny rytm życia w tym wyjątkowym miejscu. Główny taras od strony zachodniej prowadzi do naturalnego basenu kąpielowego, który dodatkowo podkreśla związek domu z przyrodą.

Fot. Aistė Rakauskaitė | Arch. LUNAARCH

W projekcie nie ma zbędnych elementów – zarówno w architekturze, jak i wyposażeniu. Każdy detal wnętrza podporządkowany jest funkcjonalności i prostocie, co wpisuje się w filozofię nowoczesnej stodoły. Dzięki temu przestrzeń domu harmonijnie współgra z otaczającą go przyrodą, a wnętrze może być wypełnione ciepłem domowego życia i radością dziecięcych zabaw.