Fot. David Lauer | Arch. Renée del Gaudio Architecture

Ekologiczny domodporny na pożary

Sunshine Canyon House zaprojektowano dla czteroosobowej rodziny. Stoi na stromym, górskim zboczu skalistego kanionu w amerykańskim stanie Kolorado.

Fot. David Lauer | Arch. Renée del Gaudio Architecture

nowoczesna stodoła otoczona jest gęstym lasem, w którym rosną sosny i jodły. W 2010 roku doszło tu jednak do pożaru, podczas którego spaliły się nie tylko stuletnie drzewa, ale też stojąca w tym miejscu chata. Kiedy opadł popiół, na działce pozostały tylko granitowe kamienie i strome zbocze. Działka po pożarze przypominała bezleśne krajobrazy okolic Boulder, które upamiętniono na zdjęciach sprzed około stu lat. Te właśnie czasy oraz tradycje rolnicze tego regionu stały się inspiracją dla nowego projektu.

Fot. David Lauer | Arch. Renée del Gaudio Architecture

Nowy budynek ma dwuspadowy dach, a rustykalne materiały nawiązują do dawnych tradycji w architekturze. Sam projekt jednak nawiązuje nowe relacje z otoczeniem. Dopasowano go do swej lokalizacji i kontekstu.

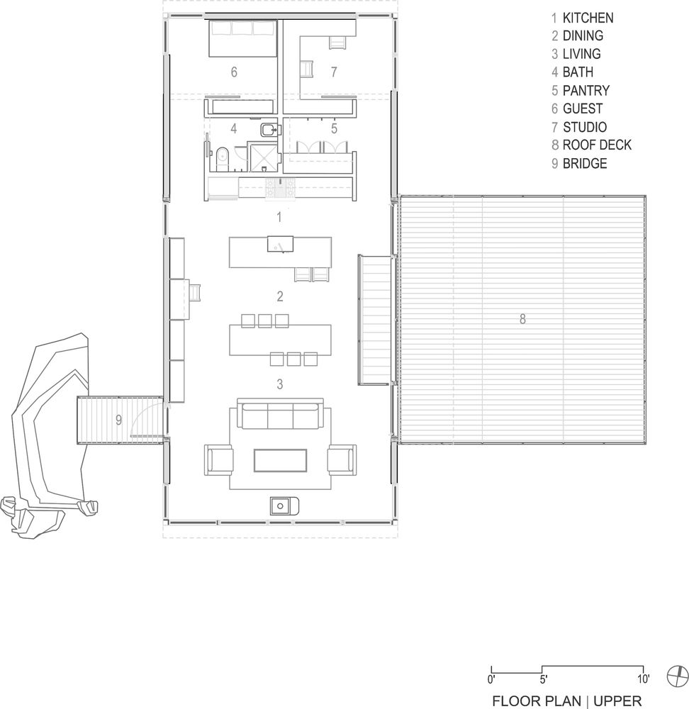
Stopniowana forma domu stanowi przeciwwagę dla nierównego terenu. Duże granitowe głazy wyznaczają zarysy drogi. Konstrukcja domu częściowo wsunięto w zbocze. Dwa duże elementy budynku – jeden z przestrzenią dzienną, a drugi z sypialniami – ułożono na sobie i zrotowano tak, by miały optymalny dopływ promieni słonecznych i zapewniały różne widoki z każdego pomieszczenia. Pod wysuniętymi formami powstaje zacieniona, osłonięta przestrzeń. Odsłonięte belki, pokryte rdzą stalowe blachy oraz drzwi nawiązują wizualnie do wiejskich korzeni tego regionu. Choć w praktyce chodziło przede wszystkim o stworzenie ognioodpornej konstrukcji, która nie będzie wymagała dodatkowej konserwacji.

Fot. David Lauer | Arch. Renée del Gaudio Architecture

Wszystkie urządzenia domowe oraz systemy oświetleniowe wykorzystano tak, by zużywać minimalną ilość prądu. Dzięki temu miesięczny rachunek za prąd wynosi zaledwie 9 $. Doskonała izolacja, okna z trzema szybami oraz przesuwne drzwi sprawiają, że w lecie wewnątrz jest chłodno, a w zimie ciepło. Budynek ogrzewany jest podłogowo oraz z wykorzystaniem pieca na drewno o wysokiej wydajności. Lekka, otwarta organizacja wnętrza oraz duża ilość przeszkleń sprawiają, że pomieszczenia są jasne i wypełnione światłem dziennym, a lekki wiatr jest w stanie naturalnie wentylować wszystkie pomieszczenia.