Arch. Radek Hadrbolec

Kamień i drewnow harmonii z krajobrazem wiejskim

Na obrzeżach wsi, pośród malowniczego krajobrazu Wysoczyny, w otoczeniu pól, lasów, stawu i wzgórz, powstał dom, który idealnie wpisuje się w lokalny kontekst. Bryła budynku nawiązuje do tradycyjnej stodoły, a jego dwuspadowy dach stanowi sprawdzone rozwiązanie dla tego regionu. Dom został usytuowany wzdłuż północno-wschodniej granicy działki, dzięki czemu ogród pozostał otwartą, spójną przestrzenią. Z części dziennej, wychodzącej na południe, rozpościera się widok na całą działkę i okoliczny krajobraz, co podkreśla ideę architektury zakorzenionej w naturze, jaką niesie nowoczesna stodoła.

Arch. Radek Hadrbolec

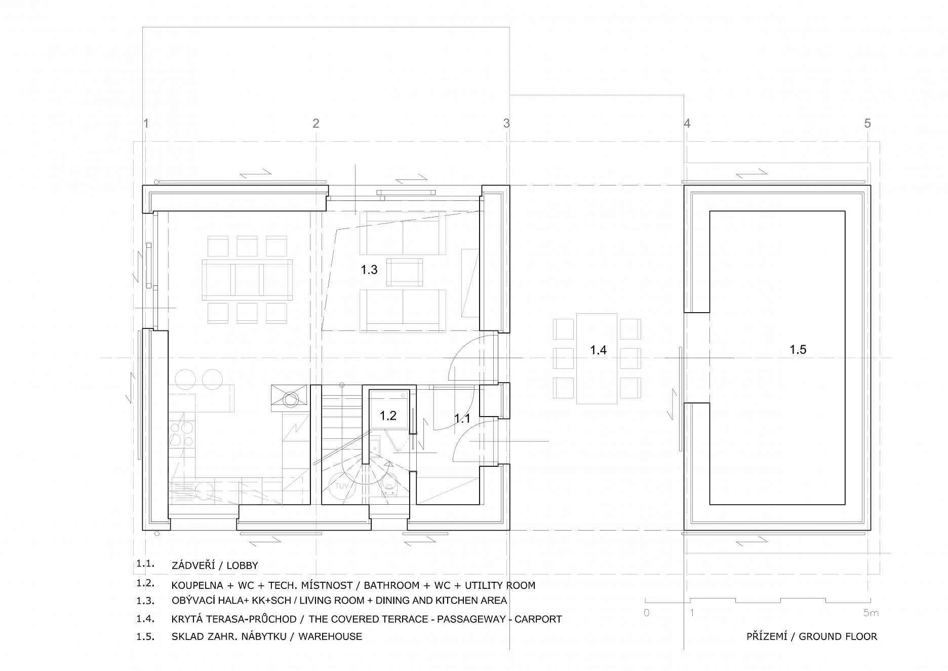
Architekt postawił na lokalne, naturalne materiały – kamień i drewno – które nadają bryle surowy, autentyczny charakter. Kamienie wykorzystane w elewacji zebrano z pobliskich pól, a warstwy konstrukcji oddzielono 40-milimetrową szczeliną powietrzną, poprawiającą izolację. Ważnym elementem projektu jest wiata pełniąca funkcję wejścia, magazynu i wyjścia na taras, którą można zamknąć z obu stron przesuwnymi bramami. Takie rozwiązanie pozwala dostosować przestrzeń do różnych potrzeb użytkowych, jednocześnie ograniczając liczbę otworów w elewacji. Kamienny, zadaszony taras akumuluje ciepło w ciągu dnia, a wieczorem naturalnie chłodzi – to kolejny dowód na przemyślaną funkcjonalność, jaką wyróżnia nowoczesna stodoła.

Arch. Radek Hadrbolec

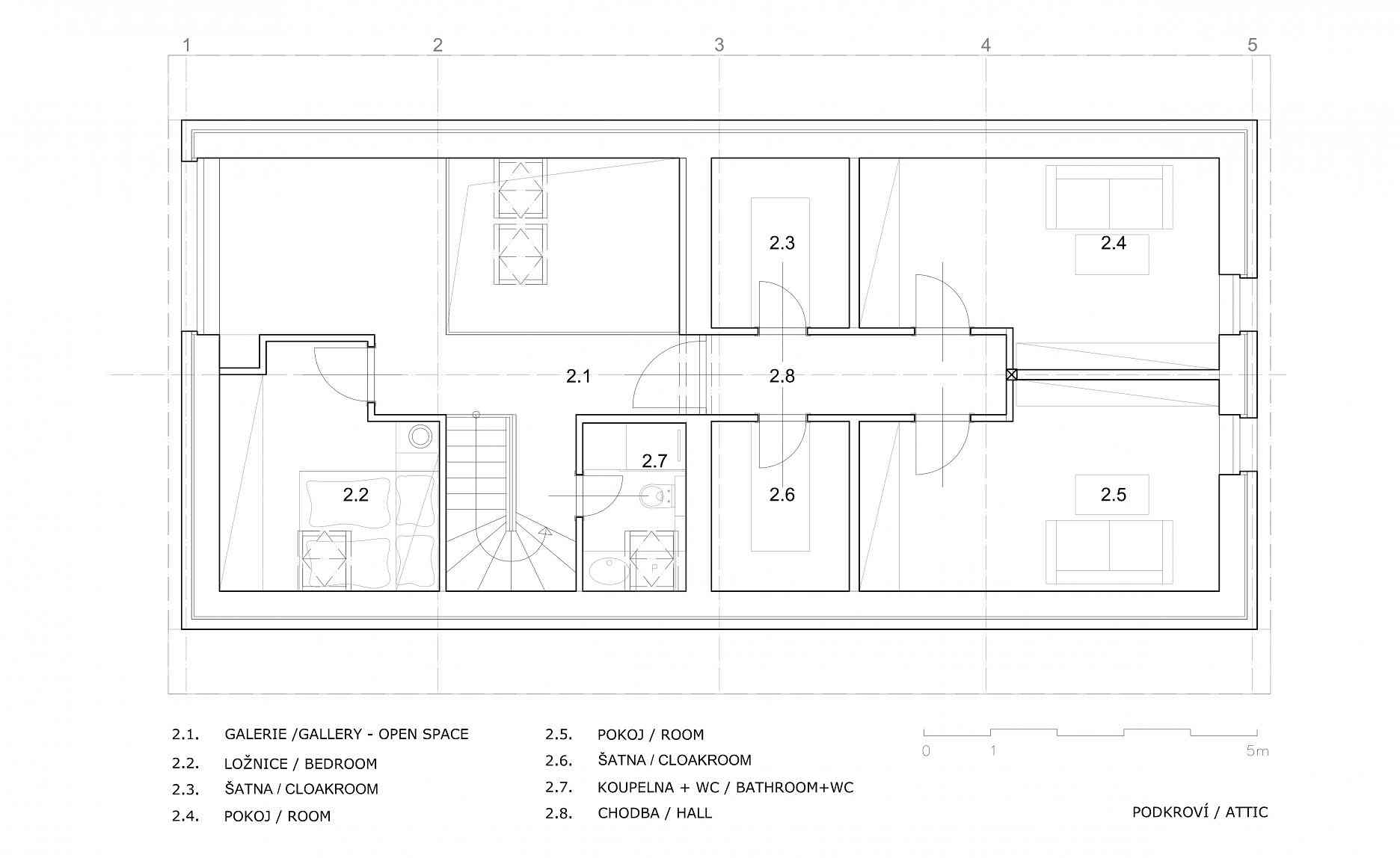
Wnętrze domu emanuje prostotą i naturalnym pięknem. Przeszklone powierzchnie od strony południowej otwierają salon na ogród, wprowadzając do środka mnóstwo światła. Hol otwarty na dwie kondygnacje tworzy poczucie przestronności i łączy parter z poddaszem, gdzie widoczne są drewniane stropy i belki konstrukcyjne. Centralnym punktem wnętrza jest kamienna ściana szczytowa, która nadaje przestrzeni wyrazistości i charakteru. Ten projekt to doskonały przykład, jak nowoczesna stodoła może czerpać z tradycji, zachowując przy tym nowoczesny duch i pełną harmonię z naturą.