Fot. Adolf Bereuter | Arch. Firm Architekten

Oinspiracji

Dom Sutter znajduje się na skraju wioski Au w Bregenzerwald, nad brzegiem rzeki Bregenzerache, u podnóża góry Kanisfluh (2044 m n.p.m.). Przed przebudową przeprowadzoną przez biuro Firm Architekten budynek mieścił pięć apartamentów, z czego cztery były wynajmowane gościom. Po zmianach pozostały tylko dwa, które są teraz wykorzystywane wyłącznie przez właścicieli.

Fot. Adolf Bereuter | Arch. Firm Architekten

Zamknięta fasada, przestronne wnętrze

Architekci radykalnie otworzyli parter, który wcześniej był w solidnej zabudowie. Ze względu na chłodne północne wiatry od strony rzeki i góry, południowo-zachodni taras został częściowo włączony do bryły budynku. Cały parter znajduje się pół kondygnacji wyżej niż otaczający teren, co podkreśla zamknięty, introwertyczny charakter obiektu. Projekt elewacji również przyczynia się do tego efektu: główne pomieszczenia, zwłaszcza salon, otrzymały duże przeszklenia, natomiast okna pomieszczeń pomocniczych zostały osłonięte świerkowymi listwami, które okalają całą bryłę budynku.

Fot. Adolf Bereuter | Arch. Firm Architekten

Otwarta aranżacja wnętrza

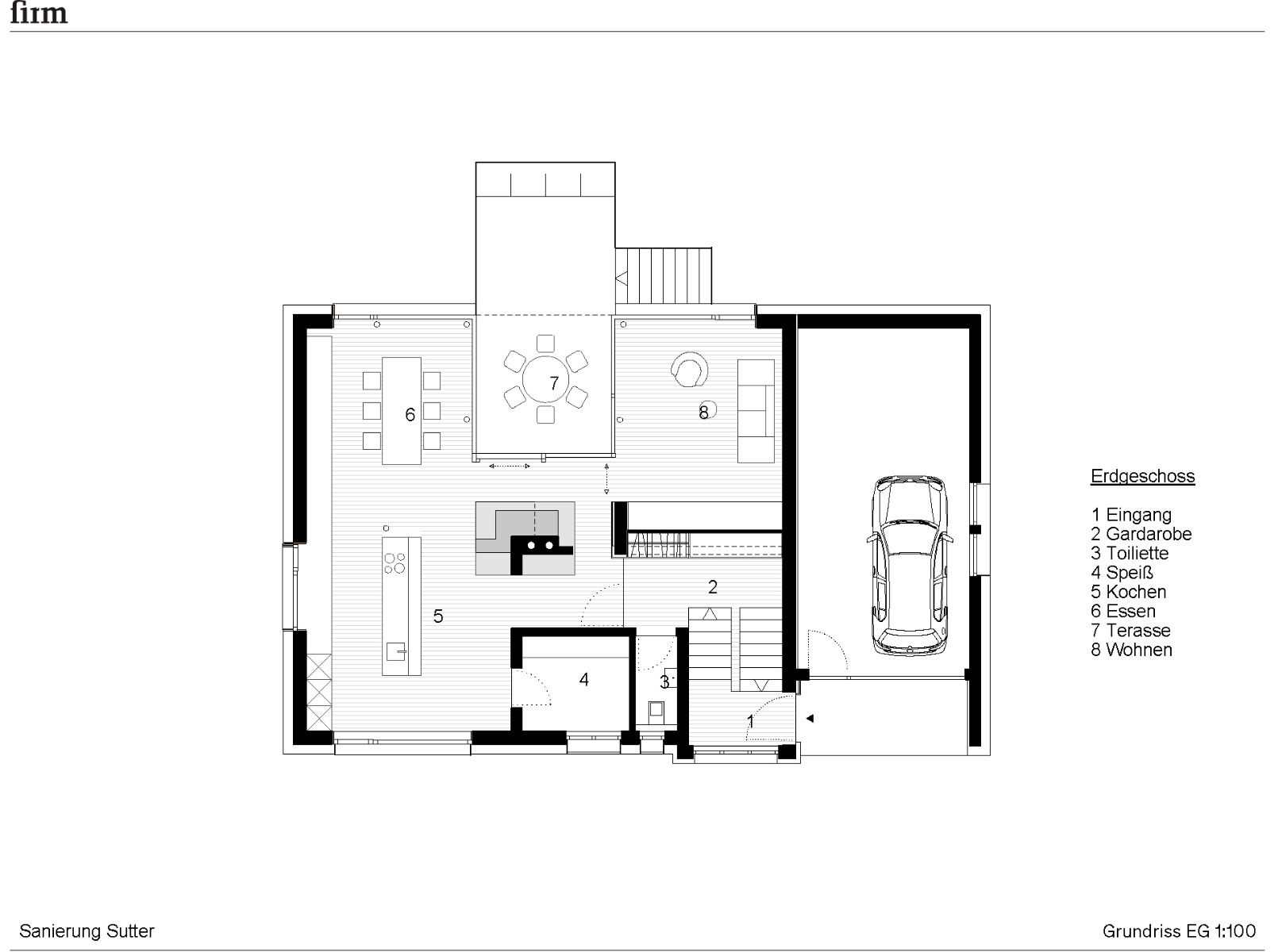
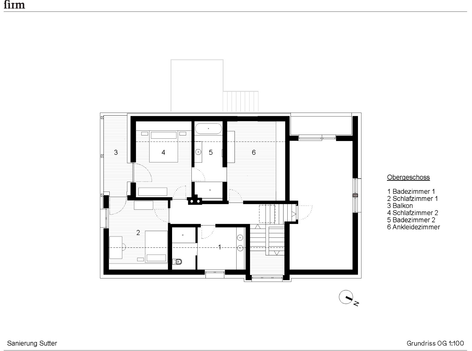
Na parterze kuchnia, jadalnia i salon tworzą otwartą przestrzeń wokół masywnego, kaflowego pieca, który zachowano z oryginalnego budynku. Sypialnie rodzinne i łazienki znajdują się na piętrze, podobnie jak niewielki apartament nad garażem. Wnętrze wykończono podłogami z jesionu, boazerią z jodły oraz lekkim tynkiem wapiennym na istniejących ścianach. Całe wbudowane wyposażenie wykonano z olejowanej jodły.

Fot. Adolf Bereuter | Arch. Firm Architekten

Ponowne wykorzystanie materiałów

Podczas modernizacji fasady zostały zaizolowane, a wszystkie okna wymienione. Dach został dodatkowo ocieplony i pokryty aluminiowymi gontami. Architekci wykorzystali materiały z istniejącego budynku, gdzie tylko było to możliwe. Na przykład drewniana okładzina została odświeżona i ponownie użyta przy konstrukcji suchej podłogi. Brak stosowania mokrego jastrychu skrócił również czas budowy.