Fot. ÅKE E:SON LINDMAN | Arch. Dive Architects

Relaksw harmonii z naturą

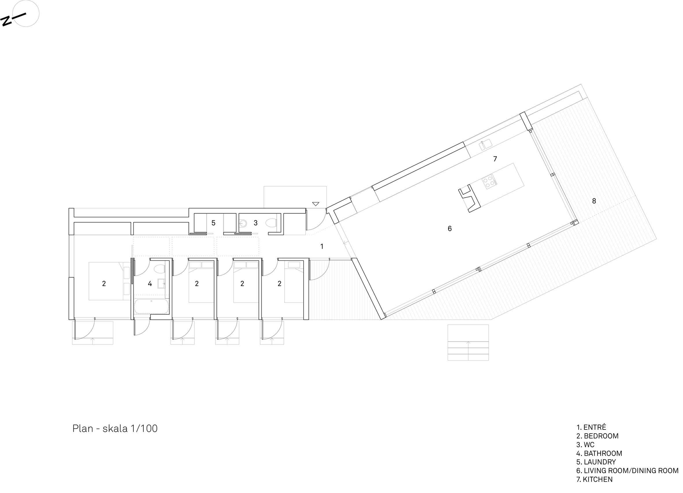
Ten wyjątkowy dom nad jeziorem, zaprojektowany przez Dive Architects, znajduje się na działce opadającej w stronę wód północnej Szwecji, w otoczeniu lasów sosnowych i brzozowych. Budynek został podzielony na dwie strefy – dzienną i sypialną – co umożliwia optymalne wykorzystanie naturalnego światła oraz pięknych widoków zarówno na jezioro, jak i las. Dzięki przemyślanej orientacji domu właściciel może cieszyć się porannym słońcem przy śniadaniu, a wieczorem obserwować zachód słońca z głównej sypialni. Projekt stworzył nowoczesną stodołę, która harmonijnie łączy naturalne materiały z funkcjonalnością przestrzeni.

Fot. ÅKE E:SON LINDMAN | Arch. Dive Architects

Dom został wykonany w całości z drewna sosnowego, z deskami układanymi poziomo w dolnej części i pionowo w kierunku dachu, co nadaje bryle nowoczesny charakter i jednocześnie wpisuje ją w leśne otoczenie. Część dzienna została w dużym stopniu przeszklona od wschodu i zachodu, co pozwala cieszyć się światłem dziennym oraz widokami. Salon, jadalnia i kuchnia tworzą otwartą przestrzeń, w której centralnym punktem jest ceglany kominek, zapewniający przytulność w chłodne wieczory. Kuchnia posiada okno wychodzące na wschodni las, dzięki czemu poranne promienie słońca doświetlają blat i centralną wyspę kuchenną.

Fot. ÅKE E:SON LINDMAN | Arch. Dive Architects

Do nieco podwyższonej części sypialnej prowadzą kilka stopni i świetlikami doświetlony korytarz, który łączy trzy pokoje gościnne oraz główną sypialnię z dużym oknem wychodzącym na zachód. Pokoje gościnne mają wąskie okna na pełną wysokość, co pozwala w pełni podziwiać jezioro i las. Projekt Dive Architects tworzy nowoczesną stodołę, która jest nieskomplikowana, relaksująca i w pełni zintegrowana z przyrodą, zapewniając komfortowy wypoczynek i harmonijną przestrzeń dla mieszkańców.