Fot. Katherine Lu | Arch. Michiru Higginbotham

Współczesny dom whistorycznych murach kościoła

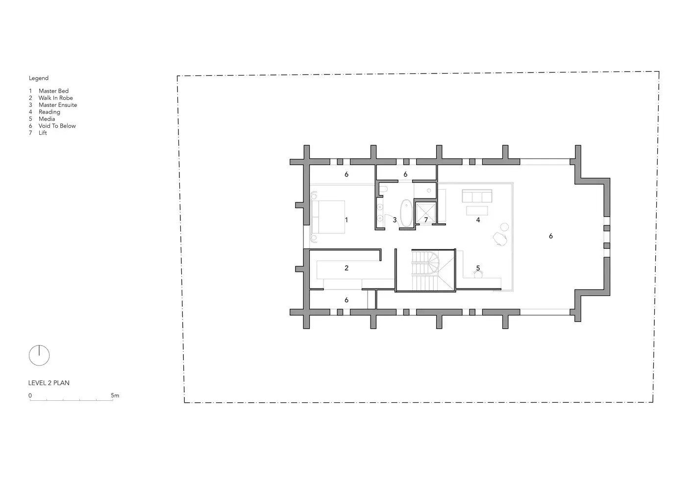
Dawny Kościół poddano renowacji i przekształcono w trzypoziomowy współczesny budynek, który płynnie łączy nowoczesny styl życia z historycznym urokiem jego fasady. Zachowując integralność pierwotnego budynku, Kościół z powodzeniem zachował swoją historyczną fasadę, wprowadzając jednocześnie nowoczesną estetykę do wnętrza. Architektoniczna interwencja delikatnie balansuje pomiędzy tradycją a współczesnym designem, stosując przemyślaną reinterpretację poprzez geometrię, dobór materiałów i oświetlenie.

Fot. Katherine Lu | Arch. Michiru Higginbotham

Trzymając się istniejącej bryły, Kościół zapewnia przestronne wnętrze o imponującej kubaturze. Umiejętnie skontrastowano elementy tradycyjne i współczesne, tchnąc nowe życie w konstrukcję, jednocześnie honorując jej historyczne korzenie. Minimalne przegrody, pływające antresole i zmodyfikowane przeszklenia przyczyniają się do jasnej i przestronnej atmosfery w niegdyś ciemnym budynku. Wprowadzenie w nowym przeszkleniu rozległych, przeszklonych łuków odzwierciedla format i skalę istniejących okien, tworząc malownicze widoki na ogród, port i niebo.

Fot. Katherine Lu | Arch. Michiru Higginbotham

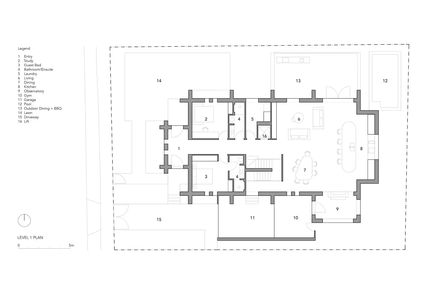
Sercem nowego mieszkania Kościoła jest kuchnia, strategicznie rozmieszczona tak, aby przyciągała uwagę, podobnie jak ołtarz. Umieszczona centralnie wyspa kuchenna staje się centralnym punktem, podkreślając objętość przestrzeni dzięki dużej wysokości i spójnym materiałom.