Arch. Arkitema Architects

Dom o długowiecznościi minimalnej emisji CO₂

Projekt „The Maintenance-Free House” to przykład, jak nowoczesna stodoła może odpowiadać na współczesne wyzwania związane z trwałością, ekologią i niską emisją CO₂. Budynek jest częścią eksperymentalnego programu mieszkaniowego „The MiniCO2 Houses”, realizowanego w nadmorskim mieście Nyborg w Danii. Inicjatywa zakłada budowę sześciu wolnostojących domów jednorodzinnych, z których każdy analizuje inny aspekt ograniczania śladu węglowego – od materiałów, przez proces budowy, po długoterminowe użytkowanie.

Arch. Arkitema Architects

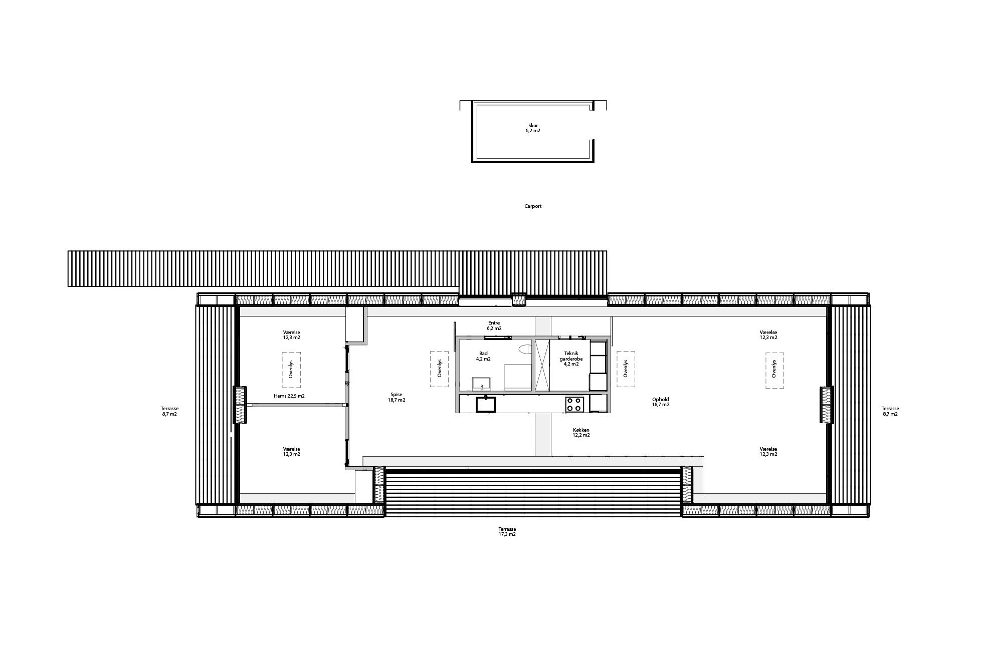
Maintenance-Free House B, będący jednym z kluczowych elementów projektu, został zaprojektowany jako wydłużony dom z dwuspadowym dachem nachylonym pod kątem 40 stopni i centralnie umieszczonym, zadaszonym wejściem od wschodu. Budynek mieści się w przedziale 130–172 m² i spełnia duńskie normy energetyczne z 2015 roku, zachowując jednocześnie przeciętny budżet i uniwersalny charakter architektury. Forma domu nawiązuje do archetypu wiejskiej zabudowy, który dziś często określany jest jako nowoczesna stodoła, ale w wyjątkowo dopracowanej, długowiecznej wersji.

Arch. Arkitema Architects

Wnętrze zaprojektowano jako jedno, linearne „drewniane pudełko” z widocznymi belkami, niską zabudową meblową i intensywnym dostępem światła dziennego. Cztery świetliki dachowe, wysokie przeszklenia, drzwi w ścianach szczytowych oraz ponad 10-metrowa tafla szkła zapewniają jasność i silny kontakt z otoczeniem. Dom wzniesiono głównie z drewna – materiału doskonale znanego duńskim rzemieślnikom – a całą konstrukcję zaprojektowano z myślą o ciągłej wentylacji. Dodatkowo budynek uniesiono około 30 cm nad gruntem, co chroni go przed wilgocią i sprawia, że dom może funkcjonować nawet przez 150 lat bez kosztownych prac konserwacyjnych.