Fot. Anthony Coleman | Arch. Waind Gohil & Potter Architects

Przekształcenie XIX-wiecznej stodoływ zrównoważony dom

The Old BARN to imponująca transformacja XIX-wiecznej stodoły położonej w zielonym krajobrazie hrabstwa Oxfordshire. Ten dawny budynek rolniczy, niegdyś część gospodarstwa wspomnianego w Domesday Book, dziś funkcjonuje jako energooszczędny dom rodzinny i przestrzeń biurowa, łącząc historię z nowoczesnością.

Celem inwestora było stworzenie zrównoważonego domu zgodnego z poziomem 5 Kodeksu Zrównoważonych Domów, przy jednoczesnym zachowaniu dziedzictwa architektonicznego budynku. Realizacja projektu napotkała ograniczenia planistyczne, jednak dzięki kreatywnemu podejściu architektów z WG+P udało się zrealizować ambitną wizję.

Fot. Anthony Coleman | Arch. Waind Gohil & Potter Architects

Główna interwencja to krzyżowa rozbudowa – lekka, nowoczesna struktura nawiązująca formą do nowoczesnej stodoły, która kontrastuje z oryginalną ceglaną bryłą. To połączenie surowych materiałów i nowoczesnych powierzchni tworzy dynamiczną, pełną światła przestrzeń o katedralnym charakterze.

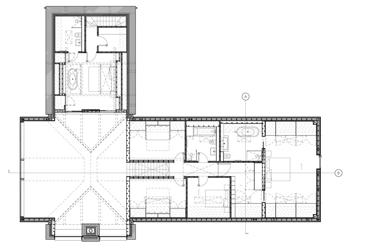
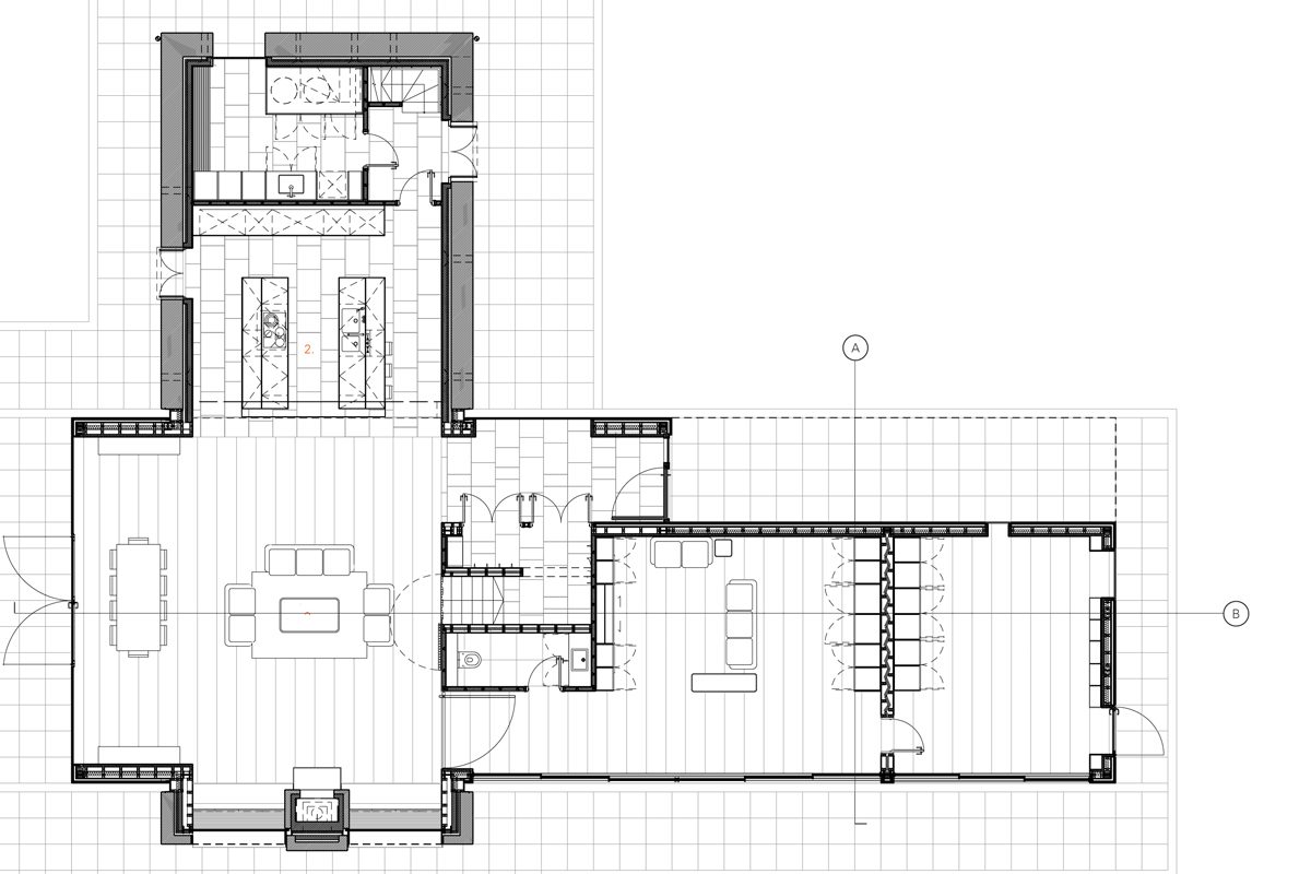
W sercu budynku znajduje się podwójnej wysokości przestrzeń dzienna z panoramicznym widokiem na ogród i pobliskie jezioro. Nowe skrzydło mieści prywatne sypialnie i część dzienną, podczas gdy oryginalna część stodoły została zaadaptowana na strefę gościnną. Punkt styku starego z nowym podkreślono poprzez użycie wapienia oolitu, zarówno wewnątrz, jak i na zewnątrz.

Fot. Anthony Coleman | Arch. Waind Gohil & Potter Architects

Architektura krajobrazu odzwierciedla równowagę pomiędzy porządkiem a naturą. Gęste nasadzenia dzikich kwiatów otaczają trzy geometryczne ogrody i minimalistyczny basen wykończony drewnem i kamieniem. Współczesna estetyka fasady ogrodowej – z dużymi przeszkleniami – kontrastuje z bardziej stonowanym podejściem od strony wejścia, gdzie nowa zabudowa wtapia się w istniejącą bryłę.

Projekt powstał w ścisłej współpracy z sąsiednią farmą i uwzględnia kontekst rolniczy, biznesowy i rekreacyjny całego kompleksu. The Old BARN udowadnia, że ograniczenia planistyczne mogą – przy odpowiednim podejściu – stać się fundamentem wyjątkowych rozwiązań architektonicznych.