Fot. David Barbour | Arch. Rural Design

Dom z widokiemna Hybrydy

Tinhouse to wyjątkowa nowoczesna stodoła, zaprojektowana przez pracownię Rural Design, położona na północno-zachodnim krańcu szkockiej wyspy Skye. Usytuowana na stromym zboczu z panoramicznym widokiem na wody cieśniny oddzielającej Hybrydy Zewnętrzne i Wewnętrzne, stanowi idealne połączenie współczesnej architektury, funkcjonalności oraz bliskości natury.

Fot. David Barbour | Arch. Rural Design

Projekt domu Tinhouse, podobnie jak siostrzany projekt Wooden House tego samego studia, wyróżnia się minimalizmem, prostotą formy oraz lokalnym kontekstem kulturowym. Podczas gdy Wooden House koncentruje się na drewnie, Tinhouse to architektoniczna pochwała dla blachy falistej, materiału powszechnie wykorzystywanego w wiejskich zabudowaniach Szkocji. W tym projekcie blacha falista pokrywa zarówno dach, jak i ściany zewnętrzne, nadając bryle surowego, lecz eleganckiego charakteru.

Fot. David Barbour | Arch. Rural Design

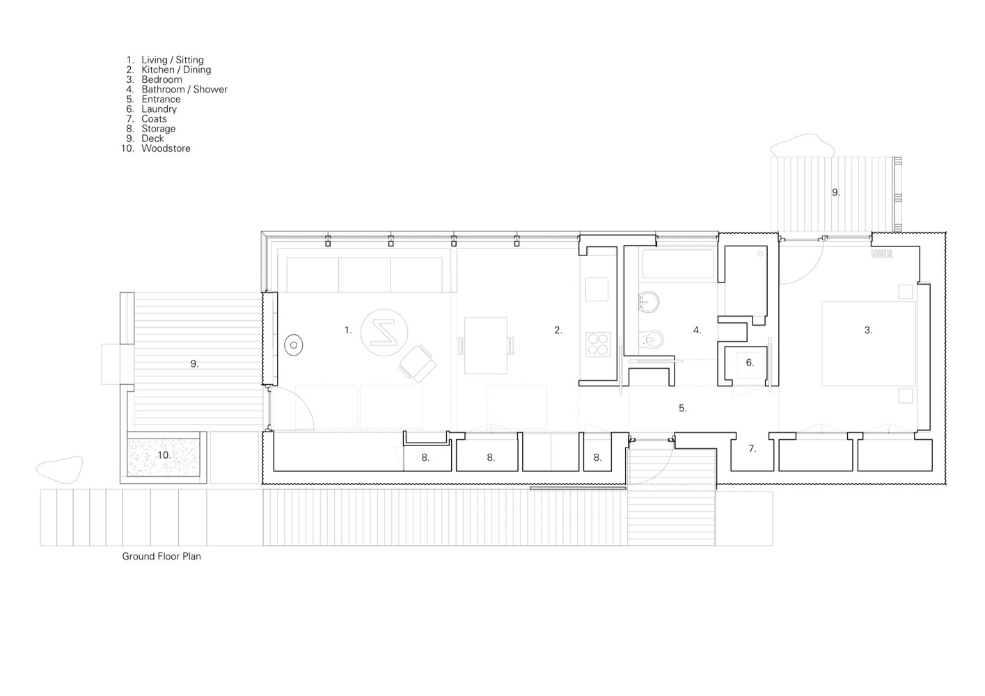
Wnętrze kontrastuje z zewnętrzną powłoką – dominują tu naturalne materiały: drewno, beton oraz sklejka, z której wykonano ręcznie robione meble. Jasne, białe wnętrze, wzbogacone kolorami inspirowanymi szkockim krajobrazem – odcieniami zieleni, błękitu, różu, żółci i pomarańczu – nadaje przestrzeni nowoczesny, ale rustykalny charakter. Bryła domu przypomina tradycyjną wiejską szopę, co celowo nawiązuje do lokalnej architektury i prostoty form znanych z dziecięcych rysunków. W minimalistycznym wnętrzu mieszczą się: sypialnia, salon, kuchnia oraz łazienka. Charakterystyczny długi, poziomy otwór w elewacji północnej pełni funkcję panoramicznego okna, umożliwiając podziwianie malowniczych widoków przy każdej pogodzie.

Fot. David Barbour | Arch. Rural Design

Co ciekawe, Tinhouse został zbudowany ręcznie przez małżeństwo architektów – Gill Smith i Alana Dicksona, założycieli Rural Design. Wszystkie materiały dobrano tak, by umożliwić prowadzenie budowy przez jedną osobę, a prace wymagające dodatkowej pomocy były okazją do spotkań towarzyskich. Takie podejście przełożyło się na wyjątkowy, handmade charakter domu, widoczny w detalach, meblach i wykończeniu.

Fot. David Barbour | Arch. Rural Design

Tinhouse to coś więcej niż dom – to ikona współczesnej, zrównoważonej architektury i idealny przykład, jak nowoczesna stodoła może harmonijnie współistnieć z naturą, łącząc w sobie estetykę, funkcjonalność oraz lokalne tradycje budowlane.