Fot. Small House Bliss

Nowe życierybackich szop

Hvide Sande, małe miasteczko na zachodnim wybrzeżu Jutlandii, znane jest jako piąty co do wielkości port rybacki w Danii. Nabrzeże miasta wypełnione jest rzędami rybackich szop, niegdyś używanych do przechowywania sprzętu. Jednak zmieniające się realia rybołówstwa sprawiają, że wiele z tych budynków traci swoją pierwotną funkcję. Część z nich została zastąpiona malowniczymi domkami letniskowymi, inspirowanymi wyglądem dawnych szop rybackich.

Fot. Small House Bliss

Nowe domki zachowują tradycyjne elementy architektoniczne, takie jak dwuspadowe dachy i drewniane elewacje z pionowo ułożonych desek. Szklane drzwi wyjściowe zabezpieczają dodatkowe drewniane drzwi na zawiasach, co nadaje im rustykalny charakter.

Fot. Small House Bliss

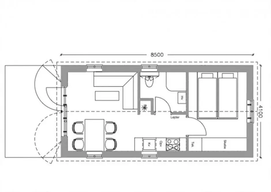
Wnętrza domków są przytulne i funkcjonalne, jak w przypadku pokazanego na zdjęciach domku o powierzchni 34,9 metrów kwadratowych. Wchodząc do środka, trafiamy do przestrzeni salonu połączonego z jadalnią, gdzie wysoko osadzony sufit potęguje wrażenie przestronności. Pomimo niewielkich rozmiarów, wnętrze jest wygodne dla pięciu do sześciu osób. Znajdują się tam również kuchnia i łazienka, sprytnie zorganizowane, by maksymalnie wykorzystać dostępne miejsce. Przesuwne drzwi prowadzą do sypialni na końcu domku, a nad nią, na strychu, ulokowano dodatkowe miejsce do spania. Ściany wykończono naturalnymi deskami sosnowymi i białymi akcentami, a drewniane podłogi podkreślają ciepło i przytulność wnętrza.