Fot. Andrew Storey | Arch. Citizen Design

Harmonia naturyi nowoczesności

Kupując malowniczą działkę o powierzchni 7 hektarów w Maple Valley, w stanie Waszyngton, właściciele marzyli o stworzeniu domu, który idealnie odzwierciedla ich styl życia oraz potrzeby rodziny. Z tej wizji narodził się projekt Trailblazer, który zaskakuje swoją wyjątkową architekturą łączącą nowoczesny design z naturalnym krajobrazem.

Fot. Andrew Storey | Arch. Citizen Design

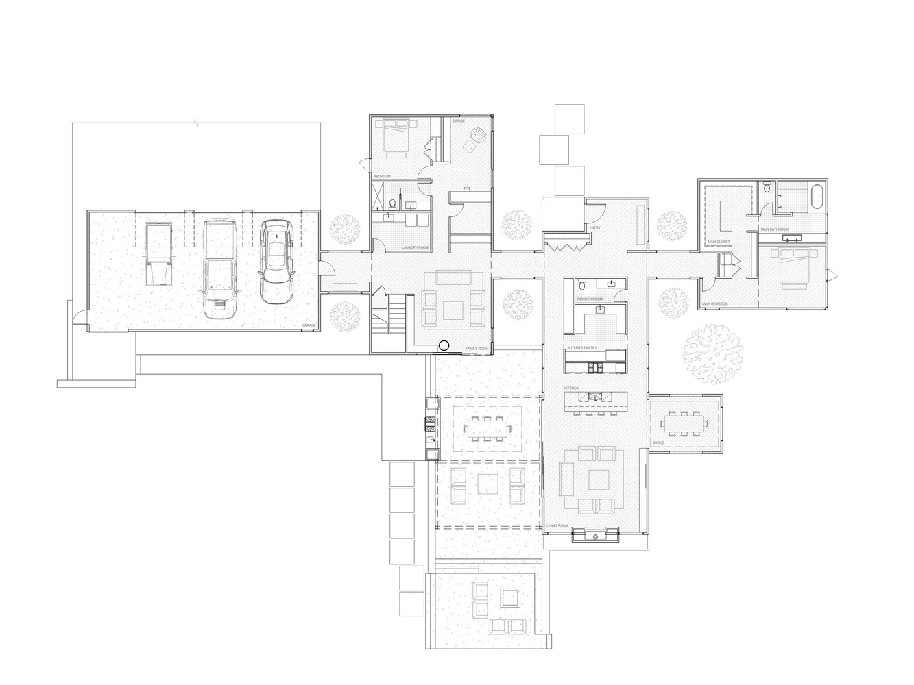
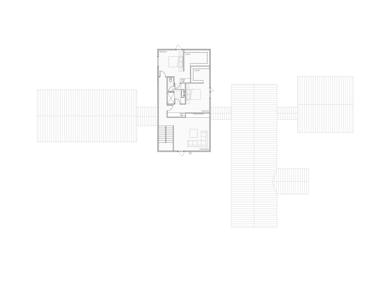
Projekt oparty jest na czterech bryłach dwuspadowych, które pełnią różne funkcje, ale razem tworzą spójną całość. Bryły zostały połączone przestronnymi korytarzami wypełnionymi naturalnym światłem, które zapewniają wizualną integrację z otoczeniem. Przemieszczając się po przestrzeni, domownicy mają wrażenie, jakby odbywali spacer po lesie, ciesząc się bliskością natury i płynnością formy.

Fot. Andrew Storey | Arch. Citizen Design

Główna bryła wejściowa jest sercem domu, przyciągając gości do przestronnej strefy dziennej, składającej się z salonu, jadalni oraz kuchni, otoczonej przez drzewa. Salon otwiera się na zewnętrzną przestrzeń z pergolą, gdzie goście mogą wypoczywać na świeżym powietrzu. Przepływ przestrzeni jest naturalny i otwarty, idealnie wpasowując się w nowoczesną estetykę.

Fot. Andrew Storey | Arch. Citizen Design

Po lewej stronie od wejścia znajduje się główny apartament, który zapewnia prywatność i spokój, a jednocześnie łączy się z otaczającą przyrodą i ścieżkami spacerowymi. Z prawej strony mieści się rodzinne skrzydło, które w szczególności strefuje przestrzeń dla dzieci, zapewniając im przestronne pokoje i miejsce do przyjmowania przyjaciół. Warto również zwrócić uwagę na połączenie tego skrzydła z czwartą bryłą, w której znajduje się garaż oraz warsztat hobbystyczny.

Fot. Andrew Storey | Arch. Citizen Design

Całość zajmuje powierzchnię 420 m² i wyróżnia się na tle innych nowoczesnych domów. Elewacja budynku została pokryta drewna Shou Sugi Ban, czarną blachą falistą oraz betonowymi płytkami – materiałami, które gwarantują trwałość oraz estetykę przez długie lata. Dodatkowo, we wnętrzu zastosowano polerowane betonowe podłogi z ogrzewaniem podłogowym, które zapewniają komfort cieplny i energooszczędność.

Fot. Andrew Storey | Arch. Citizen Design

Projekt Trailblazer to idealny przykład nowoczesnej stodoły, która łączy minimalistyczny design z funkcjonalnością i wykorzystaniem naturalnych materiałów, tworząc miejsce, które jest zarówno praktyczne, jak i estetycznie ponadczasowe.