Fot. Bruce Damonte | Arch. Mork-Ulnes Architects

nowoczesna stodoładla trzech pokoleń

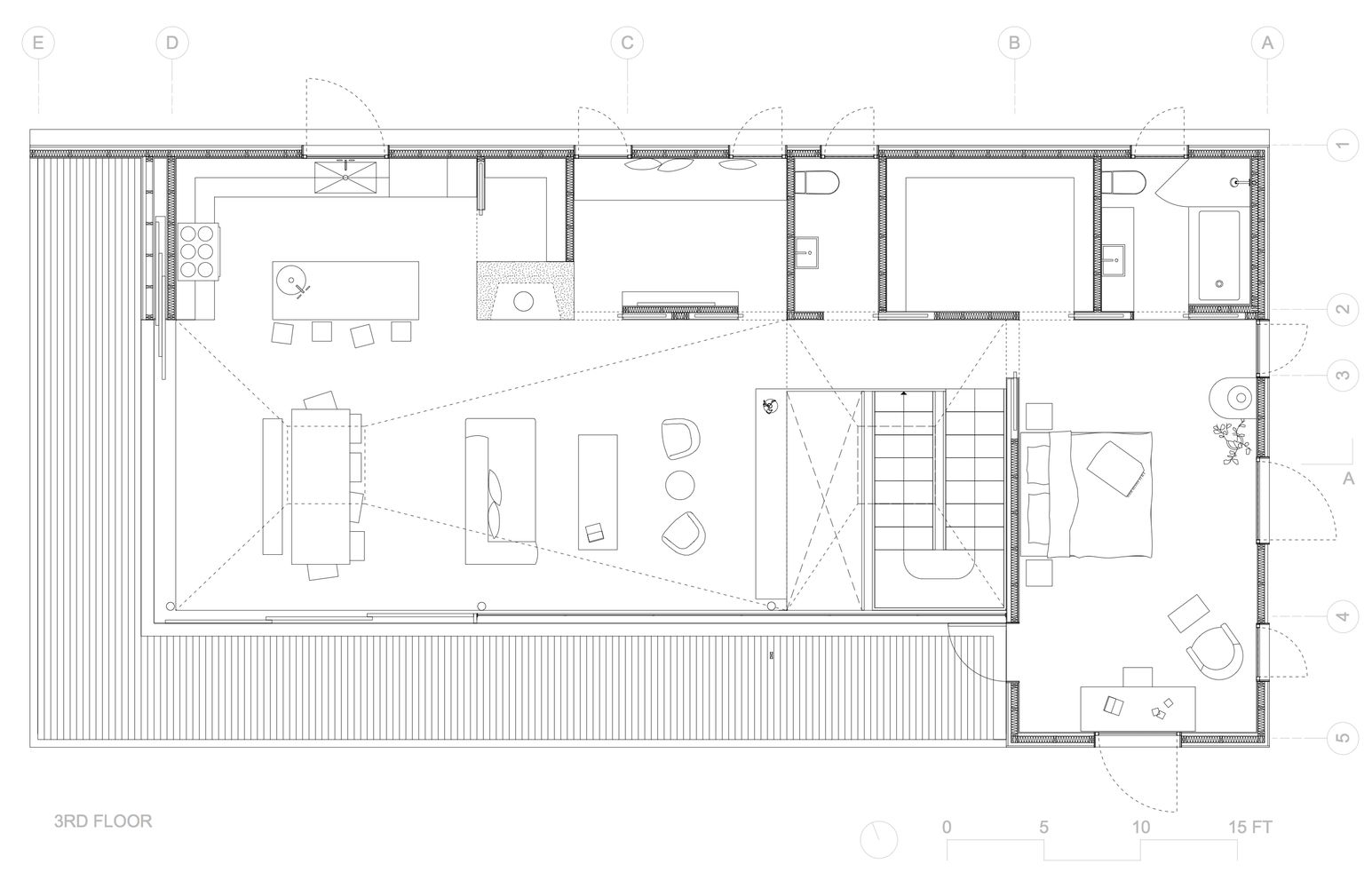
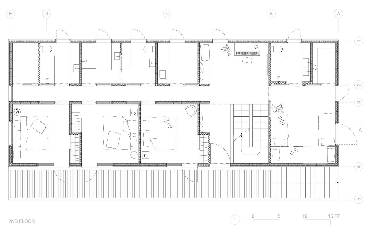
nowoczesna stodoła stoi w wyjątkowym miejscu dla narciarzy – Sugar Bowl Ski Resort, oddalonym od San Franciso zaledwie o 2,5 godziny jazdy. Ta górska chata ma 5 sypialni i została zaprojektowana tak, by mogły z niej jednocześnie korzystać 3 pokolenia jednej rodziny.

Fot. Bruce Damonte | Arch. Mork-Ulnes Architects

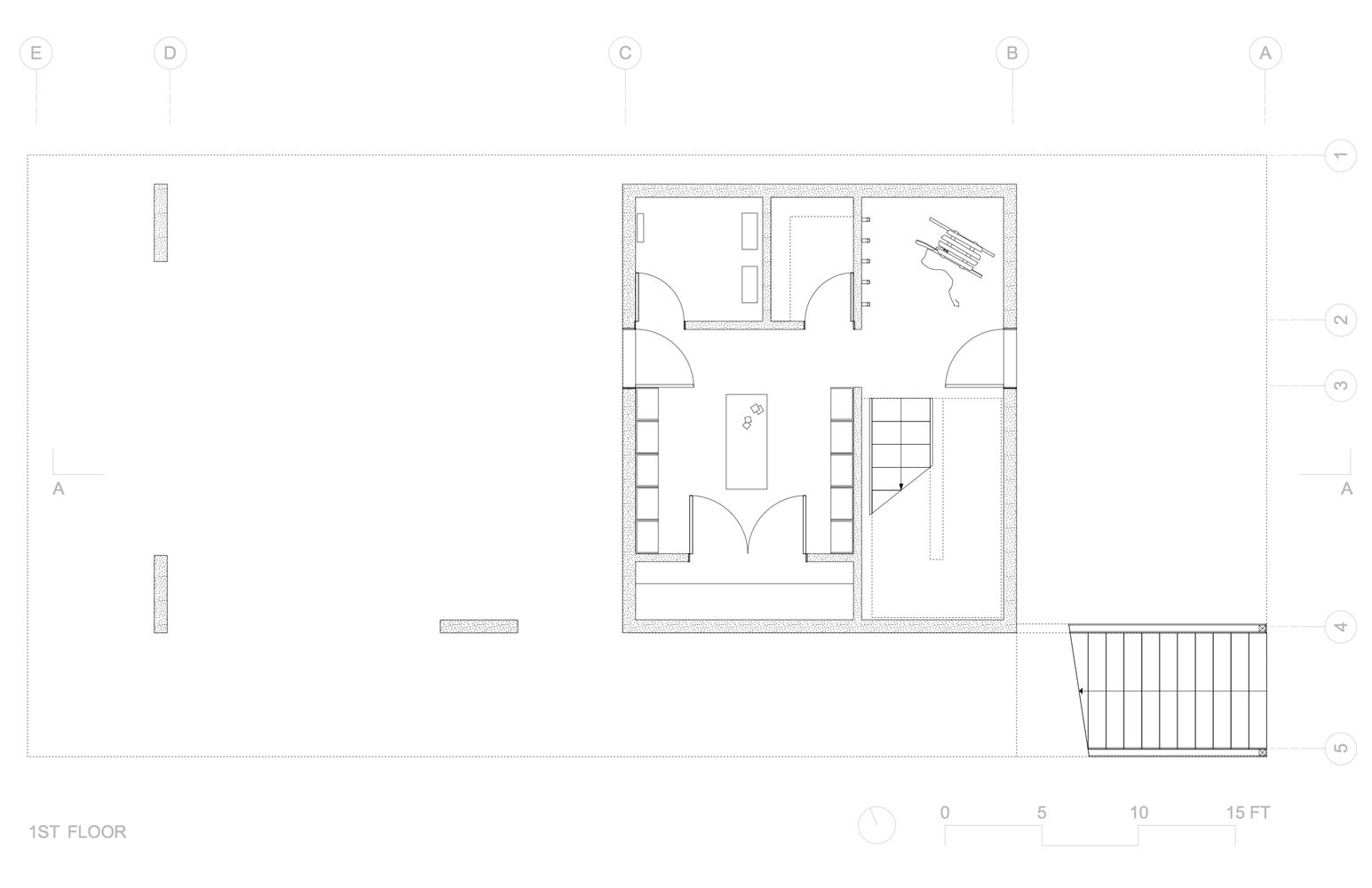
Podstawowy zarys projektu był niezwykle prosty: budynek w typie alpejskiej chaty ma być uniesiony i postawiony na betonowych kolumnach, które będą go chroniły przed śniegiem.Dom stanął więc na kolumnach o wysokości 2 metrów, ponieważ musi przetrwać nawet najpotężniejsze opady śniegu. Samo położenie domu na działce jest jednak bardziej przemyślane. Architekci wzięli tu pod uwagę najczęstszy kierunek wiatru oraz inne czynniki atmosferyczne, osłaniając jednocześnie budynek od ulicy i zapewniając mieszkańcom bardziej prywatne i piękniejsze widoki, wykorzystując do tego okoliczny las.

Fot. Bruce Damonte | Arch. Mork-Ulnes Architects

Przestrzenie dzienne zostały zorganizowane wzdłuż otwartej, południowej fasady, aby wnętrza miały jak najwięcej naturalnego światła. Bardziej zacieniona strona północna zawiera pomieszczenia użytkowe, gdzie małe okna zapobiegają niepotrzebnej utracie ciepła.

Fot. Bruce Damonte | Arch. Mork-Ulnes Architects

Elewacja to opalana deska, która pasuje do swego leśnego otoczenia. Po zmierzchu wnętrze wykończone w dużym stopniu jasnym drewnem rzuca przez okna ciepły blask na pobliskie drzewa.