Fot. TOM AUGER | Arch. Rever & Drage Architects

Inspiracja norweską tradycjąw sercu gór

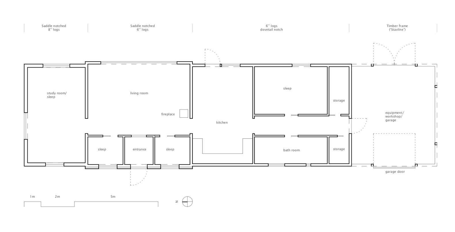
Troll’s Peak to projekt autorstwa norweskiego biura Rever & Drage Architects, który łączy tradycyjne rzemiosło z innowacyjnymi rozwiązaniami architektonicznymi. Budynek powstał z lokalnego drewna i charakteryzuje się wysoką wytrzymałością, przystosowaną do surowego klimatu wysokogórskiej doliny. Konstrukcja inspirowana jest klasycznym układem farm rzędowych, w których kolejne części domu pełnią różne funkcje i nawiązują do różnych epok norweskiej architektury drewnianej. Dzięki temu nowoczesna stodoła Troll’s Peak przypomina z zewnątrz zestaw czterech odmiennych chat, a wewnątrz zachwyca funkcjonalnym podziałem przestrzeni i panoramicznymi widokami na góry.

Fot. TOM AUGER | Arch. Rever & Drage Architects

Dom został zaprojektowany z myślą o aktywnej rodzinie, potrzebującej przestrzeni do przechowywania sprzętu outdoorowego, suszenia odzieży i wygodnego odpoczynku po narciarskich wyprawach. Przeszklony garaż pełni wiele funkcji: od oranżerii po salę treningową czy warsztat. Każda część budynku ma indywidualny charakter, co widać w zastosowanych technikach budowy – od średniowiecznego ciesielstwa po nowoczesne bale z nacięciem typu „jaskółczy ogon”. We wnętrzu znajdziemy m.in. kolebkowe sklepienie w salonie, przestronną kuchnię z wyjściem na taras, strefę relaksu z kominkiem oraz sypialnię z oknem na zorzę polarną. Wszystko zaprojektowane z naciskiem na naturalne światło, ergonomię i estetykę.

Fot. TOM AUGER | Arch. Rever & Drage Architects

Troll’s Peak to doskonały przykład, jak nowoczesna stodoła może łączyć funkcjonalność z głębokim szacunkiem do lokalnej historii i krajobrazu. Kompozycja bryły odpowiada dominującym wiatrom, a spójność całego założenia podkreśla olej drzewny na bazie smoły oraz zharmonizowane dachy dwuspadowe. Choć każda jednostka ma swoją tożsamość, całość pozostaje harmonijna i logiczna, tworząc wyjątkowy dom w górach – zarówno użytkowy, jak i reprezentacyjny. Troll’s Peak to architektura dla osób ceniących kunszt, lokalność i życie blisko natury.