Fot. DSD architekci

W pełnej harmoniiz naturą

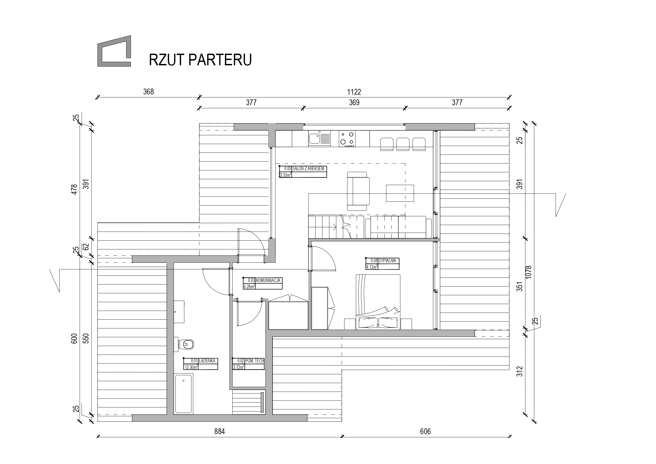
Projekt ultranowoczesnej stodoły w pełnej harmonii z naturą wyróżnia się minimalistyczną formą oraz innowacyjnymi rozwiązaniami architektonicznymi. Dzięki zastosowaniu dużych przeszkleń, dom w naturalny sposób wtapia się w otoczenie, tworząc wyjątkową harmonię z naturą. Drewno, szkło i metal tworzą unikalny charakter budynku, który łączy prostotę z elegancją. To minimalizm w najlepszej postaci! 

Fot. DSD architekci

Dodatkowo, geometryczna bryła domu, z przeszklonymi połaciami dachowymi, wprowadza dużo światła dziennego do wnętrza, jednocześnie zapewniając prywatność i ciepło. Elewacja pokryta zielenią podkreśla ekologiczny charakter projektu, łącząc estetykę z funkcjonalnością.