Fot. BIAMS
  • Architekt

    BIAMS
  • Social media

    FBIG
  • Lokalizacja

    Turek

Oinspiracji

Prezentujemy nieduży i w miarę ekonomiczny dom typu nowoczesna STODOŁA zaprojektowany w okolicach Turku, w województwie wielkopolskim. Jest to dom piętrowy z poddaszem użytkowym o powierzchni nieprzekraczającej 250 m2. Dom nie posiada garażu i podpiwniczenia, ale na uwagę zasługuje ciekawa elewacja wykończona Cortenem i betonem.

Oprojekcie

Przyziemie domu to prostopadłościenne pudełko z wycięciem na podjazd i strefę wejściową. Na przyziemiu mieści się duża strefa dzienna od strony ogrodowej, południowo-zachodniej, część kuchenna z oknem na podjazd i na stronę północno-wschodnią oraz strefa techniczno-gospodarcza z klatą schodową. Piętro to natomiast wydłużony prostopadłościan, z dachem dwuspadowym, „nachodzący” na płaską część dzienną oraz wystający poza nią, w kierunku południowym, tworząc jednocześnie zadaszenie tarasu. Powstał dzięki temu obiekt dynamiczny i bardzo ciekawy, acz minimalistyczny, niewielki i praktyczny.

Fot. BIAMS

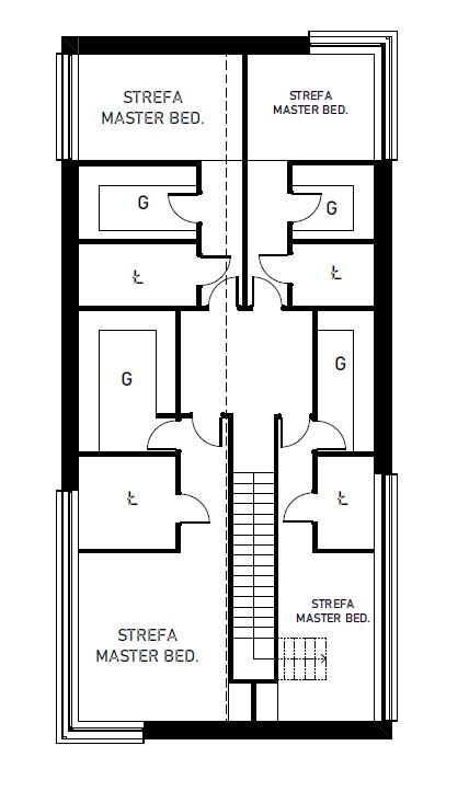
Układpoddasza

Na poddaszu zaprojektowano natomiast 4 sypialnie. Dwie większe i dwie mniejsze, ale każda w własną łazienką i garderobą. Największa sypialnia od strony zachodniej ma własny balkon francuski i duże okna. Inne sypialnie posiadają ładne okna narożne. Do wszystkich pokoi dostajemy się z centralnie położonej komunikacji. Układ domu jest prosty i uniwersalny. Sypialnia może służyć spokojnie za pokój gościnny, pokój dziecka, czy nawet gabinet. Jest to dom dla czteroosobowej rodziny, ale spokojnie może posłużyć dla rodziny mniejszej, jak i większej.

Fot. BIAMS

O nowoczesnej stodolesłów kilka

Średnich rozmiarów działka, bo nieprzekraczająca 1500 m2 miała na szczęście dobre wymiary (kształt zbliżony do kwadratu) oraz dobre ulokowanie względem stron świata. Wjazd od strony północno-wschodniej i część ogrodowa do strony południowo-zachodniej. Stąd takie a nie inne ułożenie obiektu oraz rozlokowanie poszczególnych pomieszczeń. A plan miejscowy nakazujący dachy dwuspadowe sprawił, iż postawiliśmy na nowoczesną STODOŁĘ. Ale to bardzo nowoczesną z zastosowaniem dachów bezokapowych, płaskich elementów, powściągliwych kompozycji poszczególnych elewacji i nietypowych oraz dizajnerskich materiałach na tychże elewacjach.

Fot. BIAMS

Oryginalne wykończenieelewacji

Blacha cortenoska ma szerokie zastosowanie w architekturze. Poza właściwościami materiału, które sprawiają, że jest on odporny  na działania atmosferyczne to jego inna zaleta wychodzi na pierwszy front. Stal kortenowska ma niepowtarzalną fakturę i barwę, co czyni z niej materiał wyjątkowy. A możliwość zastosowania na dachu, elewacji i nawet małej architekturze sprawia że w BIAMS bardzo lubimy to wykończenie. Oczywiście zastosowana została na całym budynku fasada wentylowana z wypełnieniem z wełny mineralnej. Taka fasada ma bardzo dobre właściwości i sprawia, iż komfort w budynku i mikroklimat w nim są dużo lepsze niż przy tradycyjnych metodach ociepleń. Dodatkowo elewacja taka jest niepalna. Podest budynku również zaprojektowano w tej technologii. Wykończeniem są jednak płyty betonowe GRC. Loftowego wydźwięku dodają również czarne akcenty na elewacjach – stolarka okienna, obróbki, przyciemniane szkło. Wszystko to daje spójny charakter i podkreśla indywidualne rozwiązania dla tego projektu nowoczesnej STODOŁY.