Fot. Stephen Goodenough | Arch. CoLab Architecture Limited

Stodoła inspirowanakolonialną architekturą robotniczą

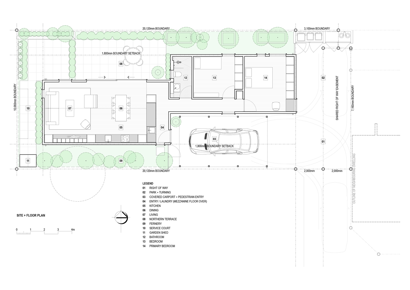
Urban Cottage to współczesna interpretacja kolonialnych chat robotniczych, wpisana w śródmiejski kontekst Christchurch w Nowej Zelandii. Zaprojektowana jako nowoczesna stodoła, łączy lokalne tradycje z potrzebami młodej rodziny, oferując solidną konstrukcję i funkcjonalne rozwiązania na zaledwie 80 m².

Fot. Stephen Goodenough | Arch. CoLab Architecture Limited

Dom składa się z dwóch przesuniętych względem siebie brył. Jedna mieści wiatę samochodową, druga – przestrzeń dzienną otwartą na północ. Przezroczysty dach nad strefą wejścia i parkingiem wpuszcza światło, chroniąc przed deszczem.

Fot. Stephen Goodenough | Arch. CoLab Architecture Limited

We wnętrzu zastosowano tradycyjny korytarz, oddzielający część sypialną od salonu. Dwuspadowy dach i wysokie sufity optycznie powiększają przestrzeń. Jasne wnętrze wykończono brzozową sklejką, a drewniana elewacja i podłogi z odzysku nawiązują do stylu kolonialnego. Duże przeszklenia zapewniają dostęp światła i widok na otoczenie.

Fot. Stephen Goodenough | Arch. CoLab Architecture Limited

Urban Cottage to przykład, jak mała nowoczesna stodoła może łączyć estetykę, trwałość i miejską funkcjonalność – z szacunkiem dla lokalnego dziedzictwa i naturalnego światła.