Fot. Yvonne Brandwijk | Arch. Atelier van Wengerden

Czarna stodoław Holandii

Zespół BaksvanWengerden Architecten miał zaprojektować jednorodzinny dom na działce w holenderskim Nollen-Oost.

Fot. Yvonne Brandwijk | Arch. Atelier van Wengerden

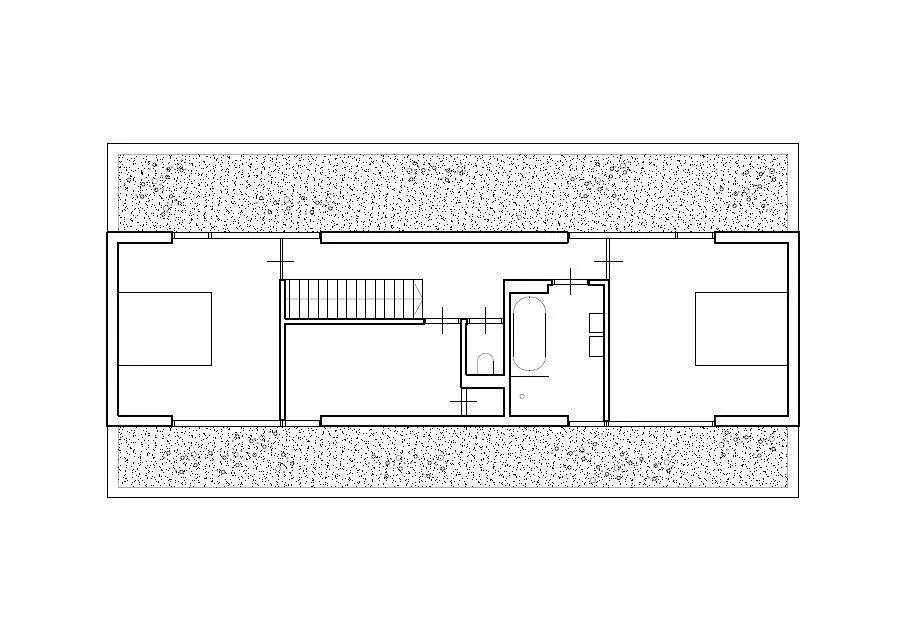
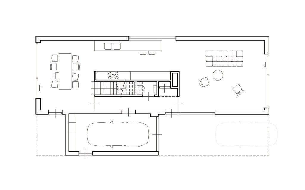
Ulokowanie oraz rozmiary działki, jak również widoki na okolice i kwestie związane z prywatnością mieszkańców wpłynęły na północno-południowe otwarcie parteru oraz wschodnio-zachodnie ukierunkowanie piętra. Parter domu zorganizowano wokół wolnostojącego „pudełka”, które powiązano z otaczającymi je przestrzeniami. Salon po stronie południowej otwiera się na bardziej oficjalną część zewnętrzną od frontu domu, kuchnia umiejscowiona jest centralnie, a teren jadalni zwrócono w stronę dużego ogrodu za domem. Sypialnie na piętrze zwrócono w kierunku ogrodów na dachu od wschodu i zachodu.

Fot. Yvonne Brandwijk | Arch. Atelier van Wengerden

Mniejsza powierzchnia na dole i większa na górze oraz dwuspadowy dach definiują przyjemny, choć oryginalny kształt budynku, który z zewnątrz w całości „owijają” antracytowe płytki ceramiczne. Ta nowoczesna stodoła wydaje się być jednocześnie kompletna, jak i skromna.