Fot. James Florio | Arch. Studio B

Wyjątkowy domw Aspen

Dom V-Plan w Aspen (Kolorado), zaprojektowany przez architektów ze Studio B, wyróżnia się nietypową formą oraz czarną elewacją. Bryła zbudowana została z dwóch skrzydeł w kształcie litery „V”, co pozwoliło najlepiej wykorzystać klinową działkę otwierającą się na pole golfowe. Z zewnątrz budynek przyciąga uwagę spiczastymi dachami i cedrowym drewnem barwionym na czarno, natomiast wewnątrz zaskakuje jasnymi, przestronnymi pomieszczeniami zalanymi naturalnym światłem.

Fot. James Florio | Arch. Studio B

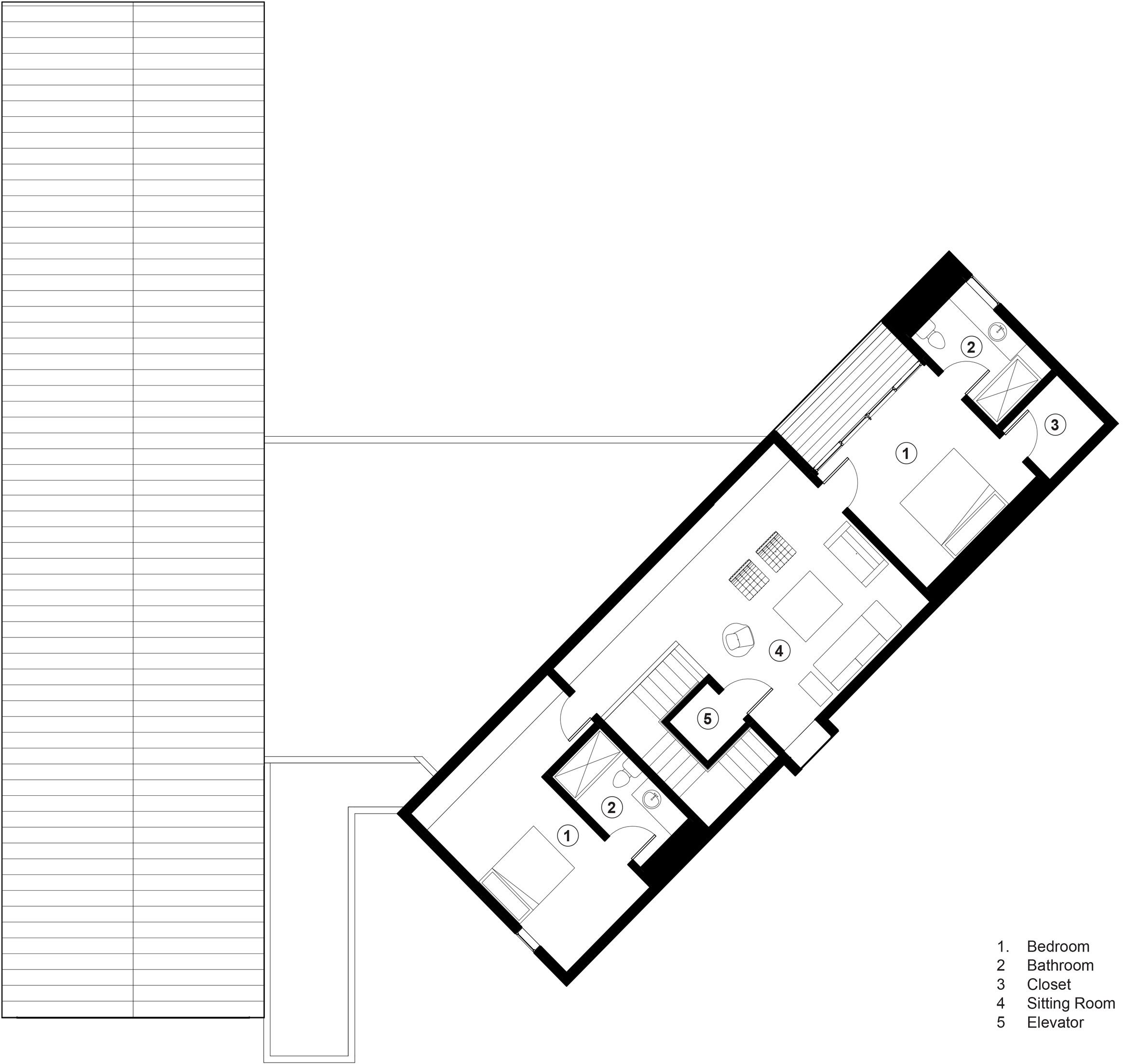
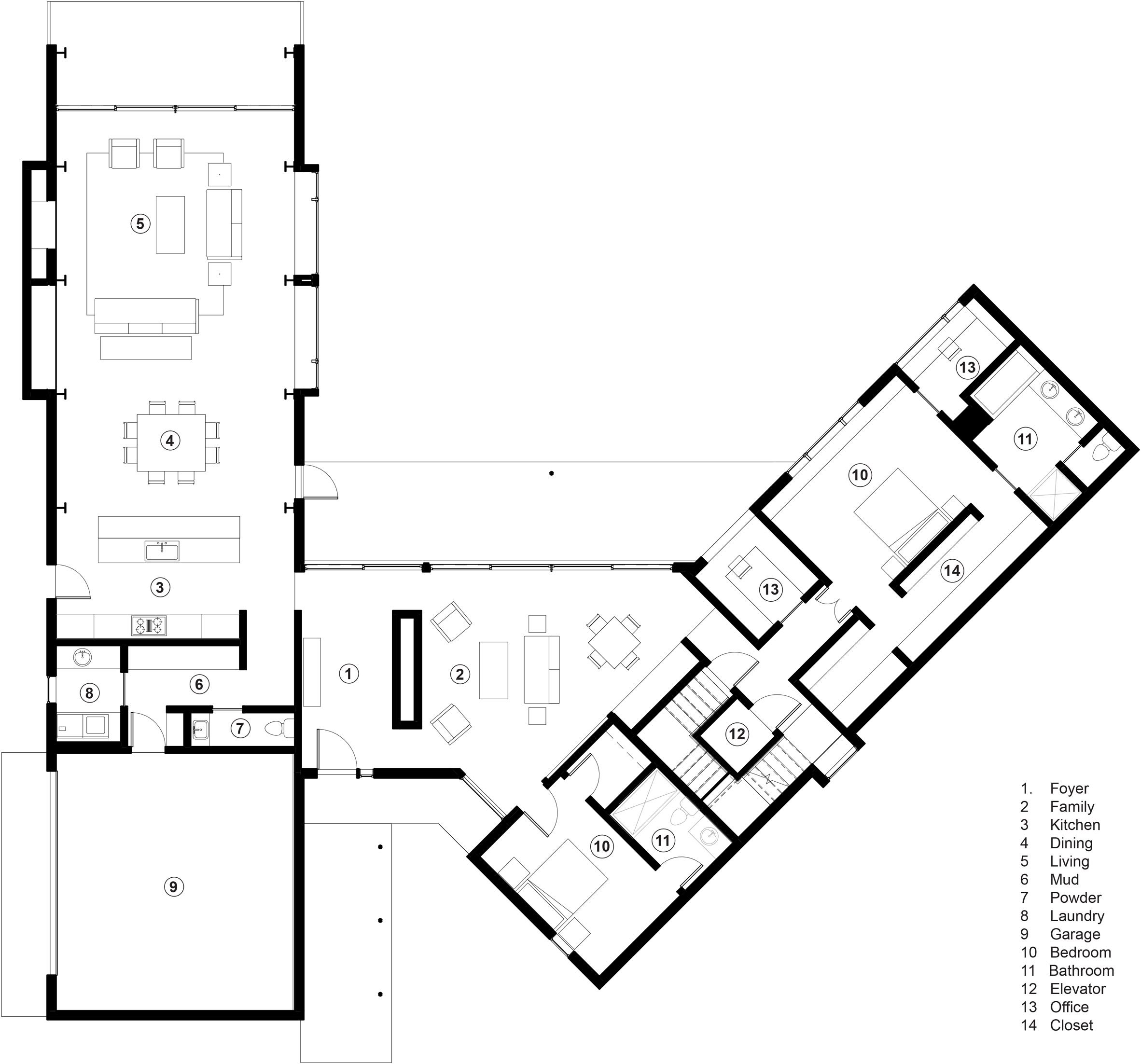
Właściciele – para emerytów – oczekiwali wygodnego i funkcjonalnego domu, w którym zmieści się kolekcja sztuki oraz osobiste pamiątki. Architekci zaprojektowali więc przestrzeń ponad 400 m², gdzie parter zajmuje strefa dzienna i główna sypialnia, a na piętrze znalazły się apartamenty gościnne i pokój rekreacyjny. Dzięki dużym przeszkleniom w ścianach szczytowych dom otwiera się na widoki, jednocześnie zapewniając prywatność od strony sąsiadów.

Fot. James Florio | Arch. Studio B

Projekt V-Plan to przykład, jak współczesna architektura może łączyć minimalizm, naturalne materiały i funkcjonalność. Kontrast czarnej elewacji z górskim otoczeniem nadaje budynkowi wyjątkowego charakteru. Wnętrza utrzymane w neutralnych barwach sprzyjają spokoju i podkreślają sztukę właścicieli. To przykład, jak luksusowa rezydencja może nawiązywać do formy nowoczesnej stodoły, zachowując jednocześnie elegancję i harmonię z krajobrazem Aspen.