Fot. Menno Emmink, Peter de Krom, Boudewijn Bollmann | Arch. Vakwerk Architecten

Rewitalizacja starej kotłowni wprzestrzeń coworkingową

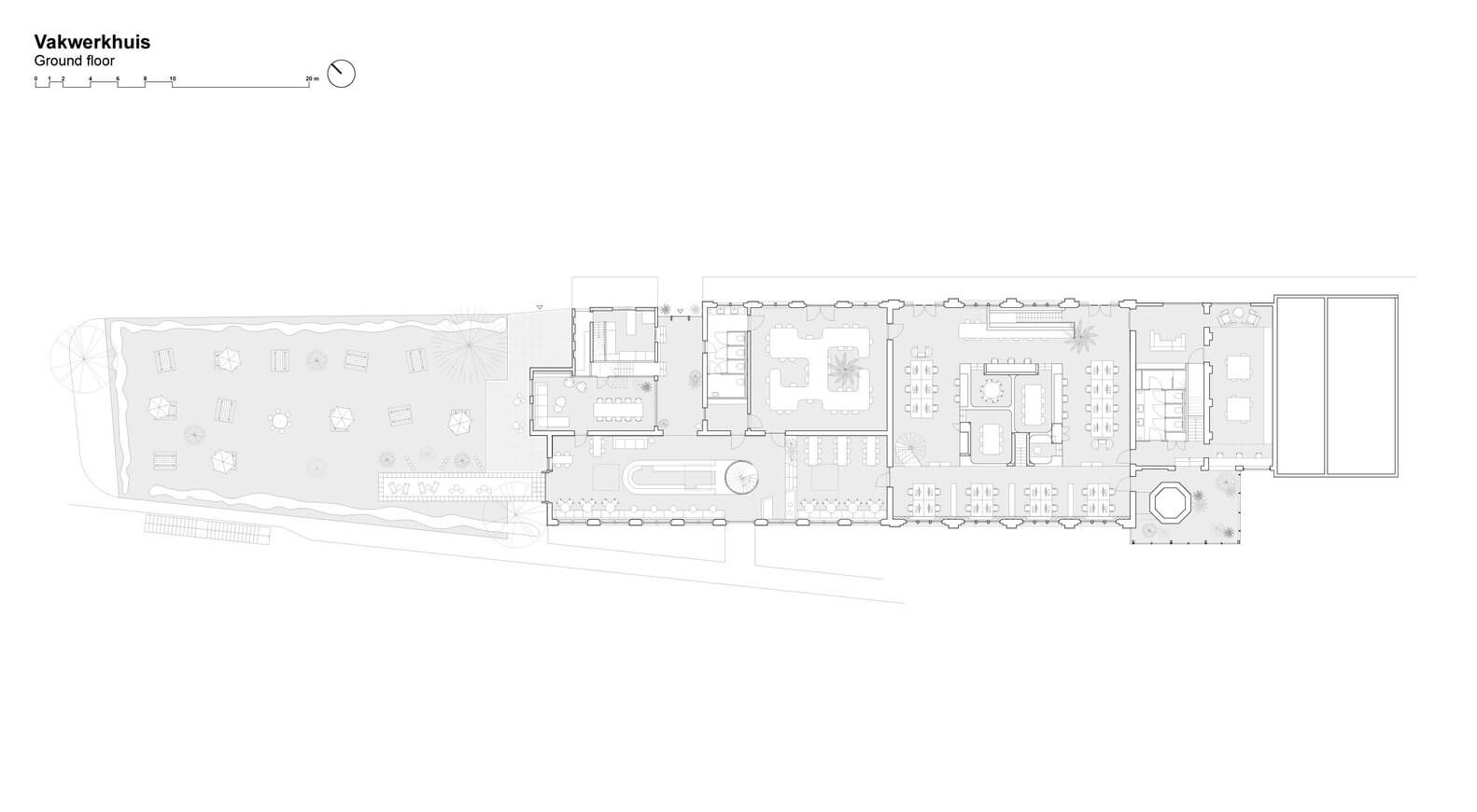
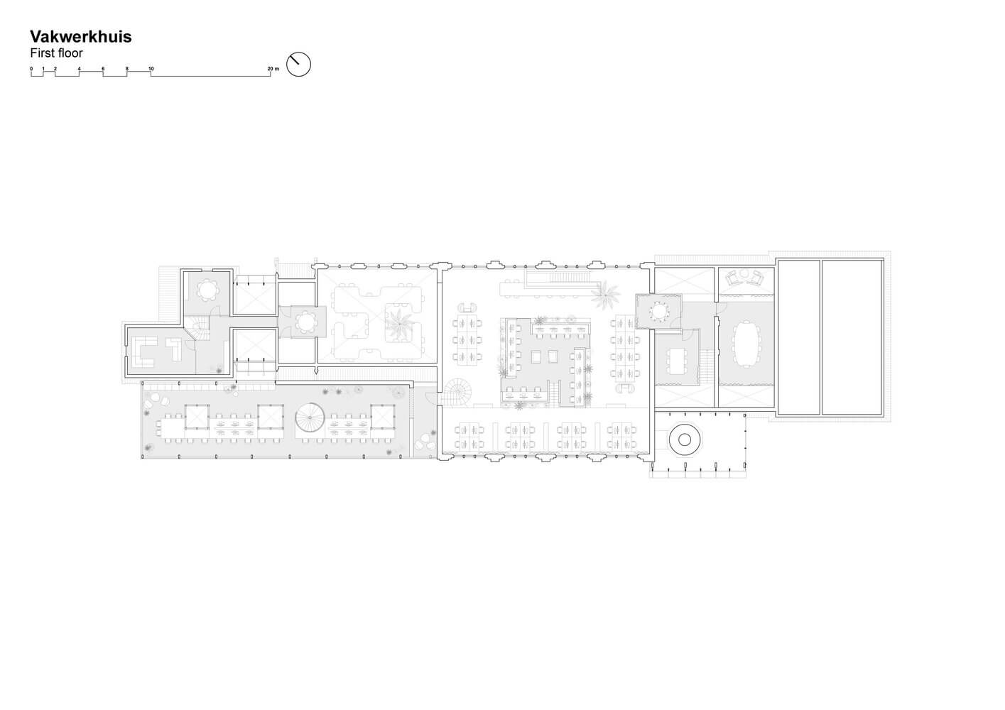
Od momentu powstania, biuro architektoniczne Vakwerk Architecten miało jasną wizję swojego przyszłego miejsca pracy. Gdy odkryli starą kotłownię Ketelhuis – niegdyś główne źródło energii dla Politechniki w Delft, postanowili przekształcić ją w nowoczesne biuro coworkingowe. Ich celem było stworzenie inspirującej przestrzeni łączącej centrum Delft z kampusem uniwersyteckim. Kluczowym założeniem projektu była zrównoważona architektura, bazująca na upcyklingu materiałów, poszanowaniu historycznej zabudowy i poprawie efektywności energetycznej. Dziś Vakwerkhuis to tętniąca życiem społeczność kreatywna, oferująca ponad 100 stanowisk do pracy i 8 sal konferencyjnych, z których korzystają zarówno przedsiębiorcy, jak i freelancerzy.

Fot. Menno Emmink, Peter de Krom, Boudewijn Bollmann | Arch. Vakwerk Architecten

100-letni, zabytkowy budynek składa się z kilku hal, w których dawniej znajdowały się kotły i generatory, a jego najbardziej charakterystycznym elementem jest wolnostojący komin. Nowe galerie, schody i wewnętrzne wykusze połączyły przestrzenie, podkreślając industrialny charakter obiektu. Wprowadzono także przemyślane przebicia w murach, które zwiększyły ilość naturalnego światła i nadały wnętrzu większą przejrzystość. Wnętrze wzbogacono o elementy wykonane z czerwonej stali, szkła i litego dębu, które kontrastują z oryginalną cegłą i konstrukcjami stalowymi. Kluczowe przestrzenie, takie jak kawiarnia i drewniana antresola „Orle Gniazdo”, zostały rozmieszczone swobodnie w głównej hali. Z kolei szklane wejście i rozbudowa dachu z opalonego drewna stanowią wyraźny akcent nowoczesnej rewitalizacji.

Fot. Menno Emmink, Peter de Krom, Boudewijn Bollmann | Arch. Vakwerk Architecten

Mimo trwałości konstrukcji, budynek wymagał licznych usprawnień. Vakwerk Architecten zastosowało szereg nowoczesnych rozwiązań, poprawiających efektywność energetyczną:

  • Nowe betonowe posadzki z systemem ogrzewania i chłodzenia opartym na pompie ciepła,
  • Odnawianie historycznych okien i montaż podwójnych szyb,
  • Termoizolacja dachu, co znacznie poprawiło parametry budynku.

Dzięki tym ekologicznym technologiom, obiekt spełnia współczesne standardy energooszczędności.

Fot. Menno Emmink, Peter de Krom, Boudewijn Bollmann | Arch. Vakwerk Architecten

Projekt oparto na zasadach gospodarki cyrkularnej, wykorzystując w maksymalnym stopniu istniejące materiały budowlane i elementy z odzysku.

  • Drewniane kratownice w dobudówce pochodziły ze starego hangaru,
  • Podłogi, belki i dębowe wykończenia zostały zakupione na portalach zajmujących się recyklingiem budowlanym,
  • Większość mebli to efekt upcyklingu, co zmniejszyło ślad węglowy inwestycji.
Fot. Menno Emmink, Peter de Krom, Boudewijn Bollmann | Arch. Vakwerk Architecten

Dzięki tym rozwiązaniom Vakwerkhuis stał się symbolem zrównoważonej rewitalizacji, łączącej historię, nowoczesność i ekologiczne budownictwo.