Fot. Cesar Belio | Arch. Studio rc

Dom inspirowanytoskańską architekturą wiejską

Villa K to wyjątkowy przykład nowoczesnej stodoły, której projekt głęboko czerpie z klasycznej toskańskiej architektury. Dom ten reinterpretuje tradycyjne toskańskie wille, łącząc elementy starożytnego budownictwa wiejskiego z nowoczesnym podejściem do formy, funkcji i materiałów.

Fot. Cesar Belio | Arch. Studio rc

Już na etapie koncepcji określono materiałowość projektu. Zastosowanie naturalnych materiałów – takich jak rzeźbiony kamień, drewno, marmur – nadaje bryle ciepła i ponadczasowości. Drewniane kolumny wspierające konstrukcję dachu tworzą charakterystyczny prześwit, który otwiera przestrzeń piętra, zapewniając doskonałe doświetlenie wnętrz oraz optymalną temperaturę, zwłaszcza na południowej elewacji.

Fot. Cesar Belio | Arch. Studio rc

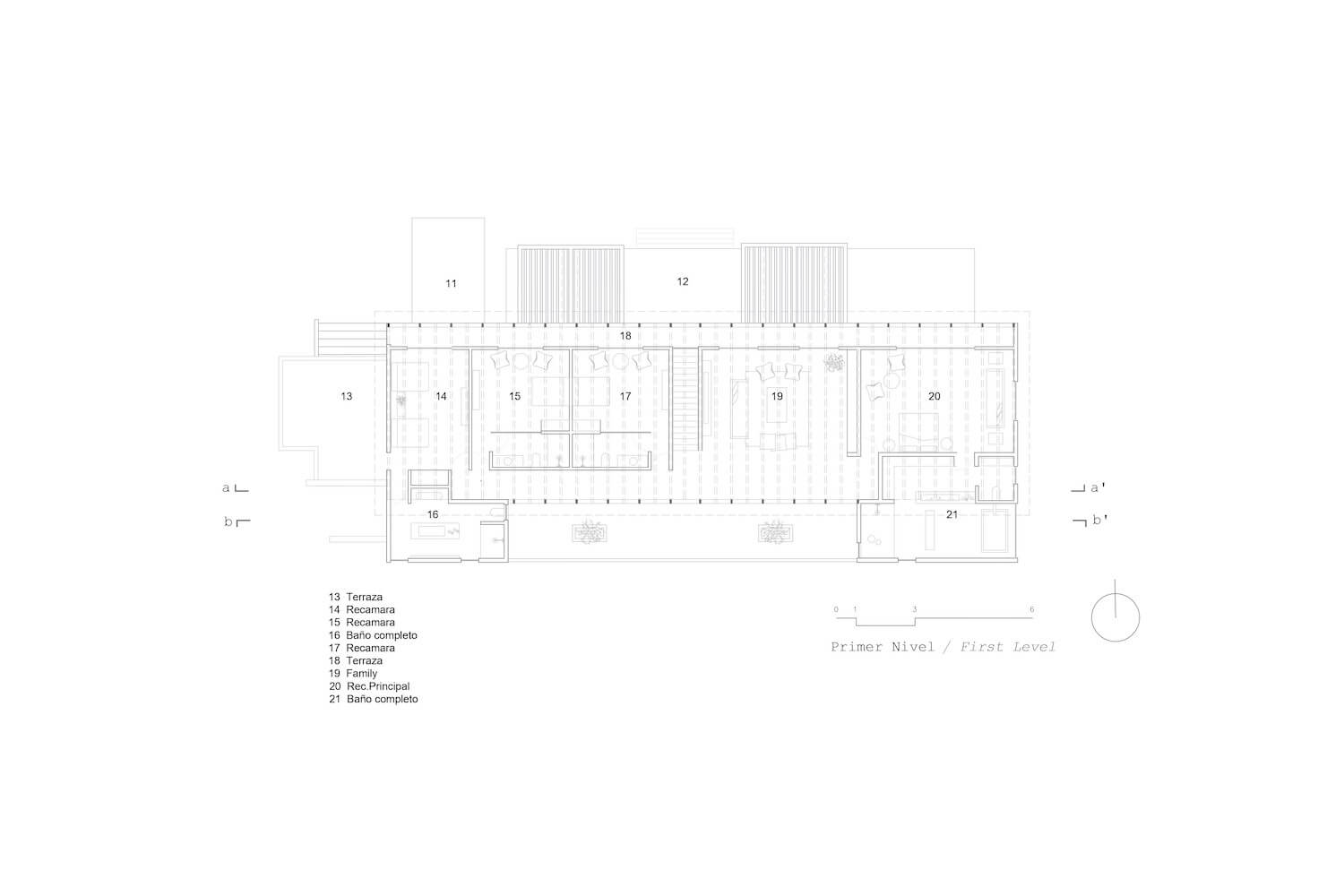
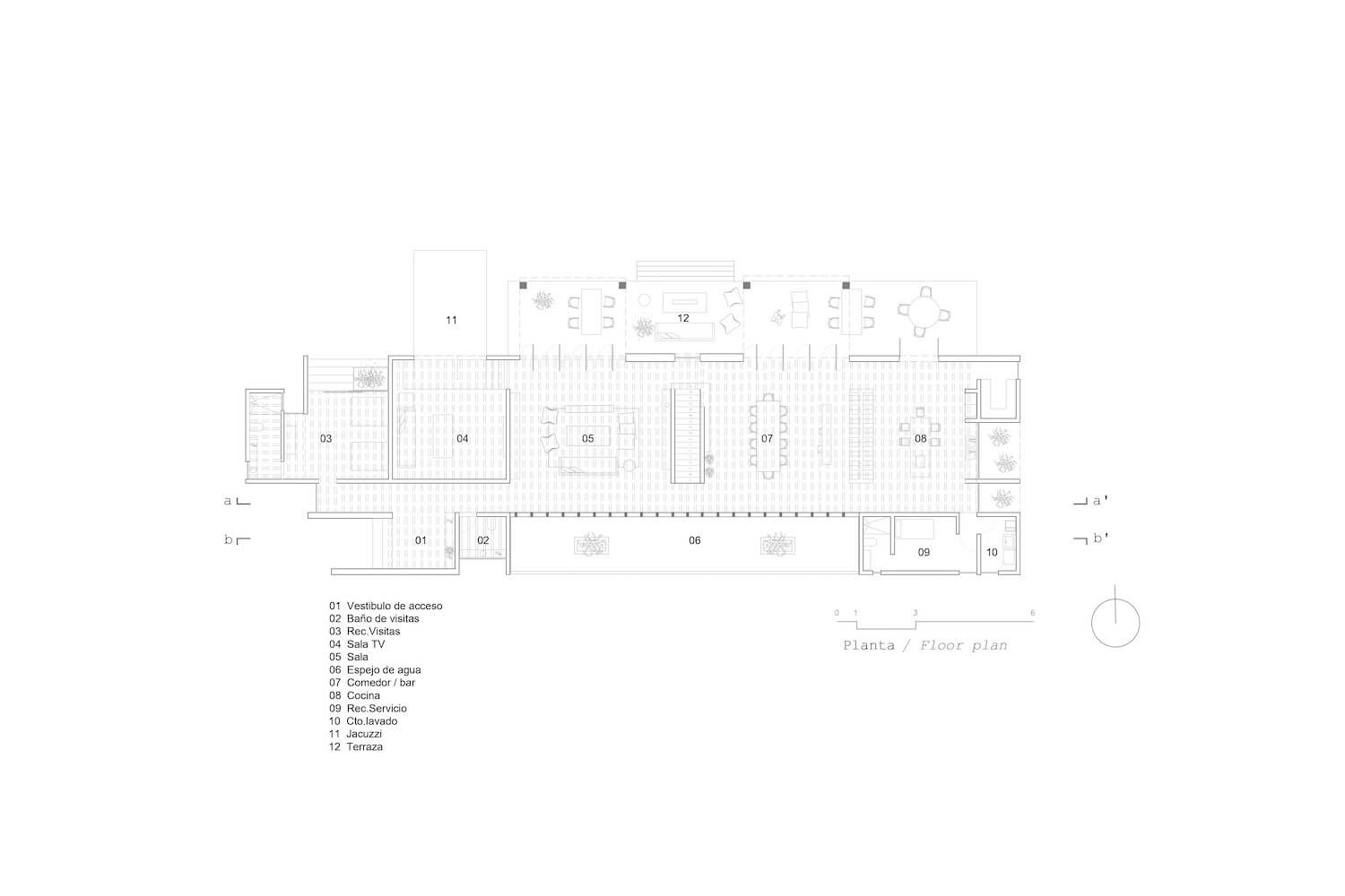
Dom zbudowany jest wokół osi kompozycyjnej, typowej dla tradycyjnych willi toskańskich. Układ pomieszczeń, relacja ścian do otworów oraz ich funkcjonalne rozmieszczenie tworzą spójną, harmonijną przestrzeń. Każde pomieszczenie jest indywidualnie zdefiniowane, ale równocześnie współtworzy całość domu jako przyjaznego, otwartego na otoczenie schronienia.

Fot. Cesar Belio | Arch. Studio rc

Villa K to przykład świadomej architektury, która nie tylko szanuje naturalne otoczenie i roślinność miejsca, ale także tworzy harmonijny dialog z krajobrazem. Współczesna forma wiejskiej rezydencji – nowoczesnej stodoły – przenosi ideę włoskiej willi na grunt współczesnego projektowania.