Fot. Jonas Adolfsen | Arch. Oslotre

Ekologiczny dom jednorodzinnyz drewna

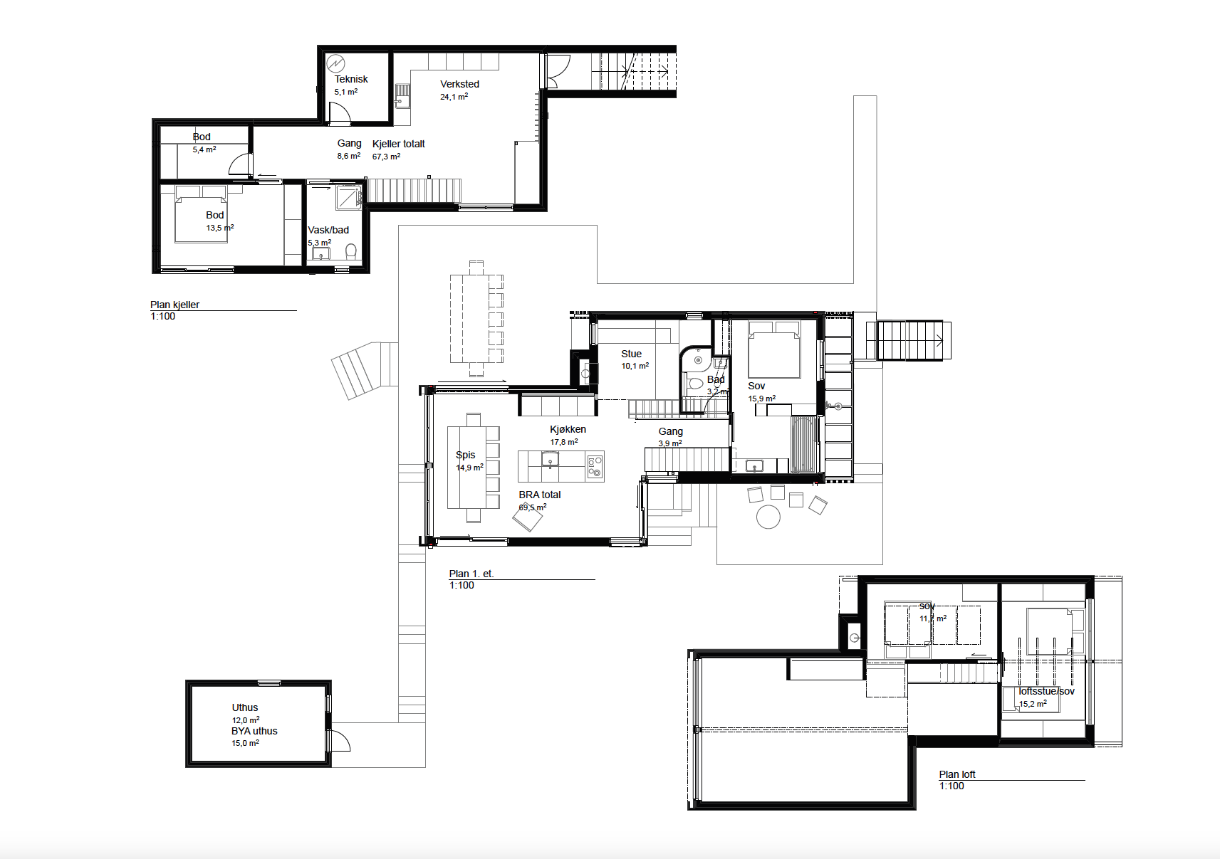
Villa Løken to wyjątkowy dom jednorodzinny o powierzchni 140 m², zaprojektowany dla zawodowego żeglarza i jego rodziny na malowniczej wyspie w Oslofjordzie. Bryła ma charakter nowoczesnej stodoły, inspirowanej drewnianymi łodziami i otwartej na wszystkie strony świata, aby maksymalnie wykorzystać światło dzienne, panoramiczne widoki oraz bliskość natury.

Fot. Jonas Adolfsen | Arch. Oslotre

Budynek wykonano w 100% z drewna, wykorzystując prefabrykowane elementy drewniane oraz izolację z włókna drzewnego. Konstrukcja magazynuje aż 64 tony ekwiwalentu CO₂, co podkreśla jej ekologiczną efektywność. Wnętrza wykończono osiką i dębem w naturalnej, nieobrobionej formie, natomiast elewację zewnętrzną pokryto trwałym, egzotycznym drewnem kumaru. Taras wykonano z certyfikowanego drewna Merbau, a stolarkę okienną – z litego dębu.

Fot. Jonas Adolfsen | Arch. Oslotre

Villa Løken to przykład zrównoważonej architektury, gdzie czysta konstrukcja drewniana, naturalna wentylacja i użycie wyłącznie nietoksycznych materiałów tworzą zdrowe i komfortowe środowisko do życia. Budynek jest zwarty i funkcjonalny, a jednocześnie pozostaje otwarty, jasny i ciepły, idealnie wpisując się w charakter nadmorskiego krajobrazu.