Fot. Severin Malaud | Arch. Bauclub

Transformacjarodzinnego domu

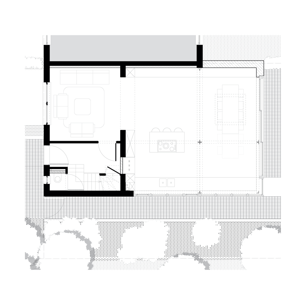
VNBC to transformacja rodzinnego domu w Brukseli, który był częścią zespołu domów robotniczych z lat 50-tych w zielonej dzielnicy Boitsfort. Początkowo dom składał się z trzech zamkniętych fasad i małych, izolowanych przestrzeni, które nie były ze sobą połączone ani płynne. Celem właścicieli było powiększenie domu, poprawienie jakości przestrzeni, lepsze połączenie z ogrodem i zwiększenie naturalnego światła w środku.

Fot. Severin Malaud | Arch. Bauclub

Proponowana odpowiedź to rozszerzenie bardzo prostego, niemal kwadratowego planu domu, który jednocześnie szanuje i wzmacnia tożsamość pierwotnej konstrukcji. Przebudowa pozwoliła na stworzenie nowych, zróżnicowanych przestrzeni, które pozostają silnie powiązane i harmonijnie się ze sobą łączą.

Fot. Severin Malaud | Arch. Bauclub

Nowe przestrzenie zostały zaprojektowane w taki sposób, aby były otwarte na zewnątrz i stanowiły kontynuację ogrodu, który otacza dom. Prostota interwencji oraz czytelność przestrzeni wyznaczają wysoką jakość projektu, który łączy nowoczesne wymagania funkcjonalne z szacunkiem dla istniejącej architektury. Struktura domu pozostaje widoczna, a rozszerzenie jest wyraźnie określone przez modułowość projektu i wszechstronność przestrzeni.

Fot. Severin Malaud | Arch. Bauclub

Głównym wyzwaniem podczas przebudowy było zachowanie tożsamości istniejących elementów, takich jak ściany zewnętrzne, jednocześnie dostosowując je do nowych wymagań funkcjonalnych i energetycznych współczesnego mieszkania. Przebudowa przestrzeni na pierwszym piętrze oraz rozbudowa na dachu zapewniły płynność przestrzeni, stwarzając przyjazne warunki do życia rodzinnego.